Share:
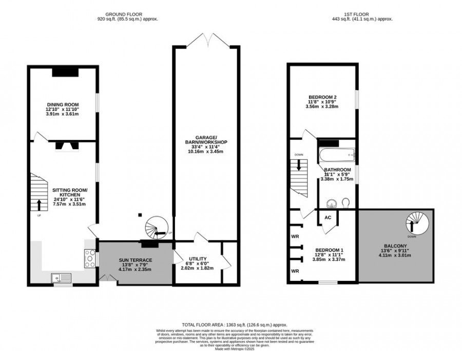
Description
- Spacious ground floor flat with large and well presented rear garden
- Popular location, towards the southern outskirts, along Tor View Avenue
- From the entrance hall, doors open to the sitting room, kitchen/dining room, two double bedrooms and bathroom
- The sitting room has a window to the front, and former fireplace (not working)
- Kitchen/dining room, benefits from a range of fitted wall, base and drawer units including an integrated fridge/freezer and washing machine
- Both bedrooms are good doubles, bedroom one having a front facing aspect and bedroom two looking out over the rear garden. Both having built in cupboards
- The bathroom is well appointed with a panelled bath having a shower over and tiling to all four walls
- At the front there is a lawned garden with a path at the side, accessing the rear garden and the two outside storage sheds
- The rear garden is a picture, with a patio extending from the kitchen onto an expanse of lawn
- This leads to a thoughtfully planted elevated garden at the foot, with a path, winding its way upwards to the top
**Location**
Glastonbury is an historic centre famous for its Tor, picturesque Abbey ruins and many legends. The town provides an eclectic mix of shops along with restaurants and pubs, mainstream supermarkets, health centres, modern library, primary schooling and St Dunstans secondary school. The neighbouring town of Street offers a further choice of shopping with Clarks Village, Strode Sixth Form College and Strode Theatre. Millfield Junior School is on the edge of Glastonbury at Edgarley and Millfield Senior School in Street is some two miles distance.
**Directions**
From Street, passing Morrisons Supermarket on the left, at the mini-roundabout turn right up Fishers Hill. At the top of the hill, as the road bears sharp left, proceed straight ahead into Butleigh Road. Take the first turning on the right into Tor View Avenue where the property will be found on the right-hand side.
**Material Information**
All available property information can be provided upon request from Holland & Odam. For confirmation of mobile phone and broadband coverage, please visit checker.ofcom.org.uk
**Identity Verification**
To ensure full compliance with current legal requirements, all buyers are required to verify their identity and risk status in line with anti-money laundering (AML) regulations before we can formally proceed with the sale. This process includes a series of checks covering identity verification, politically exposed person (PEP) screening, and AML risk assessment for each individual named as a purchaser. In addition, for best practice, we are required to obtain proof of funds and where necessary, to carry out checks on the source of funds being used for the purchase. These checks are mandatory and must be completed regardless of whether the purchase is mortgage-funded, cash, or part of a related transaction. A disbursement of £49 per individual (or £75 per director for limited company purchases) is payable to cover all aspects of this compliance process. This fee represents the full cost of conducting the required checks and verifications. You will receive a secure payment link and full instructions directly from our compliance partner, Guild365, who carry out these checks on our behalf.
Floorplan
EPC
To discuss this property call our Glastonbury branch:
Market your property
with Holland & Odam
Book a market appraisal for your property today. Our virtual options are still available if you prefer.