Share:
Description
- Hidden away within the village and set away from the main road
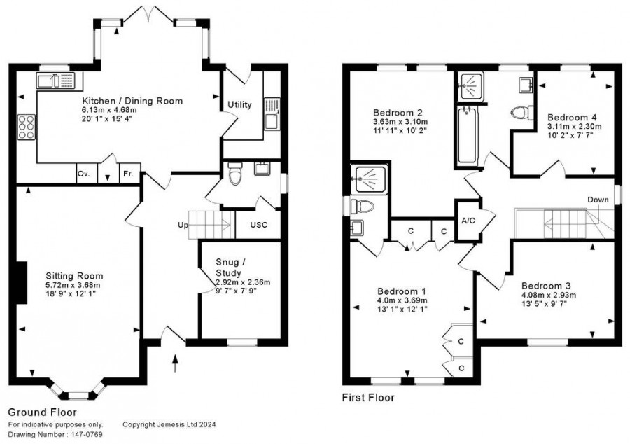
- Generous entrance hall with built-in storage
- Sitting room enjoying a double aspect with bi-folding doors and log burner
- Family room/4th bedroom
- Large dining kitchen with integrated appliances and utility room off
- Master bedroom with luxurious en suite shower room and two further bedrooms
- Well appointed family bathroom with separate shower
- Underfloor gas fired heating. Engineered oak flooring and tiling throughout.
- Easily maintained south-facing garden with large patio. Overall measurements are 12.5m (41ft) long x 10.7m (35ft) wide
- Double garage (currently set up as a games room/bar)
**Location**
The village of Coxley is just 2 miles from Wells and c.3 miles to Glastonbury with a regular bus service between. There is a village hall, restaurant, primary school and church as well as a large reclamation yard. Wells is the smallest city in England and offers a vibrant high street with a variety of independent shops and restaurants as well as a twice weekly market and a choice of supermarkets including Waitrose. Amenities include a leisure centre, independent cinema and a theatre. Bristol and Bath lie c.22 miles to the north and north-east respectively with mainline train stations to London at Castle Cary (c.11 miles) as well as Bristol and Bath. Bristol International Airport is c.15 miles to the north-west. Of particular note is the variety of well-regarded schools in both the state and private sectors in Wells and the surrounding area. the historic town of Glastonbury is famous for its Tor and Abbey Ruins and mystical associations. The town centre offers a good range of shops, banks, restaurants, cafes, health centres, public houses and schooling.
**Directions**
From Wells city centre follow signs for Glastonbury A39 in to the village of Coxley. Proceed through the village and on passing the village hall there is a turning immediately on the left hand side, between two garages, where the property can be found. A For Sale Board is displayed.
**Material Information**
All available property information can be provided upon request from Holland & Odam. For confirmation of mobile phone and broadband coverage, please visit checker.ofcom.org.uk
**Identity Verification**
To ensure full compliance with current legal requirements, all buyers are required to verify their identity and risk status in line with anti-money laundering (AML) regulations before we can formally proceed with the sale. This process includes a series of checks covering identity verification, politically exposed person (PEP) screening, and AML risk assessment for each individual named as a purchaser. In addition, for best practice, we are required to obtain proof of funds and where necessary, to carry out checks on the source of funds being used for the purchase. These checks are mandatory and must be completed regardless of whether the purchase is mortgage-funded, cash, or part of a related transaction. A disbursement of £49 per individual (or £75 per director for limited company purchases) is payable to cover all aspects of this compliance process. This fee represents the full cost of conducting the required checks and verifications. You will receive a secure payment link and full instructions directly from our compliance partner, Guild365, who carry out these checks on our behalf.
Floorplan
EPC
To discuss this property call our Wells branch:
Market your property
with Holland & Odam
Book a market appraisal for your property today. Our virtual options are still available if you prefer.