Share:
Description
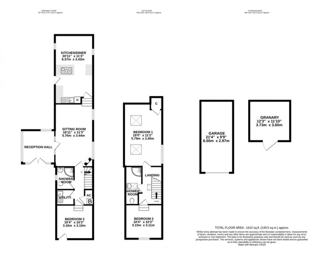
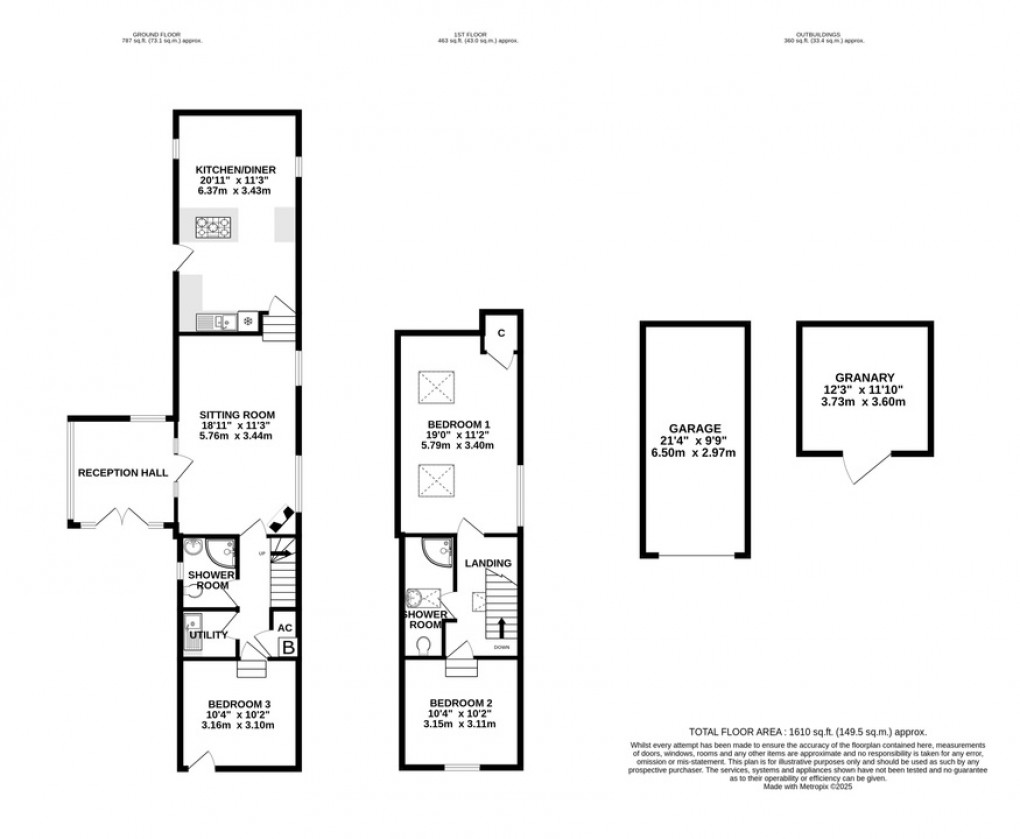
- Reception hall overlooking the garden
- Sitting room with oak floor and feature gas fired stove
- Large dining kitchen with integrated appliances, vaulted ceiling and exposed beams with a double aspect
- Utility room
- Ground floor bedroom/reception and shower room
- Two first floor bedrooms (one currently used as a study) and a further shower room
- Single garage in a block (power light and roof storage), allocated parking and further parking available within the garden
- Lovely garden extending to c.100' x 98 with a patio, original granary with power and light and store shed
**Location**
Pilton is a very popular village just 2 miles from Shepton Mallet and 5 miles from Wells and Glastonbury. The village enjoys a popular pub/restaurant, a busy co-op store and two churches. It is the site of the world famous Glastonbury Festival for which local residents receive free "village" tickets. Well situated for access to Bristol, Bath and Yeovil and within easy reach of Millfield School and a number of other private schools. The mainline train station at Castle Cary with a regular service to London is c.9 miles away.
**Directions**
From Wells follow signs for Shepton Mallet A371. Upon reaching Shepton Mallet turn right at the mini roundabout and right again at the next roundabout following signs for Glastonbury. Follow this road for about 1.5 miles until reaching a T-junction. Go straight across and follow the road for 0.5 miles then turn left into East Town Lane just opposite the turning for Top Street. Follow along for c.0.5 miles and the property can be found on the right hand side with a for sale board displayed.
**Material Information**
**Identity Verification**
To ensure full compliance with current legal requirements, all buyers are required to verify their identity and risk status in line with anti-money laundering (AML) regulations before we can formally proceed with the sale. This process includes a series of checks covering identity verification, politically exposed person (PEP) screening, and AML risk assessment for each individual named as a purchaser. In addition, for best practice, we are required to obtain proof of funds and where necessary, to carry out checks on the source of funds being used for the purchase. These checks are mandatory and must be completed regardless of whether the purchase is mortgage-funded, cash, or part of a related transaction. A disbursement of £49 per individual (or £75 per director for limited company purchases) is payable to cover all aspects of this compliance process. This fee represents the full cost of conducting the required checks and verifications. You will receive a secure payment link and full instructions directly from our compliance partner, Guild365, who carry out these checks on our behalf.
Floorplan
EPC
To discuss this property call our Wells branch:
Market your property
with Holland & Odam
Book a market appraisal for your property today. Our virtual options are still available if you prefer.