Share:
Description
- Conveniently situated within walking distance of the high street and the towns amenities.
- Beautifully presented and tastefully decorated throughout, offering a home ready to move into.
- Practical family home with entrance vestibule, plenty of storage, and a convenient ground-floor cloakroom.
- Separate sitting and dining rooms that work together to create a bright, welcoming and flexible space.
- Generously proportioned principal bedroom with practical fitted wardrobes.
- Desirable south-west facing garden featuring a large deck with covered pergola, ideal for al fresco dining.
**Accommodation**
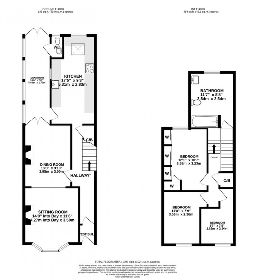
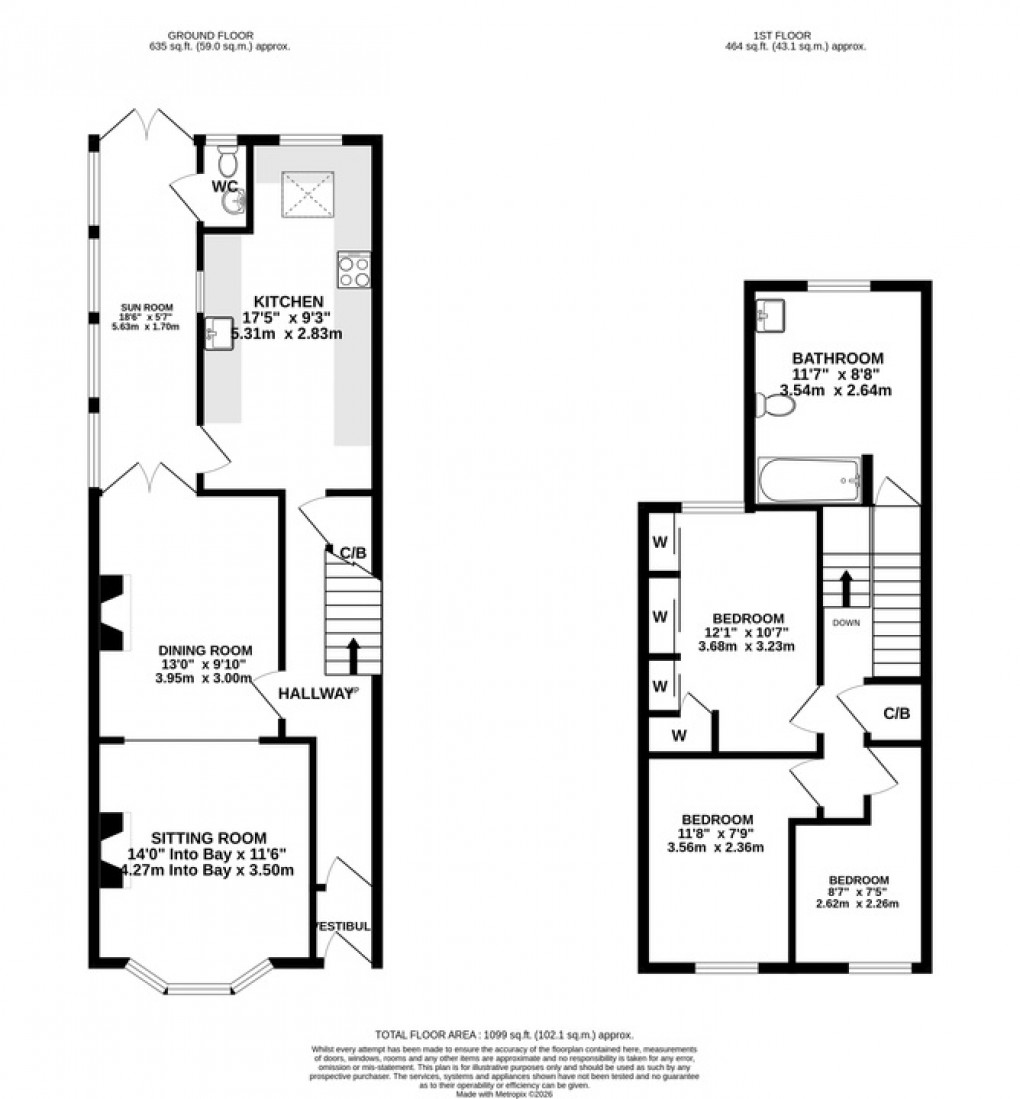
You are welcomed into the property via an entrance vestibule, ideal for coats and shoe storage, which in turn leads through to the hallway, from where doors provide access to all principal ground floor rooms. To the front of the property is a bright and inviting sitting room, enhanced by a bay window that allows an abundance of natural light to flood the space. Tastefully decorated and centred around a feature fireplace, the room offers a warm and welcoming atmosphere. An opening leads through to the dining area, offering plenty of space for a dining table and chairs, with a characterful open fire and alcove storage adding to the charm. Once divided, these rooms now work together as a generous open-plan living and dining space which is perfect for everyday living and entertaining, while still retaining a natural sense of separation. The kitchen is positioned to the rear of the property and forms a bright and welcoming space, fitted with a comprehensive range of wall, base and drawer units, along with a built-in oven and hob and a traditional Belfast sink. There is space for freestanding appliances, while the dual aspect and Velux window make the room feel bright and airy. Leading directly from the kitchen, and also accessed via French doors from the dining room, is a delightful sun room. This versatile additional reception room is ideal for relaxed breakfasts, quiet evenings or simply sitting back and enjoying views over the garden. From here, there is also access to a convenient ground floor cloakroom and direct access out to the rear garden.
Stairs rise from the hallway to a half-landing, where a spacious family bathroom is fitted with a white suite, comprising, bath with shower over, wash basin with storage beneath, and WC. Stairs continue to the first floor, where the principal bedroom is generously proportioned and features practical fitted wardrobes. Two further bedrooms; a good-sized double and a large single, provide flexible accommodation, ideal for family living, guests, or a home office.
**Outside**
To the rear, the property enjoys a desirable south-west facing garden of generous size, especially for a central location. A large deck with a covered pergola provides an ideal space for outdoor dining and entertaining, leading naturally onto an area of lawn bordered by mature shrubs, creating a sense of openness and privacy. At the far end, a further decked area houses a large garden shed, offering excellent storage or potential as a workshop. The garden is fully enclosed, private, and benefits from convenient side access to the front of the property.
**Location**
The property is situated in one of the oldest parts of the town within a level walk of the shopping facilities in the High Street and Clarks Village with its complex of factory shopping outlets. Street also offers a good range of sporting and recreational facilities including both indoor and outdoor swimming pools, tennis, bowls, football, cricket etc., and Strode Theatre. The historic town of Glastonbury is 2 miles and the Cathedral City of Wells is 8 miles. The nearest M5 motorway interchange at Dunball, Bridgwater (Junction 23) is 12 miles, whilst Bristol, Bath, Taunton and Yeovil are all within commuting distance.
**Directions**
Proceed along the High Street and upon reaching Living Homes, turn left into Vestry Road. The property will be found a short distance on the right hand side and will be identified by our for sale board.
**Material Information**
**Identity Verification**
To ensure full compliance with current legal requirements, all buyers are required to verify their identity and risk status in line with anti-money laundering (AML) regulations before we can formally proceed with the sale. This process includes a series of checks covering identity verification, politically exposed person (PEP) screening, and AML risk assessment for each individual named as a purchaser. In addition, for best practice, we are required to obtain proof of funds and where necessary, to carry out checks on the source of funds being used for the purchase. These checks are mandatory and must be completed regardless of whether the purchase is mortgage-funded, cash, or part of a related transaction. A disbursement of £49 per individual (or £75 per director for limited company purchases) is payable to cover all aspects of this compliance process. This fee represents the full cost of conducting the required checks and verifications. You will receive a secure payment link and full instructions directly from our compliance partner, Guild365, who carry out these checks on our behalf.
Floorplan
EPC
To discuss this property call our Street branch:
Market your property
with Holland & Odam
Book a market appraisal for your property today. Our virtual options are still available if you prefer.