Share:
Description
- Quiet cul-de-sac position on the western edge of Street and arguably one of the most desirable plots within the close.
- Spacious lounge with feature gas fireplace and excellent natural light.
- Stylish open plan kitchen/dining room with integrated appliances and breakfast bar.
- Principal bedroom with fitted wardrobes and contemporary en-suite shower room.
- Enclosed west-facing garden with patio, lawn and well stocked borders.
- Driveway parking leading to garage with power and light.
**Accommodation**
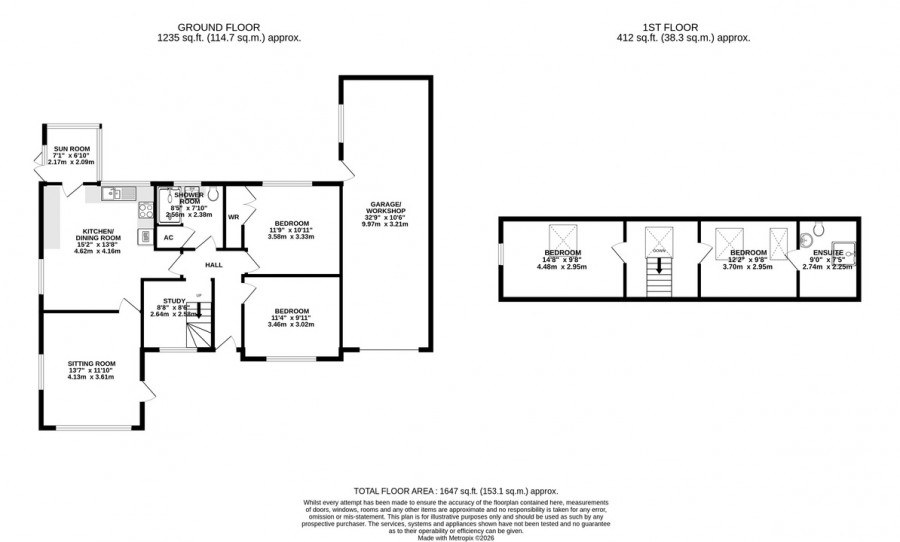
The property is entered via a spacious and welcoming entrance hall which immediately sets the tone for this well-proportioned family home. There is a useful understairs storage and a ground floor cloakroom fitted with a WC and wash hand basin, along with an additional storage cupboard providing practical everyday convenience. Doors lead to the principal ground floor rooms and stairs rise to the first floor. Positioned to the left of the hallway is a generously sized lounge featuring an attractive gas fireplace which creates a cosy focal point to the room. A large window to the front allows an abundance of natural light to flood the space, making it a bright and comfortable room in which to relax. A wide opening leads seamlessly through to the kitchen/dining room, enhancing the sociable flow of the ground floor accommodation. The kitchen/dining room is a stylish and well-designed open plan space, ideal for modern family living. The kitchen area is fitted with a range of high gloss wall, base and drawer units complemented by integrated appliances including a double oven, hob, fridge and dishwasher. A breakfast bar provides additional seating and preparation space, making it perfect for casual dining in a busy household. The dining area offers ample space for a family-sized table and chairs, creating a wonderful social environment that is perfectly suited to both everyday family meals and entertaining guests. From the dining area, sliding doors open into the conservatory a versatile additional reception space which enjoys pleasant views over the garden and provides direct access outside. This room offers flexibility for a variety of uses such as a sitting area, playroom or home office. Completing the ground floor is a particularly useful utility room which continues the style of the kitchen with fitted wall units and incorporates integrated appliances including a freezer and washing machine. From here there is an internal door to the garage as well as a further door providing access out to the garden.
Stairs rise from the entrance hall to the first floor landing, where there is access to the loft space and a useful airing cupboard providing additional storage. The principal bedroom benefits from fitted wardrobes providing excellent storage and enjoys the advantage of a contemporary en-suite shower room. The en-suite is stylishly appointed with a vanity unit incorporating a wash hand basin and storage beneath, a WC and a large shower enclosure, all finished in a modern design. There are three further bedrooms, two of which benefit from fitted wardrobe space. These rooms enjoy pleasant views towards the surrounding countryside and offer flexible accommodation for family members, guests or the potential for a home office if required. Completing the first floor accommodation is a stylish family bathroom fitted with a modern suite comprising a bath with shower over, WC and wash hand basin set within a vanity unit providing useful storage, all finished to a contemporary standard.
**Outside**
The rear of the property features a well-enclosed, west-facing garden that enjoys a good degree of privacy, is not overlooked, and benefits from charming views over the countryside beyond. A generous patio extends across the rear of the house, providing an ideal space for outdoor seating and entertaining. Beyond, the garden is mainly laid to lawn and complemented by well-stocked shrub borders, adding colour and interest throughout the year. This attractive outdoor space is perfect for al fresco dining and making the most of the afternoon and evening sun.
To the front of the property there is an area laid to lawn alongside driveway parking which leads to the garage. The garage is fitted with an up and over door and benefits from power and light.
**Location**
Westacre lies on the western side of the vibrant mid-Somerset town of Street, well known as the home of Clarks Shoes and Millfield School. Street offers a wide range of amenities including primary and secondary schools, Strode College, Strode Theatre, indoor and outdoor swimming pools, a health centre, library, and a variety of pubs and restaurants. The historic town of Glastonbury is just 2.5 miles away, with the cathedral city of Wells approximately 9 miles distant. For commuters, the A303 at Podimore is 9.5 miles away and the M5 (junction 23) is within 12 miles, making the location well-connected regionally.
**Directions**
From the High Street, proceed past Avalon Guns on the left and shortly after, turn left into Stonehill. At the top of the hill, turn right and follow the road, negotiating the sharp left-hand bend into Brooks Road. Take the next right into Brookfield Way, then follow the road for a short distance before taking the fourth left into Westacre. The property will be found directly in front of you on the left.
**Material Information**
**Identity Verification**
To ensure full compliance with current legal requirements, all buyers are required to verify their identity and risk status in line with anti-money laundering (AML) regulations before we can formally proceed with the sale. This process includes a series of checks covering identity verification, politically exposed person (PEP) screening, and AML risk assessment for each individual named as a purchaser. In addition, for best practice, we are required to obtain proof of funds and where necessary, to carry out checks on the source of funds being used for the purchase. These checks are mandatory and must be completed regardless of whether the purchase is mortgage-funded, cash, or part of a related transaction. A disbursement of £49 per individual (or £75 per director for limited company purchases) is payable to cover all aspects of this compliance process. This fee represents the full cost of conducting the required checks and verifications. You will receive a secure payment link and full instructions directly from our compliance partner, Guild365, who carry out these checks on our behalf.
Floorplan
To discuss this property call our Street branch:
Market your property
with Holland & Odam
Book a market appraisal for your property today. Our virtual options are still available if you prefer.