Share:
Description
- A unique single building plot opportunity to construct a substantial luxury new home covering in excess of 3360 sq feet internally
- Stunning edge of village setting within Over Stratton benefitting from far reaching views across open countryside from an elevated position
- The rarest of opportunities to build a totally unique, architect inspired home, to your own specification
- All the benefits and privacy of a rural village location, yet set within just 5-10 minutes drive of a wealth of amenities
- Fully consented site where you will be acquiring land and appointing a highly regarded construction team to deliver your finished house
- Feature glazed elevations and roof terrace to take advantage of a glorious position and elevated views across open countryside
**Accommodation**
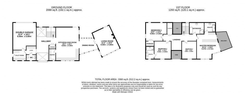
The finished property will be of comfortable proportions, spanning 3360 square feet (312.2 square metres) of useable floorspace and can be acquired with a pre-tendered build contract if desired. It will enjoy a tasteful blend of modern architectural features and building methods with a contemporary finish suited to 21st century living, all whilst complementing its surroundings. Location is key and this generous plot of 0.4 acres has beautiful panoramic countryside views that will certainly not disappoint.
This is a fully consented site where you will be acquiring land and appointing a highly regarded construction team whose wealth of experience and great eye for detail will deliver exceptional standards throughout and ensure that the process is a seamless one through to completed build and move in. A full breakdown of process and schedule of costs can be provided by Holland & Odam.
Thoughtfully designed, this beautiful home enjoys a well-considered layout providing impressive living accommodation that is light, generously proportioned throughout and with feature glazed elevations and roof terrace to take advantage of its glorious position and elevated views across open countryside.
Attractively constructed of part stone and slate clad elevations sat beneath an aluminum roof, this striking house is designed for 21st century living and with floorspace covering in excess of 3360sq ft, this incredibly comfortable home will appeal to those seeking luxury combined with the pinnacle of energy efficiency.
Well positioned within its plot, which measures 0.4 acres, The Outlook will enjoy a private situation behind gated entrance where an expansive driveway will provide ample parking leading up to the garage. At the rear of the property, a considerable size garden will be attractively landscaped to your design, perfect for keen gardeners and families alike and with the possibility of a full width terrace extending from the rear elevation, ideal for entertaining and accessed from the principle living area of the home. Beyond the foot of the garden, entirely due south, is rolling countryside as far as the eye can see.
**Location**
Over Stratton is a picturesque village situated at the edge of rolling countryside, close to the village of South Petherton, a small country town with a village atmosphere, set in attractive surroundings and once voted the second best village in the country to bring up a family. Over Stratton itself benefits from the popular New Farm Restaurant and B&B, as well as a thriving local Inn, which often hosts live music and themed food nights. An active village hall is home to a highly regarded children's nursery in the mornings, exercise classes and various other activities and sessions for locals to meet and enjoy a sense of community. There is close access to the A303 and train stations in the local towns of Crewkerne, Yeovil and Taunton with direct links to London.
**Directions**
From the Market Place in Somerton, head through West Street and turn left onto Pesters Lane, follow the road for approximately 2 miles until you reach the end of the road, here turn left onto Langport Road. When you get to Podimore roundabout, take the fourth exit onto the A303. Continue for around 5 miles before taking the second exit at the next roundabout. At the next roundabout take the second exit onto Harp Road, before taking the first left onto Over Stratton Road. Turn left onto South Harp and take the first right onto Oakland Lane.
**Material Information**
All available property information can be provided upon request from Holland & Odam. For confirmation of mobile phone and broadband coverage, please visit checker.ofcom.org.uk
Floorplan
To discuss this property call our Somerton branch:
Market your property
with Holland & Odam
Book a market appraisal for your property today. Our virtual options are still available if you prefer.