Share:
Description
- Built by Bloor Homes and completed in 2022, with remaining NHBC guarantee
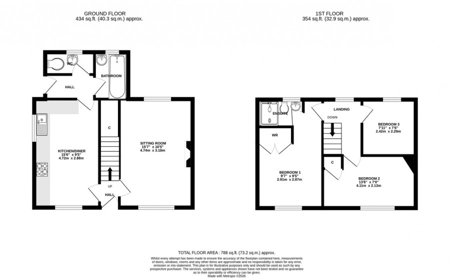
- Modern end of terrace home within Somerton Town
- Spacious living room, bright kitchen/diner and convenient WC
- Three bedrooms with family bathroom and master en-suite shower room
- Fully enclosed rear garden, with garden outbuilding addition
- Off road parking consisting of two allocated parking spaces and additional visitors parking
**Location**
Somerton is a picturesque, rural town in the heart of Somerset. There are a good level of amenities within this beautiful Market town including some local, independent shops, Art Galleries, antiques, cafes and several public houses enjoying attractive beer gardens and restaurants. Somerton also offers a library, doctor and dentist surgery, opticians, TSB bank, churches and schools within the town. Further amenities can be found on the outskirts of Somerton within Bancombe Business Park including garages, recycling centre and Edgar Hall which holds a number of events for the locals to enjoy. A more comprehensive range of amenities can be found in Yeovil (south) or the County town of Taunton (west). Somerton is well positioned for travel, close to the A303 and M5 with a well linked bus service and mainline railway stations are located in Castle Cary, Yeovil and Taunton with direct links to Waterloo and Paddington.
**Directions**
From The Market Place, Somerton head along West Street and bear right at the fork. At the mini roundabout take the first exit onto Langport Road B3153. Take the last turning on your right before leaving Somerton, onto Cartway Lane. At the mini roundabout, turn right onto Bancombe Road and take the third left into Maple Drive. Follow the road and keeping right, the property can be found shortly on your right hand side.
**Material Information**
All available property information can be provided upon request from Holland & Odam. For confirmation of mobile phone and broadband coverage, please visit checker.ofcom.org.uk
**Identity Verification**
To ensure full compliance with current legal requirements, all buyers are required to verify their identity and risk status in line with anti-money laundering (AML) regulations before we can formally proceed with the sale. This process includes a series of checks covering identity verification, politically exposed person (PEP) screening, and AML risk assessment for each individual named as a purchaser. In addition, for best practice, we are required to obtain proof of funds and where necessary, to carry out checks on the source of funds being used for the purchase. These checks are mandatory and must be completed regardless of whether the purchase is mortgage-funded, cash, or part of a related transaction. A disbursement of £49 per individual (or £75 per director for limited company purchases) is payable to cover all aspects of this compliance process. This fee represents the full cost of conducting the required checks and verifications. You will receive a secure payment link and full instructions directly from our compliance partner, Guild365, who carry out these checks on our behalf.
Floorplan
To discuss this property call our Somerton branch:
Market your property
with Holland & Odam
Book a market appraisal for your property today. Our virtual options are still available if you prefer.