Share:
Description
- Spacious five-bedroom detached home located in a quiet close within the highly regarded Watts Corner development on the outskirts of Glastonbury.
- Generous sitting room with feature fireplace and French doors opening directly onto the rear garden, perfect for family relaxation or entertaining.
- Kitchen/family room with integrated 'NEFF' appliances, ample work units, and space for a table, plus separate utility room with side access.
- Formal dining room and separate front-facing study provide flexible space for entertaining or working from home, both accessed from the main hallway.
- Principal bedroom with fitted wardrobes and en-suite bathroom; guest bedroom also benefits from a modern en-suite shower room and built in cupboards.
- Three further well-proportioned bedrooms, two with built-in storage, served by a family bathroom with separate bath and shower.
- Enclosed rear garden with patio and lawn, side access, timber shed, double garage with electric door, and brick-paved driveway for multiple vehicles.
**Accommodation**
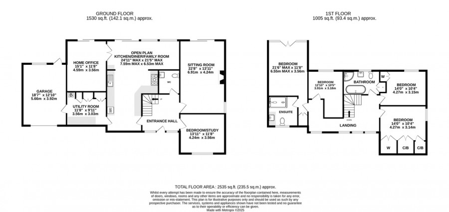
Tucked away in a peaceful close of similarly styled homes on the sought-after Watts Corner development, this spacious five-bedroom detached house offers well-balanced and versatile accommodation, ideal for modern family living. A generous hallway with central staircase gives access to all principal ground floor rooms including a dedicated study and a formal dining room, both front-facing and finally access to the cloakroom. The spacious sitting room spans the full depth of the house, with a superb feature fireplace and French doors opening onto the rear garden, providing a lovely spot to relax and entertain. The kitchen/breakfast room enjoys a sociable layout, fitted with an updated range of wall, base and drawer units, integrated appliances including a 'NEFF' gas hob and double oven, upright fridge and freezer, a dishwasher and ample space for a breakfast/dining table. Adjacent is a practical utility room with plumbing for white goods and a door to the side garden. along with access to the cloakroom.
Upstairs, the light-filled landing leads to five well-proportioned bedrooms. The principal bedroom with a front facing aspect and features fitted wardrobes, plus an en-suite bathroom. Bedroom two also benefits from its own en-suite shower room and fitted wardrobes, ideal for guests or growing families. Bedrooms three and four are generous doubles with built-in storage, and the fifth bedroom is a comfortable single, ideal for a nursery or additional office. A well-appointed family bathroom completes the first floor, with a separate shower enclosure, bath, WC and wash hand basin.
**Outside**
Externally, the property enjoys a lovely rear garden enclosed by timber fencing and a brick wall, with a large patio extending from the house and lawn beyond. The garden captures plenty of afternoon sun and includes a side gate leading to the front driveway. To the side, a timber shed provides additional storage. A driveway offers parking for several vehicles and leads up to the double garage, which benefits from an electric door, power, light and eaves storage.
**Location**
Situated in a quiet and exclusive development of similar large homes, this property offers the perfect balance of seclusion and convenience. Located on the outskirts of this historic town, with its good range of shops, banks, supermarkets, restaurants, cafes, health centres, schools and public houses. Glastonbury is renowned for its Tor and Abbey Ruins and is some 6 miles from the Cathedral City of Wells. Street is 2 miles and offers more comprehensive facilities including Strode Theatre, Strode College, both indoor and open air swimming pools and Clarks Village with its complex of shopping outlets. Access to the M5 motorway can be gained at junction 23 some 14 miles distant, whilst Bristol, Bath and Yeovil are all within commuting distance.
**Directions**
From the town centre, proceed up the High Street passing St John's Church on the left. At the top of the High Street, turn left into Wells Road and continue towards the roundabout (after approximately 0.75 miles). Just before the roundabout, there is a turning on the right into Old Wells Road. The turning for Watts Corner is found on the right hand side, after about 400 yards. Follow the road around to the right, and almost immediately right again, into small cul-de-sac, with number 8 situated at the end.
**Material Information**
All available property information can be provided upon request from Holland & Odam. For confirmation of mobile phone and broadband coverage, please visit checker.ofcom.org.uk
**Identity Verification**
To ensure full compliance with current legal requirements, all buyers are required to verify their identity and risk status in line with anti-money laundering (AML) regulations before we can formally proceed with the sale. This process includes a series of checks covering identity verification, politically exposed person (PEP) screening, and AML risk assessment for each individual named as a purchaser. In addition, for best practice, we are required to obtain proof of funds and where necessary, to carry out checks on the source of funds being used for the purchase. These checks are mandatory and must be completed regardless of whether the purchase is mortgage-funded, cash, or part of a related transaction. A disbursement of £49 per individual (or £75 per director for limited company purchases) is payable to cover all aspects of this compliance process. This fee represents the full cost of conducting the required checks and verifications. You will receive a secure payment link and full instructions directly from our compliance partner, Guild365, who carry out these checks on our behalf.
Floorplan
EPC
To discuss this property call our Glastonbury branch:
Market your property
with Holland & Odam
Book a market appraisal for your property today. Our virtual options are still available if you prefer.