Share:
Description
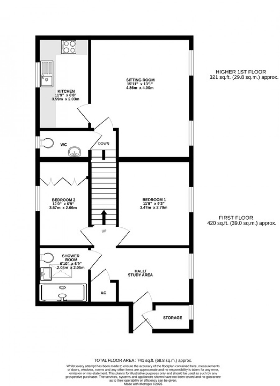
- Two double bedrooms with bedroom one having an ensuite shower room
- Allocated carport parking
- Spacious double aspect sitting / dining room with French doors leading out to a small patio
- Family bathroom with shower over
- Gas fired central heating
- Double glazed windows
- Benefitting from the use of an attractive walled garden
- Short walk to the bus station, shops and cinema
- Ideal first time or investment purchase or perhaps as a "lock up and leave" property.
**Location**
Wells is the smallest city in England and offers a vibrant high street with a variety of independent shops and restaurants as well as a twice weekly market and a choice of supermarkets including Waitrose. Amenities include a leisure centre, independent cinema and a theatre. Bristol and Bath lie c.22 miles to the north and north-east respectively with mainline train stations to London at Castle Cary (c.11 miles) as well as Bristol and Bath. Bristol International Airport is c.15 miles to the north-west. Of particular note is the variety of well-regarded schools in both the state and private sectors in Wells and the surrounding area.
**Directions**
From Wells High Street proceed into Broad Street and then into Priory Road. Turn right into Princes Road and then at the traffic lights left into Tucker Street. Take the first turning left into West Street and bear right into St Andrews Mews. Go straight ahead as the road bears to the left and then bear right and the entrance can be seen at the nearest end of the building.
**Material Information**
All available property information can be provided upon request from Holland & Odam. For confirmation of mobile phone and broadband coverage, please visit checker.ofcom.org.uk
**Identity Verification**
To ensure full compliance with current legal requirements, all buyers are required to verify their identity and risk status in line with anti-money laundering (AML) regulations before we can formally proceed with the sale. This process includes a series of checks covering identity verification, politically exposed person (PEP) screening, and AML risk assessment for each individual named as a purchaser. In addition, for best practice, we are required to obtain proof of funds and where necessary, to carry out checks on the source of funds being used for the purchase. These checks are mandatory and must be completed regardless of whether the purchase is mortgage-funded, cash, or part of a related transaction. A disbursement of £49 per individual (or £75 per director for limited company purchases) is payable to cover all aspects of this compliance process. This fee represents the full cost of conducting the required checks and verifications. You will receive a secure payment link and full instructions directly from our compliance partner, Guild365, who carry out these checks on our behalf.
Floorplan
EPC
To discuss this property call our Wells branch:
Market your property
with Holland & Odam
Book a market appraisal for your property today. Our virtual options are still available if you prefer.