Share:
Description
- Well-proportioned ground floor flat, located on the popular Glaston Road in Street, close to local amenities
- Quality finishes including internal doors, brushed chrome fittings, under-cabinet lighting, and premium light fixtures
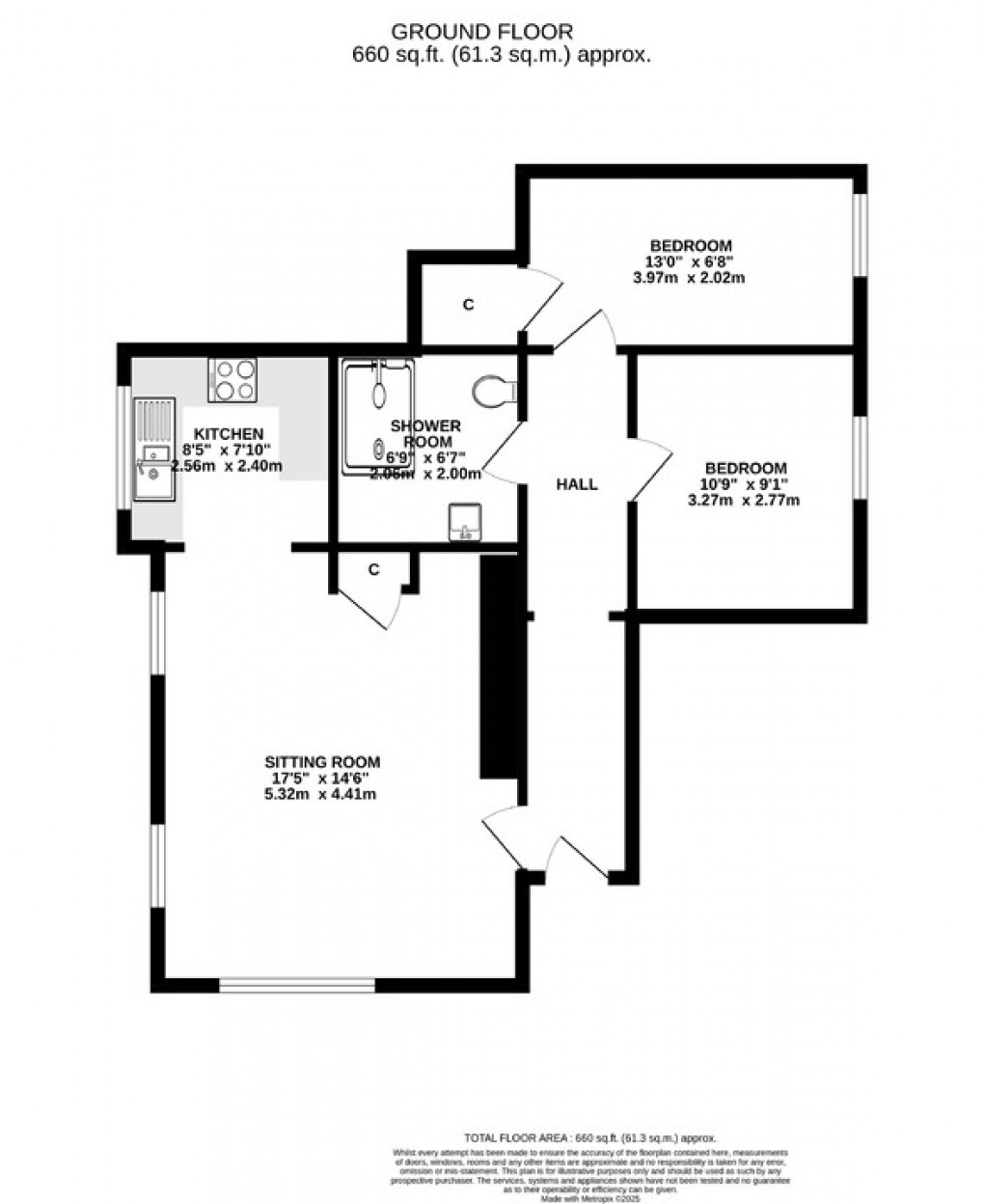
- Spacious sitting room with dual aspect windows and a stunning stone fireplace
- Modern kitchen with integrated electric oven and hob, plus space for further appliances
- Two good-sized bedrooms, both with side aspect windows; second includes built-in wardrobe
- Contemporary shower room with walk-in enclosure, rainfall shower, WC and vanity basin unit
- Light-filled rooms throughout, offering comfortable and practical living space
- Shared, enclosed entrance porch and private front door into the reception hall
- Allocated off-road parking space for added convenience, together with two EV chargers for owner and guest use.
**Location**
Glaston Road is a popular and convenient location, set towards the outskirts of Street. The property is ideally positioned within walking distance of the High Street, Clarks Village, Sainsbury’s, and a variety of cafés, shops and leisure facilities. Millfield Senior School, Crispin School, and Elmhurst School are all close by. The nearby towns of Glastonbury, Wells and Somerton offer additional amenities, while Castle Cary station is around 13 miles away with a direct service to London Paddington. The M5 (junction 23) is around 14 miles west, providing excellent transport links.
**Directions**
Follow the High Street in an easterly direction, Bear Hotel on the right hand side. At a mini roundabout take the first exit into Glaston Road. Continue a short distance and the property will be found on the right hand side,behind the terrace, accessed over a shared private drive.
**Material Information**
All available property information can be provided upon request from Holland & Odam. For confirmation of mobile phone and broadband coverage, please visit checker.ofcom.org.uk
**Identity Verification**
To ensure full compliance with current legal requirements, all buyers are required to verify their identity and risk status in line with anti-money laundering (AML) regulations before we can formally proceed with the sale. This process includes a series of checks covering identity verification, politically exposed person (PEP) screening, and AML risk assessment for each individual named as a purchaser. In addition, for best practice, we are required to obtain proof of funds and where necessary, to carry out checks on the source of funds being used for the purchase. These checks are mandatory and must be completed regardless of whether the purchase is mortgage-funded, cash, or part of a related transaction. A disbursement of £49 per individual (or £75 per director for limited company purchases) is payable to cover all aspects of this compliance process. This fee represents the full cost of conducting the required checks and verifications. You will receive a secure payment link and full instructions directly from our compliance partner, Guild365, who carry out these checks on our behalf.
Floorplan
EPC
To discuss this property call our Street branch:
Market your property
with Holland & Odam
Book a market appraisal for your property today. Our virtual options are still available if you prefer.