Share:
Description
- Impressive open-plan kitchen/dining room with multi-fuel burner, the perfect everyday family hub, with ample space for a family-sized dining table.
- Two additional reception rooms including a generous dual-aspect living room with sliding doors to the garden, and a cosy snug with coal burner.
- Four well-proportioned bedrooms offering superb flexibility for family, guests, working from home, or hobbies.
- Private enclosed rear garden with patio seating area, lawn and outbuilding, ideal for outdoor dining and entertaining.
- Generous driveway parking for multiple vehicles, alongside a lawned front garden and five-bar gate providing side access.
- Exciting potential for enhancement, including an unfinished but watertight porch with scope to open into the kitchen (subject to necessary consents).
**Accommodation**
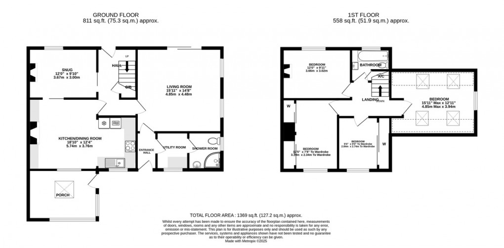
Upon entering the property, you are welcomed through the entrance hall, with doors opening into the main living room and a useful utility room, with access to the ground floor shower room beyond. The living room is a superb dual-aspect space featuring sliding doors to the garden, allowing natural light to fill the room opening the space wonderfully onto the rear garden. From here, the inner hall flows into the impressive kitchen/dining room, a superb social space, ideal for both everyday family living and entertaining. The room is fitted with a comprehensive range of wall, base and drawer units together with integrated appliances, including a dishwasher, fridge/freezer, oven and induction hob. There is ample room for a family-sized table and chairs, while a striking multi fuel burner forms a warm and welcoming focal point to the room.Adjoining this space is the snug, a charming, intimate room with sash window and a character coal burner, creating a cosy evening retreat.
A staircase rises to a generous landing, with access to all first-floor rooms. The principal bedroom is exceptionally light and airy, benefitting from Velux windows, a superb footprint and excellent space for free-standing furniture, with potential to add fitted wardrobes if desired. Three further well-proportioned bedrooms offer exceptional versatility for family, guests, play space or home-working. Period detailing, sash windows and elevated views further enhance the character and appeal of these rooms. Completing the first floor is the stylish family bathroom featuring contemporary tiling, bath with shower over, WC, wash basin and airing cupboard.
**Outside**
The rear garden is private and enclosed, predominantly laid to lawn and designed for low maintenance, with a patio positioned off the rear of the house, ideal for alfresco dining and entertaining. A useful storage shed completes the space.
At the front, a neatly lawned garden accompanies a generous driveway with parking for several vehicles, while a five-bar gate to the side provides further access if needed. An enclosed, watertight porch sits to the front, presenting an exciting opportunity for future enhancement and potential reconfiguration of the ground floor, subject to consents.
**Location**
The village of Stawell offers a peaceful setting with a church and active village hall, while nearby Catcott and Edington provide a mini supermarket, popular pubs, and a well-regarded primary school. Street, home to Millfield School and Clarks Village, is just 7.5 miles away. Bridgwater, a historic market town, offers a wide range of shops, entertainment, and everyday amenities. The property enjoys excellent access to the A39, placing the M5 at Junction 23 (Dunball) within 4 miles, Gravity Park just 3.5 miles away, and Bristol Airport within 26 miles. Bristol, Taunton, and Exeter are all within commuting distance.
**Directions**
From Street, take the A39 north towards Bridgwater, passing through Walton and Ashcott. After approximately 6.5 miles, turn left onto Moor Road, signposted Stawell. Continue along Moor Road for about a mile, then turn right at the T-junction onto Stawell Road and proceed into the village. Follow the road almost to the far end of the village and, where the road forks, bear right onto Wood Lane. The property will be found a short distance along on the left-hand side.
**Material Information**
All available property information can be provided upon request from Holland & Odam. For confirmation of mobile phone and broadband coverage, please visit checker.ofcom.org.uk
**Identity Verification**
To ensure full compliance with current legal requirements, all buyers are required to verify their identity and risk status in line with anti-money laundering (AML) regulations before we can formally proceed with the sale. This process includes a series of checks covering identity verification, politically exposed person (PEP) screening, and AML risk assessment for each individual named as a purchaser. In addition, for best practice, we are required to obtain proof of funds and where necessary, to carry out checks on the source of funds being used for the purchase. These checks are mandatory and must be completed regardless of whether the purchase is mortgage-funded, cash, or part of a related transaction. A disbursement of £49 per individual (or £75 per director for limited company purchases) is payable to cover all aspects of this compliance process. This fee represents the full cost of conducting the required checks and verifications. You will receive a secure payment link and full instructions directly from our compliance partner, Guild365, who carry out these checks on our behalf.
Floorplan
EPC
To discuss this property call our Street branch:
Market your property
with Holland & Odam
Book a market appraisal for your property today. Our virtual options are still available if you prefer.