Share:
Description
Peelers Barn is a charming detached converted barn, offered to the market with no onward chain and brimming with character, including exposed stonework and beams throughout. Approached via a large gated driveway, the property enjoys generous outside space with expansive lawns, mature trees, patio areas and a picturesque stream.
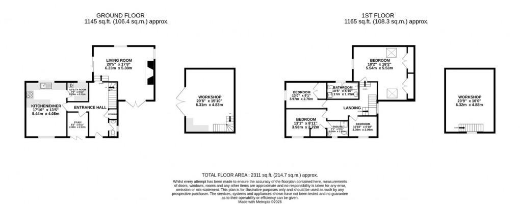
A particularly noteworthy feature is the substantial two-storey outbuilding, offering excellent versatility for a range of uses. This space presents a fantastic opportunity for further development, whether as additional accommodation, a home office suite or recreational space, subject to the necessary planning permissions and building regulations.
The main residence offers impressively proportioned accommodation throughout and provides an exciting opportunity for a buyer to modernise and create a truly special home. The ground floor comprises a welcoming entrance, downstairs WC, study/bedroom five, a spacious kitchen/diner with adjoining utility room, and a superb triple-aspect living room enjoying views across the gardens.
Upstairs, there are four well-sized bedrooms, including a particularly impressive principal bedroom featuring exposed beams, alongside an en-suite to bedroom two and a family bathroom.
Situated in the highly sought-after village of Pitney, Peelers Barn offers a rare opportunity to acquire a home of real character and scale, with significant potential to enhance and tailor to individual tastes.
**Location**
Pitney is a charming village ideally positioned between Somerton and Langport, offering a peaceful rural setting whilst remaining well connected. The village itself benefits from a local church, village hall, farm shop and a traditional pub, creating a strong sense of community.
A selection of well regarded primary schools can be found in nearby High Ham, Langport and Somerton, with secondary education available at the highly regarded Huish Episcopi Academy and sixth form in Langport.
Both Somerton and Langport provide a comprehensive range of everyday amenities including independent shops, banking facilities, post offices, libraries, doctors’ and dental surgeries, along with a variety of cafés, restaurants and public houses. Ample free parking is also available within both towns. Mainline rail services are available via Castle Cary or Taunton, providing direct access to London Paddington.
**Directions**
From Somerton Market Place, proceed along West Street to the end and at the mini roundabout take the first exit onto Langport Road (B3153). Continue out of Somerton and take the first right signposted for Pitney. Follow Hermitage Road down the hill, then take the first left into Courthay Orchard. Continue around the S-bend, where the property will be found shortly on your right hand side, clearly identified by our For Sale board.
**Material Information**
All available property information can be provided upon request from Holland & Odam. For confirmation of mobile phone and broadband coverage, please visit checker.ofcom.org.uk
**Identity Verification**
To ensure full compliance with current legal requirements, all buyers are required to verify their identity and risk status in line with anti-money laundering (AML) regulations before we can formally proceed with the sale. This process includes a series of checks covering identity verification, politically exposed person (PEP) screening, and AML risk assessment for each individual named as a purchaser. In addition, for best practice, we are required to obtain proof of funds and where necessary, to carry out checks on the source of funds being used for the purchase. These checks are mandatory and must be completed regardless of whether the purchase is mortgage-funded, cash, or part of a related transaction. A disbursement of £49 per individual (or £75 per director for limited company purchases) is payable to cover all aspects of this compliance process. This fee represents the full cost of conducting the required checks and verifications. You will receive a secure payment link and full instructions directly from our compliance partner, Guild365, who carry out these checks on our behalf.
A particularly noteworthy feature is the substantial two-storey outbuilding, offering excellent versatility for a range of uses. This space presents a fantastic opportunity for further development, whether as additional accommodation, a home office suite or recreational space, subject to the necessary planning permissions and building regulations.
The main residence offers impressively proportioned accommodation throughout and provides an exciting opportunity for a buyer to modernise and create a truly special home. The ground floor comprises a welcoming entrance, downstairs WC, study/bedroom five, a spacious kitchen/diner with adjoining utility room, and a superb triple-aspect living room enjoying views across the gardens.
Upstairs, there are four well-sized bedrooms, including a particularly impressive principal bedroom featuring exposed beams, alongside an en-suite to bedroom two and a family bathroom.
Situated in the highly sought-after village of Pitney, Peelers Barn offers a rare opportunity to acquire a home of real character and scale, with significant potential to enhance and tailor to individual tastes.
**Location**
Pitney is a charming village ideally positioned between Somerton and Langport, offering a peaceful rural setting whilst remaining well connected. The village itself benefits from a local church, village hall, farm shop and a traditional pub, creating a strong sense of community.
A selection of well regarded primary schools can be found in nearby High Ham, Langport and Somerton, with secondary education available at the highly regarded Huish Episcopi Academy and sixth form in Langport.
Both Somerton and Langport provide a comprehensive range of everyday amenities including independent shops, banking facilities, post offices, libraries, doctors’ and dental surgeries, along with a variety of cafés, restaurants and public houses. Ample free parking is also available within both towns. Mainline rail services are available via Castle Cary or Taunton, providing direct access to London Paddington.
**Directions**
From Somerton Market Place, proceed along West Street to the end and at the mini roundabout take the first exit onto Langport Road (B3153). Continue out of Somerton and take the first right signposted for Pitney. Follow Hermitage Road down the hill, then take the first left into Courthay Orchard. Continue around the S-bend, where the property will be found shortly on your right hand side, clearly identified by our For Sale board.
**Material Information**
All available property information can be provided upon request from Holland & Odam. For confirmation of mobile phone and broadband coverage, please visit checker.ofcom.org.uk
**Identity Verification**
To ensure full compliance with current legal requirements, all buyers are required to verify their identity and risk status in line with anti-money laundering (AML) regulations before we can formally proceed with the sale. This process includes a series of checks covering identity verification, politically exposed person (PEP) screening, and AML risk assessment for each individual named as a purchaser. In addition, for best practice, we are required to obtain proof of funds and where necessary, to carry out checks on the source of funds being used for the purchase. These checks are mandatory and must be completed regardless of whether the purchase is mortgage-funded, cash, or part of a related transaction. A disbursement of £49 per individual (or £75 per director for limited company purchases) is payable to cover all aspects of this compliance process. This fee represents the full cost of conducting the required checks and verifications. You will receive a secure payment link and full instructions directly from our compliance partner, Guild365, who carry out these checks on our behalf.
Floorplan
EPC
To discuss this property call our Somerton branch:
Market your property
with Holland & Odam
Book a market appraisal for your property today. Our virtual options are still available if you prefer.