Share:
Description
- Select village scheme of five new homes in Lovington near Castle Cary, blending stone elevations with contemporary detailing and set in a peaceful position beside open countryside with village walks.
- Well-planned layouts throughout featuring generous sitting rooms, smart kitchen/diners opening to private gardens, ground-floor WCs and well-proportioned bedrooms
- Private parking and enclosed rear gardens to every home, giving daily convenience, safe outdoor space for relaxing or entertaining, and easy upkeep for busy lifestyles or lock-up-and-leave use.
- Computer Generated Images show the finished appearance of the homes as designed, but are subject to change and materials are not definitive. The overall street scene is for indicative purposes only.
- Sought-after village setting affording a calm environment with local walks, while nearby Castle Cary provides shops, cafés and a mainline station for London Paddington and wider regional connections.
- Now under construction with an anticipated completion in June/July 2026; early registration of interest is welcomed, with a clear reservation process available to secure your chosen home off plan.
- All homes on this desirable village development deliver in practical space, modern fittings and an exceptional standard of build quality throughout.
Join us to view this exclusive development, now nearing completion and ready for viewing. No appointment necessary, simply come along and take a look around these exciting new homes. Full contact details will be required upon entry.*
A beautifully crafted three bedroom semi-detached home of generous proportions, forming part of an exclusive development of just five properties. Now nearing completion and ready for viewing, this is a rare opportunity to secure a brand new home in an idyllic village setting, just six minutes from Castle Cary station.
Designed with modern, energy-efficient living in mind, the property benefits from an air source heat pump with underfloor heating to the ground floor, high levels of insulation and an electric vehicle charging point, helping to deliver ultra-low running costs.
The development itself is set within the sought-after village of Lovington, combining attractive stone elevations with contemporary detailing, and enjoying a peaceful position beside open countryside with access to nearby village walks. Castle Cary offers a range of amenities, cafés and a mainline railway station providing direct links to London Paddington.
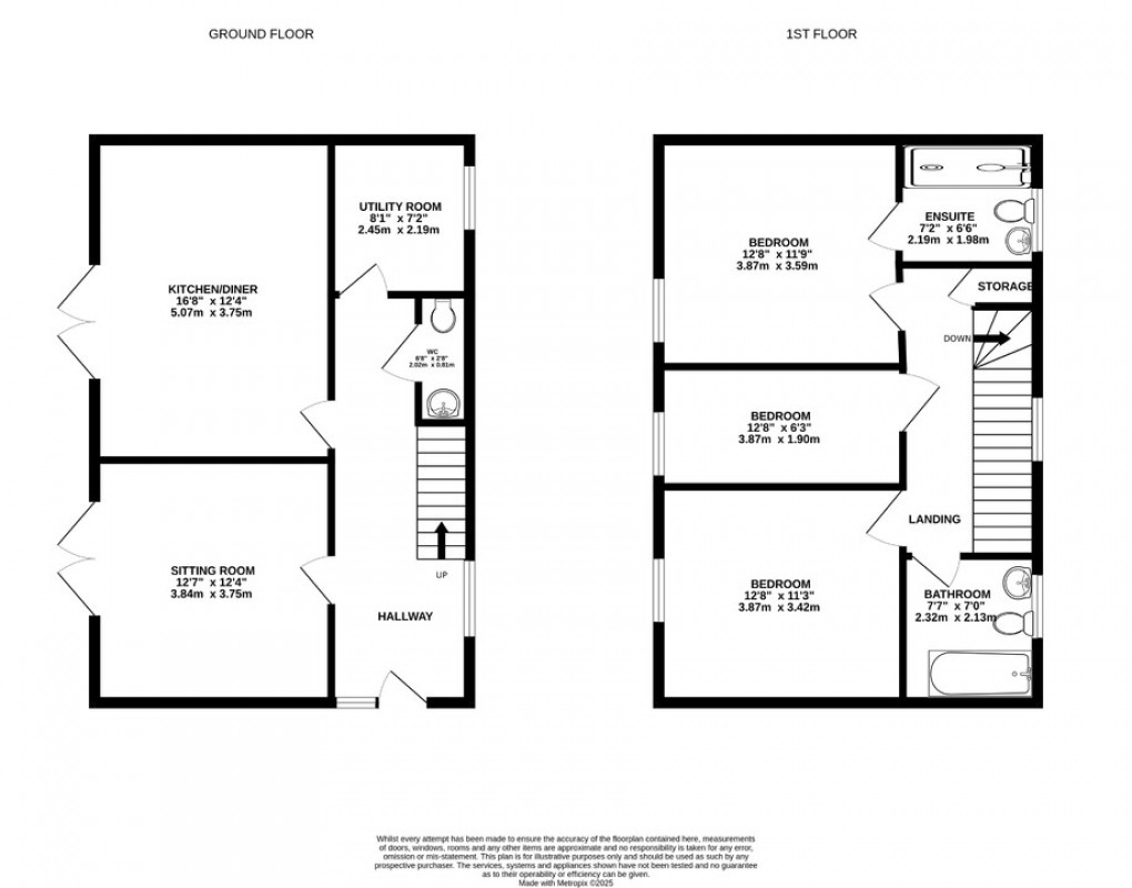
The accommodation is thoughtfully arranged, the ground floor features a generous sitting room and a stylish kitchen/diner both with double doors opening onto the rear garden, a WC and utility. Upstairs benefits from three well-proportioned bedrooms, a family bathroom and ensuite.
Externally, each home benefits from private parking and an enclosed rear garden, offering practical and low-maintenance outdoor space ideal for both relaxing and entertaining.
Early viewing is highly recommended.
**Accommodation**
On entering each home, you are welcomed into a light and inviting hallway, setting the tone for the well-planned spaces that follow. The ground floor layout is ideal for relaxing, entertaining guests, or enjoying quiet evenings in. The generous windows ensure excellent natural light, complementing the modern décor and high-quality finishes.
The heart of each three bedroom home is the bright and sociable kitchen/dining room, positioned to the rear to make the most of garden views. Fitted with a stylish range of traditional units, contrasting work surfaces, and integrated appliances, it will offer both form and function. The dining area provides ample space for a family table, with glazed doors opening directly to the garden, encouraging a seamless flow for summer entertaining and everyday life. A well proportioned sitting room allows a dedicated space to kick back and relax, also benefitting from direct access and outlook over the garden.
In each three bedroom home, the first floor offers a superb principal bedroom with the benefit of adjoining ensuite. Both further bedrooms are well proportioned and serviced by a contemporary family bathroom. Throughout all properties, careful attention has been given to storage solutions, ensuring every inch of space is well used.
**Location**
Lovington is a charming Somerset village just three miles west of Castle Cary, noted for its period architecture, historic church and strong sense of community. An annual village festival brings residents together, while everyday needs are met by a popular artisan bakery and café, along with both a nursery and a well-regarded primary school. The wider area is home to excellent independent schools, including Millfield and King’s Bruton, each within a short drive.
Despite its rural charm, Lovington is exceptionally well connected. Castle Cary’s mainline railway station is only six minutes away, offering regular direct services to London Paddington, making it an ideal choice for those seeking village life without sacrificing accessibility. The surrounding countryside is perfect for walking, cycling and outdoor pursuits, while Castle Cary itself provides a vibrant high street, weekly markets and a welcoming selection of pubs, restaurants and independent shops.
**Directions**
From the Market Place in Somerton, follow Broad Street & North Street to the mini roundabout. Turn right onto Horsemill Lane and at the T Junction turn left onto B3151. Take the first right onto B3153 and follow the road through Keinton Mandeville. At the crossroads, continue straight across and follow the road to the next set of traffic lights. The development can be found on your right hand side, identified by our advertisement sheets.
**Braymeare Property Group**
Founded by industry professionals with over 30 years of experience, Braymeare Property Group (https://www.braymearepropertygroup.co.uk/) delivers homes built to exacting standards across the southwest, with a strong focus on Somerset. Every development reflects a commitment to quality craftsmanship, thoughtful design and lasting value. From exacting site selection to finished interiors and landscaping, they maintain rigorous attention to detail. Their completed projects carry recognised credentials including regional awards for building excellence, demonstrating their credibility and dedication to delivering superb homes.
**Material Information**
All available property information can be provided upon request from Holland & Odam. For confirmation of mobile phone and broadband coverage, please visit checker.ofcom.org.uk
**Identity Verification**
To ensure full compliance with current legal requirements, all buyers are required to verify their identity and risk status in line with anti-money laundering (AML) regulations before we can formally proceed with the sale. This process includes a series of checks covering identity verification, politically exposed person (PEP) screening, and AML risk assessment for each individual named as a purchaser. In addition, for best practice, we are required to obtain proof of funds and where necessary, to carry out checks on the source of funds being used for the purchase. These checks are mandatory and must be completed regardless of whether the purchase is mortgage-funded, cash, or part of a related transaction. A disbursement of £49 per individual (or £75 per director for limited company purchases) is payable to cover all aspects of this compliance process. This fee represents the full cost of conducting the required checks and verifications. You will receive a secure payment link and full instructions directly from our compliance partner, Guild365, who carry out these checks on our behalf.
Floorplan
To discuss this property call our Somerton branch:
Market your property
with Holland & Odam
Book a market appraisal for your property today. Our virtual options are still available if you prefer.