Share:
Description
- Detached bungalow that has been extended and improved in recent years, offering well presented and practical accommodation throughout
- Spacious reception hall providing a central focal point with built in storage including coats cupboard, airing cupboard and utility cupboard
- Sitting room with patio doors opening onto the rear garden and feature stone fireplace with multi fuel stove
- Extended kitchen fitted with modern units, integrated appliances including double oven and induction hob, with dual aspect windows
- Two well proportioned double bedrooms both enjoying rear facing aspects, with fitted storage to bedroom one and built in wardrobe to bedroom two
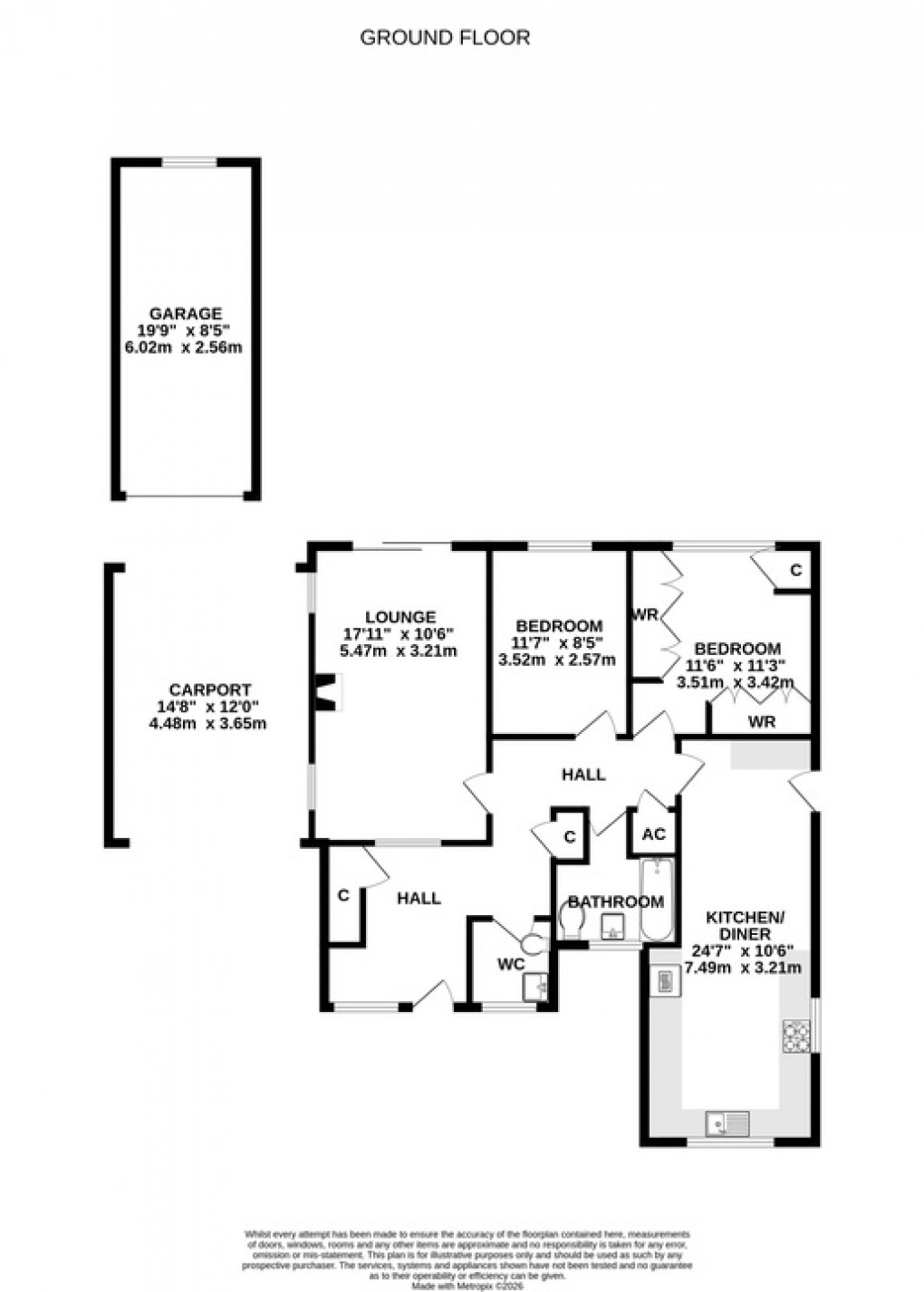
- Driveway parking for several vehicles leading to a carport and detached single garage, with secure side access to the rear garden
- Enclosed rear garden with patio, lawn, mature planting, summer house and garden store, enjoying a sunny aspect throughout the day
**Accommodation**
The front door opens into a light and spacious reception hall, forming a central feature of the home. Here there is a coats cupboard, airing cupboard and a further utility cupboard with space for a tumble dryer, with matching panelled doors leading to all principal rooms. The sitting room enjoys patio doors opening onto the rear terrace and garden, together with a feature stone fireplace housing a multi fuel stove. A cloakroom with WC and wash hand basin has been created as part of the extension, adding further practicality.
At the far end of the hall is the dining room, fitted with base and wall units and a door to the side, with a wide opening leading into the kitchen. The kitchen has been extended to the front and is fitted with a comprehensive range of modern wall, base and drawer units with integrated appliances including a double oven and induction hob, together with space and plumbing for a washing machine and upright fridge freezer. Dual aspect windows to the front and side allow good natural light. Both bedrooms are well proportioned doubles, enjoying rear facing aspects over the garden, with bedroom one benefitting from extensive fitted storage and bedroom two including a built in double wardrobe. The family bathroom has been updated with a suite comprising a panel bath with electric shower over, wash hand basin and WC.
**Outside**
The property is set back from Cox’s Drive behind a gravelled frontage screened by mature shrubs and planting. A large driveway provides extensive parking and leads to a covered carport and detached single garage. Secure pedestrian access is available to both sides of the bungalow, leading into the enclosed rear garden. This is well maintained and attractively arranged with a large patio terrace extending across the rear elevation, bordered by colourful planting and leading onto the lawn. To one corner there is a timber summer house along with a further garden store. The garden enjoys a high degree of sunlight, particularly during the spring and summer months.
**Location**
Baltonsborough is an attractive Somerset village surrounded by beautiful open countryside. The village is well served by a primary school, public house, village shop (opening Sept 23) and village hall. The parish hosts many clubs and activities. Glastonbury, Street and Shepton Mallet are all within easy reach and offer a further range of shopping, dining and leisure pursuits. Street is home to the Clarks Village outlet shopping and of course the Millfield School Campus with Edgarley School at Glastonbury. The nearest M5 motorway interchange at Dunball (Junction 23) is some thirty minutes drive whilst Bristol, Bath and Yeovil are all within daily commuting distance. Castle Cary, with its main line station to London Paddington, and the A303 major trunk road at Podimore, are both approximately 8 miles.
**Directions**
On entering the village from Street/Baltonsborough, proceed to the staggered crossroads in the village centre, (Greyhound Inn opposite). Turn right into Martin Street and continue a little further, where Coxs Drive can be found along on the left hand side. Turn here, with number 12 along on your right.
**Material Information**
All available property information can be provided upon request from Holland & Odam. For confirmation of mobile phone and broadband coverage, please visit checker.ofcom.org.uk
**Identity Verification**
To ensure full compliance with current legal requirements, all buyers are required to verify their identity and risk status in line with anti-money laundering (AML) regulations before we can formally proceed with the sale. This process includes a series of checks covering identity verification, politically exposed person (PEP) screening, and AML risk assessment for each individual named as a purchaser. In addition, for best practice, we are required to obtain proof of funds and where necessary, to carry out checks on the source of funds being used for the purchase. These checks are mandatory and must be completed regardless of whether the purchase is mortgage-funded, cash, or part of a related transaction. A disbursement of £49 per individual (or £75 per director for limited company purchases) is payable to cover all aspects of this compliance process. This fee represents the full cost of conducting the required checks and verifications. You will receive a secure payment link and full instructions directly from our compliance partner, Guild365, who carry out these checks on our behalf.
Floorplan
EPC
To discuss this property call our Glastonbury branch:
Market your property
with Holland & Odam
Book a market appraisal for your property today. Our virtual options are still available if you prefer.