Share:
Description
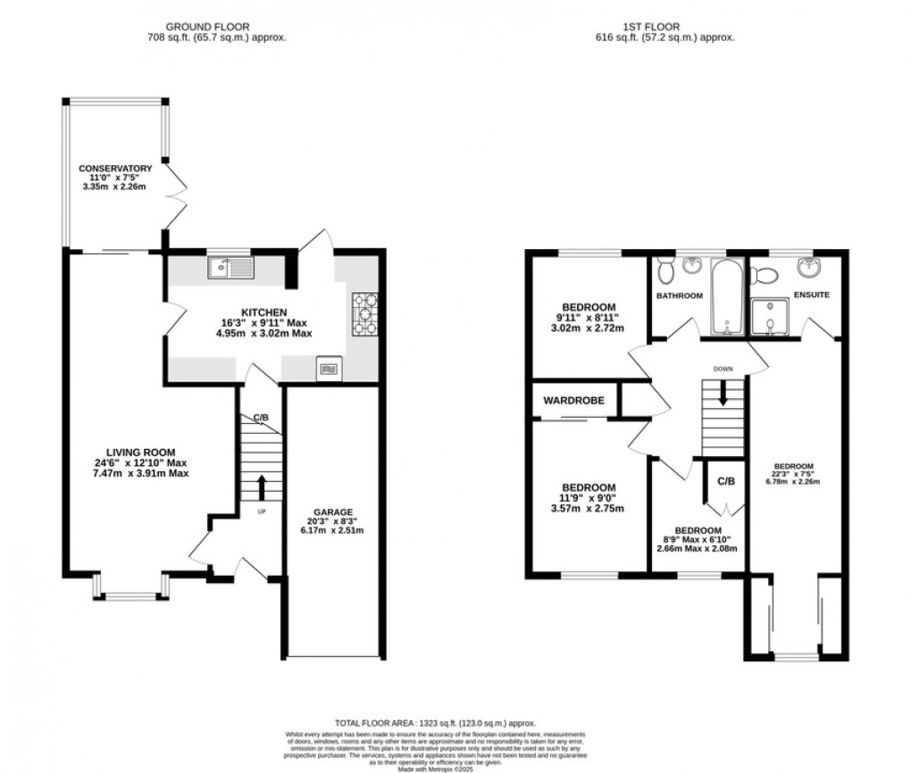
- Enjoying a bright and airy living room, featuring a dual aspect with a bow window to the front and French doors to the rear opening into the conservatory.
- The conservatory provides an additional reception space, enjoying views over the garden with doors giving direct access outside.
- Good size kitchen fitted with a range of wall, base and drawer units, built in oven and hob and space for under counter appliances.
- The first floor features four bedrooms, three of which are spacious doubles, including an en-suite, with two further rooms benefitting from built-in wardrobes.
- Service by the neatly presented family bathroom comprising panelled bath with shower over, wash basin and WC.
- Fully enclosed and designed for low maintenance, with a patio extending from the house and steps leading to a section laid with artificial lawn.
- The conservatory provides an additional reception space, enjoying views over the garden with doors giving direct access outside.
- Benefiting from driveway parking for one vehicle leading up to the garage which has been fitted with up and over door, power and light.
**Location**
Street is a thriving mid Somerset town famous as the home of Millfield School and Clarks Shoes and also popular with shoppers visiting the Clarks Village complex. The town provides primary schooling, Crispin Secondary School, Strode Sixth Form College, Strode Theatre, indoor and open air swimming pools and a choice of pubs and restaurants. The neighbouring town of Glastonbury is an historic centre and provides a further range of shopping facilities. Surrounding centres include Wells 9 miles, Bath 33 miles, Bristol 33 miles, Yeovil 15 miles and Taunton 26 miles distance.
**Directions**
From the High Street proceed passing the Avalon Guns on the left, shortly after which turn left into Stonehill and at the top of the hill turn right. Follow the road and turn left at the roundabout into Brooks Road. Take the next right into Brookfield Way and the first turning on your left into Ambridge Close.
**Material Information**
All available property information can be provided upon request from Holland & Odam. For confirmation of mobile phone and broadband coverage, please visit checker.ofcom.org.uk
Floorplan

EPC

To discuss this property call our Street branch:
Market your property
with Holland & Odam
Book a market appraisal for your property today. Our virtual options are still available if you prefer.