Share:
Description
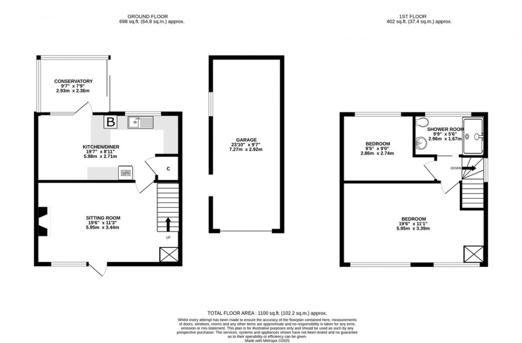
- Enjoying a good-sized, light and bright sitting room with feature fireplace. From here, stairs rise to the first floor with the added convenience of a lift.
- The kitchen/diner is fitted with a range of wall, base and drawer units, with space for appliances. There is ample room for dining furniture, and sliding doors open through to the conservatory.
- Good size conservatory provides additional reception space and offers direct access to the garden.
- Well-proportioned and filled with natural light from dual windows, the principal bedroom was originally two rooms combined into one.
- The second bedroom is a good size, once again filled with natural light and enjoying an outlook over the rear of the property.
- Serviced by a wet room comprising shower, wash basin and WC.
- Enclosed rear garden with fencing and outbuilding, offering excellent potential for landscaping and creating an attractive outdoor space.
- To the front there is driveway parking for multiple vehicles leading up to the garage.
**Location**
Smithfield Road is a popular residential area on the southern side of Street near to attractive countryside including National Trust land, Ivythorn Hill. Street is a busy mid Somerset town famous as the home of Clarks Shoes, Millfield School and more recently Clarks Village shopping centre. Street provides primary, and secondary schooling, Strode Sixth Form College, theatre/cinema and two swimming pools, one of which is indoor. Street also offers an attractive shopping centre with High Street, Clarks Village and on the edge of town a Sainsbury. The historic town of Glastonbury is within 3 miles, the Cathedral City of Wells 9 miles and the nearest M5 motorway interchange at Dunball, Bridgwater is within 14 miles. Bristol, Bath, Taunton and Exeter are each within 28, 27, 20 and 55 miles distant respectively.
**Directions**
From the High Street continue passing Avalon Guns on the left, shortly after which turn left into Stonehill and at the top of the hill, as the road bears left, turn right and continue taking the first exit at the roundabout into Brooks Road. Upon reaching Brookside School turn left into Smithfield Road. Continue along passing the turning for Quarry Road and the the property will be found a short distance after on the left hand side and will be easily identified by our for sale board.
**Purchasers Note**
Please be advised that this property was originally constructed and configured as a purpose build three-bedroom home. Our vendor has reconfigured it to a two-bedroom layout to suit their personal requirements. The property could be reinstated to its original three-bedroom arrangement with relative ease, subject to the necessary works or reinstating one stud wall in the largest first floor room.
**Material Information**
All available property information can be provided upon request from Holland & Odam. For confirmation of mobile phone and broadband coverage, please visit checker.ofcom.org.uk
**Identity Verification**
To ensure full compliance with current legal requirements, all buyers are required to verify their identity and risk status in line with anti-money laundering (AML) regulations before we can formally proceed with the sale. This process includes a series of checks covering identity verification, politically exposed person (PEP) screening, and AML risk assessment for each individual named as a purchaser. In addition, for best practice, we are required to obtain proof of funds and where necessary, to carry out checks on the source of funds being used for the purchase. These checks are mandatory and must be completed regardless of whether the purchase is mortgage-funded, cash, or part of a related transaction. A disbursement of £49 per individual (or £75 per director for limited company purchases) is payable to cover all aspects of this compliance process. This fee represents the full cost of conducting the required checks and verifications. You will receive a secure payment link and full instructions directly from our compliance partner, Guild365, who carry out these checks on our behalf.
Floorplan
EPC
To discuss this property call our Street branch:
Market your property
with Holland & Odam
Book a market appraisal for your property today. Our virtual options are still available if you prefer.