Share:
Description
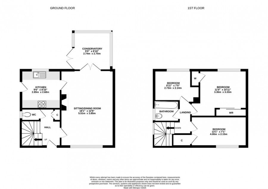
- A generous entrance hall with useful understairs storage, together with a first floor landing providing access to the loft, and a convenient ground floor WC
- Enjoying a good size sitting room with front-facing windows allowing plenty of natural light, featuring a central gas fireplace as the main focal point (Currently not in working order).
- Neatly presented kitchen/diner with a range of wall, base and drawer units, integrated oven and hob, and space for under-counter appliances.
- A spacious dining area with ample room for a family-sized table and chairs, featuring a built-in cupboard and a large window overlooking the rear garden.
- Affording three bedrooms, including two well-proportioned doubles and a further single, all benefiting from built-in cupboard space.
- Serviced by the family shower room, comprising wash basin, shower enclosure and WC.
- The rear garden features a delightful mix of patio, lawn and gravelled area, complemented by a useful storage shed and ample space for outdoor enjoyment, perfect for families or keen gardeners.”
- To the front, the property features off-road parking, with the garden laid to gravel and decorative borders for ease of maintenance, and offers potential to create further parking if desired.
**Location**
Glanvill Road is a well established area on the south side of Street within walking distance of countryside. Street is a thriving mid-Somerset town famous as the home of Clarks Shoes, prestigious Millfield School and popular with shoppers visiting Clarks Village. Street provides good primary and secondary schooling, Strode College, Strode Theatre, indoor and open air swimming pools, Victoria Sports club and a choice of pubs and restaurants. The historic town of Glastonbury is 2 miles and the Cathedral City of Wells 8 miles. M5 Junction 23 12 miles, A303 (Podimore roundabout) 12 miles, Castle Cary Train station (DL London Paddington) 12.5 miles, Historic town of Glastonbury 2.5 miles, City of Wells 9 miles, Bristol 33 miles, Bath 27 miles, Taunton 20 miles, Exeter 57 miles.
**Directions**
From the High Street turn left into Leigh Road at the Library and follow the road until reaching a 'T' junction (Tanyard on the right). Turn right into Middle Leigh and then take the first turning left into Ivythorn Road, continue along into Overleigh. Take the second right into Glanvill Road. Number 20 will be found on the right hand side.
**Construction Type**
This 'Woolaway' non standard construction house type has undergone an approved repair by Mendip District Council, together with the majority of Glanvill Road in the early 1990's. A suitable prefabrication repair certificate (PRC) is available to easily allow mortgage borrowing against this property. Please speak with Holland & Odam should you require more information.
**Material Information**
All available property information can be provided upon request from Holland & Odam. For confirmation of mobile phone and broadband coverage, please visit checker.ofcom.org.uk
**Identity Verification**
To ensure full compliance with current legal requirements, all buyers are required to verify their identity and risk status in line with anti-money laundering (AML) regulations before we can formally proceed with the sale. This process includes a series of checks covering identity verification, politically exposed person (PEP) screening, and AML risk assessment for each individual named as a purchaser. In addition, for best practice, we are required to obtain proof of funds and where necessary, to carry out checks on the source of funds being used for the purchase. These checks are mandatory and must be completed regardless of whether the purchase is mortgage-funded, cash, or part of a related transaction. A disbursement of £49 per individual (or £75 per director for limited company purchases) is payable to cover all aspects of this compliance process. This fee represents the full cost of conducting the required checks and verifications. You will receive a secure payment link and full instructions directly from our compliance partner, Guild365, who carry out these checks on our behalf.
Floorplan
EPC
To discuss this property call our Street branch:
Market your property
with Holland & Odam
Book a market appraisal for your property today. Our virtual options are still available if you prefer.