Share:
Description
- Rare opportunity to design and build a bespoke, self-build
- Approximately 1,959 sq ft
- 4 Bedrooms (two en-suite)
- Large living room and open plan kitchen / dining room
- Good size garden, garage and driveway parking
- Desirable location on Bancombe Road
- Ideal for those seeking to create a long-term family residence
The site itself sits comfortably within an established residential area, and the approved plans allow for a substantial, thoughtfully designed home where craftsmanship and attention to detail can shine.
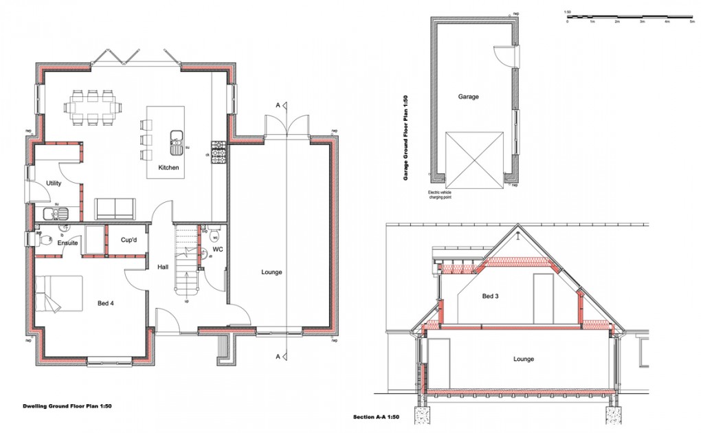
With a flexible and future proof layout, the accommodation is arranged over two floors and comprises a welcoming entrance hall, cloakroom, and spacious dual-aspect lounge. To the rear is an impressive open-plan kitchen and dining room with bi-fold doors to the garden, along with a useful utility room. A ground floor bedroom with en-suite provides flexibility for guests or family. Upstairs, the principal bedroom includes a dressing area and en-suite, with two further double bedrooms and a family bathroom completing the layout. Outside, there is a private garden, detached garage and driveway parking.
**Location**
Somerton is a picturesque, rural town in the heart of Somerset. There are a good level of amenities within this beautiful Market town including some local, independent shops, Art Galleries, antiques, cafes and several public houses enjoying attractive beer gardens and restaurants. Somerton also offers a library, doctor and dentist surgery, opticians, TSB bank, churches and schools within the town. Further amenities can be found on the outskirts of Somerton within Bancombe Business Park including garages, recycling centre and Edgar Hall which holds a number of events for the locals to enjoy. A more comprehensive range of amenities can be found in Yeovil (south) or the County town of Taunton (west). Somerton is well positioned for travel, close to the A303 and M5 with a well linked bus service and mainline railway stations are located in Castle Cary, Yeovil and Taunton with direct links to Waterloo and Paddington.
**Directions**
From The Market Place, Somerton head along West Street and bear right at the fork. At the mini roundabout take the first exit onto Langport Road B3153. Take the last turning on your right before leaving Somerton, onto Cartway Lane. At the mini roundabout, turn right onto Bancombe Road and take the second left onto Drayton Ct. The plot is at the end of the road.
**Additional Information**
Services:
To be connected
Local Authority:
Somerset Council
0300 1232224somerset.gov.uk
Tenure:
Freehold
**Material Information**
All available property information can be provided upon request from Holland & Odam. For confirmation of mobile phone and broadband coverage, please visit checker.ofcom.org.uk
**Identity Verification**
To ensure full compliance with current legal requirements, all buyers are required to verify their identity and risk status in line with anti-money laundering (AML) regulations before we can formally proceed with the sale. This process includes a series of checks covering identity verification, politically exposed person (PEP) screening, and AML risk assessment for each individual named as a purchaser. In addition, for best practice, we are required to obtain proof of funds and where necessary, to carry out checks on the source of funds being used for the purchase. These checks are mandatory and must be completed regardless of whether the purchase is mortgage-funded, cash, or part of a related transaction. A disbursement of £49 per individual (or £75 per director for limited company purchases) is payable to cover all aspects of this compliance process. This fee represents the full cost of conducting the required checks and verifications. You will receive a secure payment link and full instructions directly from our compliance partner, Guild365, who carry out these checks on our behalf.
Floorplan
To discuss this property call our Somerton branch:
Market your property
with Holland & Odam
Book a market appraisal for your property today. Our virtual options are still available if you prefer.