Share:
Description
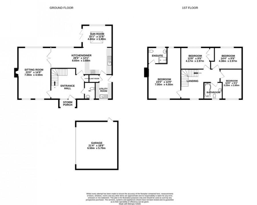
- This spectacular brand new Somerset farmhouse covers in excess of 2785 sqft of flexible accommodation, absolutely perfect for those growing families who desire space and versatility in a home
- Exceptionally finished bespoke fitted kitchen with matching utility/boot room, appointed with solid work surfaces and branded integrated appliances for those seeking a little luxury
- Boasting spacious reception space throughout the ground floor including a generous living room and open plan kitchen/diner with direct access onto the garden
- Four generously proportioned bedrooms are each complimented by a beautifully designed en-suite bathroom, giving everyone the luxury of their own suite
- Far reaching unobstructed views from an elevated position across open countryside towards the Mendip Hills and extraordinary sunsets to the West
- Beautifully landscaped gardens, together with ample off road parking behind a curved natural stone wall boundary on the lead up to a substantial 35square metre double garage
- Superbly designed and built for 21st century living, benefitting from air sourced heating, Ultrafast broadband availability and electric car charging points
- Exclusive development of only three new individual detached homes, set on the very outskirts of the village just a mere 10-minute drive to Millfield school and 12 minutes from M5 Junction 23
- Enjoy complete peace of mind with a comprehensive 10-year build warranty and two year builders defect guarantee
- Computer Generated Images give a photo realistic interpretation of the final built house. These are subject to small material and design changes
**Accommodation**
Corner Farm is bursting with gorgeous features and has been tastefully appointed to provide the perfect lifestyle choice for families, professionals and active retired buyers alike.
The main house comprises a statement living/dining/kitchen space that spans the rear elevation of the house and and affords a direct outlook over the garden. Warmed by underfloor heating throughout the entire ground floor and giving direct access onto the patio terrace and garden, this heart of the home room is a relaxed space that draws everyone together. Keen cooks will be impressed by the vast worktop space, focal centre island and premium integrated appliances. A bespoke utility and laundry room is fitted to match and gives through access to the integral double garage. The theme of space continues as a generous reception hallway with ample storage links seamlessly to the cloakroom and particularly well proportioned main living room, dual aspect with outlook to the side of the home and a particularly pleasant outlook over the garden to the rear.
To the first floor there are four generously proportioned double bedrooms, each complemented by beautifully designed bathrooms. The principal bedroom suite is thoughtfully designed providing a dressing area space and takes in the best of the views to the side and rear. All other bedrooms enjoy either an outlook towards a beautiful Victorian farm and its distinctive stone outbuildings to the front, or unrivalled far reaching views across open countryside towards the Mendip Hill range at the rear. Corner Farm occupies an enviable position within this development, also boasting an uninterrupted outlook to the West, taking in some of the best sunsets throughout the Summer and Autumn months.
The integral double garage is substantial (35sq metres) and has been designed with internal access to the house via the utility and boot room. The garage is complete with remote controlled roller door, power and lighting.
**Outside**
Not only does Corner Farm occupy an enviable position within the village, but its outlook cannot be understated. The approach is via a quiet country lane, ensuring passing traffic is minimal and turning beyond a natural stone walled entrance onto a gravelled driveway beyond. A generous depth and full width patio stretches the rear elevation of the house, laid with attractive Indian Sandstone to provide a farmhouse terrace that is genuinely capable of seating the whole family! It makes for a wonderful private spot to enjoy a barbecue and immediately steps onto a vast lawned garden, enclosed on all sides and a newly planted laurel hedgerow lining the northern boundary. The garden will be shortly planted with shrubs and hedging to ensure that in years to come, it will be a delight to behold.
**Location**
Shapwick is a highly regarded Somerset village set in an elevated position mid-way along the Polden Hills, overlooking the open landscapes of the Somerset Levels. A peaceful rural environment underpinned by a strong and active community. The village is particularly well known for its attractive period homes, historic church and welcoming village hall all contributing to its established and well-balanced character.
At the heart of village life is the well-regarded independent Dovecote School, making Shapwick especially appealing to families seeking a supportive and close-knit setting. The village café provides a popular social hub for residents and visitors alike, while the cricket pavilion and adjoining playing fields are a focal point for local sport, events and summer gatherings, reinforcing the village’s strong community spirit. Shapwick is surrounded by countryside and nature reserves, including nearby Shapwick Heath. The village offers excellent opportunities for walking, cycling and wildlife watching. Despite its rural setting, Shapwick is conveniently positioned for access to Street, Glastonbury and Bridgwater, where a wider range of shops, cafés, leisure facilities and secondary schooling can be found.
Transport links are also well placed, with the A39 and M5 motorway at Junction 23 within easy reach, providing straightforward connections to Bristol, Taunton and Exeter. Rail services from Bridgwater and Castle Cary offer mainline routes to London Paddington.
Shapwick offers an appealing blend of countryside living, community-focused amenities and strong connectivity, making it a consistently popular choice for those seeking village life without isolation.
**Directions**
From Street, take the A39 towards Bridgwater. After a short distance, take the turning signposted for Shapwick and follow the road into the village. Continue through Shapwick and turn left into Blacksmiths Lane, where the property will be found along the lane.
**CGI**
Computer Generated Images give a photo realistic interpretation of the final built house. These are subject to small material and design changes and some alterations to design may also be made subject to planning permission and consents.
**Material Information**
All available property information can be provided upon request from Holland & Odam. For confirmation of mobile phone and broadband coverage, please visit checker.ofcom.org.uk
**Identity Verification**
To ensure full compliance with current legal requirements, all buyers are required to verify their identity and risk status in line with anti-money laundering (AML) regulations before we can formally proceed with the sale. This process includes a series of checks covering identity verification, politically exposed person (PEP) screening, and AML risk assessment for each individual named as a purchaser. In addition, for best practice, we are required to obtain proof of funds and where necessary, to carry out checks on the source of funds being used for the purchase. These checks are mandatory and must be completed regardless of whether the purchase is mortgage-funded, cash, or part of a related transaction. A disbursement of £49 per individual (or £75 per director for limited company purchases) is payable to cover all aspects of this compliance process. This fee represents the full cost of conducting the required checks and verifications. You will receive a secure payment link and full instructions directly from our compliance partner, Guild365, who carry out these checks on our behalf.
Floorplan
To discuss this property call our Street branch:
Market your property
with Holland & Odam
Book a market appraisal for your property today. Our virtual options are still available if you prefer.