Share:
Description
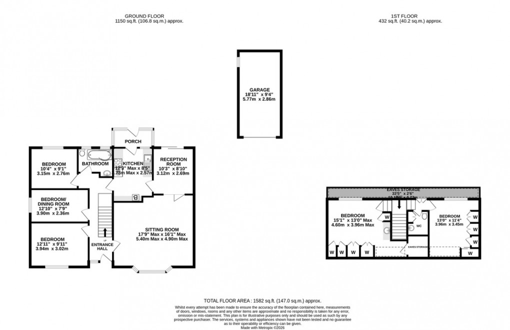
- Enjoying a spacious, dual-aspect sitting room filled with natural light, featuring a charming bay window seat and an inset feature fireplace, creating a bright and welcoming living space.
- An additional reception room, ideal as a breakfast or dining room, with sliding doors opening directly onto the rear garden.
- Neatly presented kitchen featuring a range of wall, base and drawer units, integrated oven and hob, with space for under counter appliances. Here a door leads out to the rear porch.
- A good-sized dining room ideal for formal meals, offering flexibility to be used as a ground-floor bedroom or study if required.
- Affording four bedrooms arranged over two levels; three of which would be considered good size doubles with ample room for freestanding furniture.
- The property is serviced by the family bathroom comprising a bath with shower over, wash basin , wc and heated towel rail. Upstairs there is also a useful WC with airing cupboard.
- Boasting a desirable south-facing rear garden with a large lawn, patio area and mature shrub-filled borders, complemented by a useful garden shed for storage.
- The front is retained behind a natural stone wall with decorative borders and lawn, offering ample driveway parking leading to a garage with up-and-over door, power and light.
**Location**
Chilton Polden is a popular village situated on the Polden Hills which is conveniently located for access to the M5 J23 at Dunball, some five miles distance. The neighbouring village offers local amenities including, Village Hall, Doctors surgery and Post Office/shop at Gwilliams Store. There is an excellent primary school in the neighbouring village Catcott along with two further pubs. More comprehensive facilities can be found in Bridgwater to the West and Street to the East. The thriving centre of Street is approximately 7 miles and offers facilities including Strode Theatre, Strode College, both indoor and open air swimming pools and a wide range of shops including Clarks Village - complex of factory shopping outlets. The major centres of Bristol, Taunton and Exeter are each within driving distance.
**Directions**
From Street proceed on the A39 towards Bridgwater passing through the villages of Walton and Ashcott. After approximately seven miles take a sharp right hand turn into Priory road and continue down the hill entering the village. Turn onto Townsend Lane on your right. The property will be found on the right hand side and will be easily identified by our For Sale Board.
**Material Information**
**Identity Verification**
To ensure full compliance with current legal requirements, all buyers are required to verify their identity and risk status in line with anti-money laundering (AML) regulations before we can formally proceed with the sale. This process includes a series of checks covering identity verification, politically exposed person (PEP) screening, and AML risk assessment for each individual named as a purchaser. In addition, for best practice, we are required to obtain proof of funds and where necessary, to carry out checks on the source of funds being used for the purchase. These checks are mandatory and must be completed regardless of whether the purchase is mortgage-funded, cash, or part of a related transaction. A disbursement of £49 per individual (or £75 per director for limited company purchases) is payable to cover all aspects of this compliance process. This fee represents the full cost of conducting the required checks and verifications. You will receive a secure payment link and full instructions directly from our compliance partner, Guild365, who carry out these checks on our behalf.
Floorplan
EPC
To discuss this property call our Street branch:
Market your property
with Holland & Odam
Book a market appraisal for your property today. Our virtual options are still available if you prefer.