Share:
Description
- Brand new four-bedroom detached home, due for completion July 2026
- 10 year ICW Warranty
- Occupying a generous corner plot in the heart of Charlton Adam, near Somerton
- 1710 sq ft of accommodation (to be confirmed)
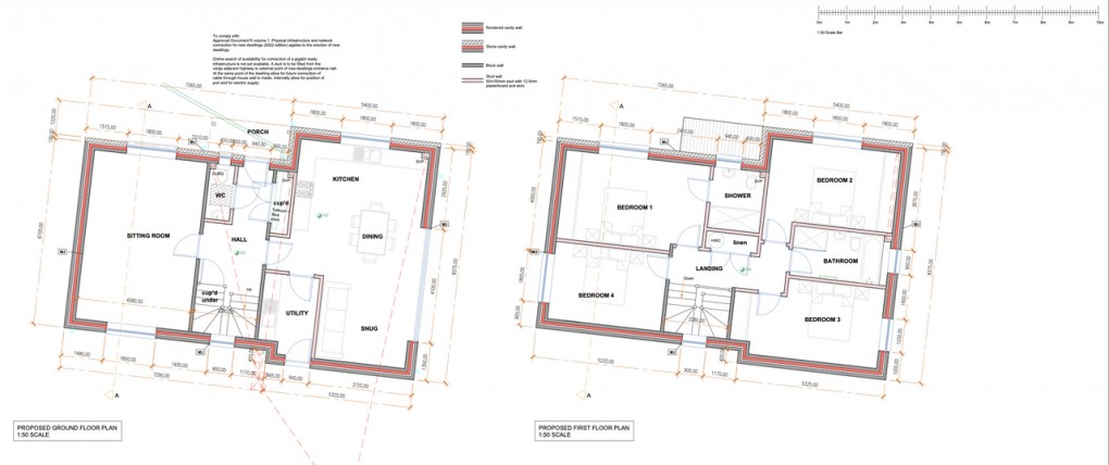
- Spacious double-aspect sitting room and impressive open-plan kitchen/dining/snug with bi-fold doors
- Separate utility room and ground floor cloakroom/WC
- Master bedroom with en-suite plus three further double bedrooms and family bathroom
- Ample driveway parking for three vehicles and detached garage
- Electric vehicle charging point and attractive natural stone front elevation
Designed with both character and modern living in mind, the property will feature a traditional build with an attractive natural stone front elevation, complemented by rendered rear, east and west elevations, blending seamlessly with its village surroundings while offering contemporary performance and efficiency.
Internally, the accommodation is expected to extend to 1710 sq ft and has been thoughtfully arranged to suit modern family living. The ground floor offers a large and welcoming entrance hall, cloakroom/WC, and a spacious double-aspect sitting room. To the rear of the property is an impressive open-plan kitchen, dining and snug area, designed as the heart of the home and benefitting from bi-folding doors opening onto the rear garden, ideal for both everyday living and entertaining. A separate utility room completes the ground floor accommodation.
The first floor provides a central landing with linen storage, a generous master bedroom with en-suite shower room, and three further double bedrooms, all serviced by a well-proportioned family bathroom.
Externally, the property enjoys the advantages of a large corner plot, with an ample driveway providing three comfortable parking spaces, a detached garage, and an electric vehicle charging point, ensuring the home is both practical and future-ready.
**Location**
Charlton Adam an attractive and traditionally social village with a public house, village hall and church. The village sits in some attractive countryside a short motoring distance to the north of the A303 with Castle Cary lying to the northeast, the historic Abbey town of Sherborne and the local regional centre of Yeovil to the south and the Somerset town of Somerton to the west. Sporting, walking, and riding opportunities abound within the area with golf clubs at Wheathill, Long Sutton and Sherborne while the region is well known for both its public and privately funded schooling. Adjoining village Charlton Mackrell has its own Church of England Primary School. Communication links are good with main line stations at Castle Cary and Sherborne linking directly with London Paddington and London Waterloo respectively while road links are along the A303 joined at Podimore giving swift access to London and the Home Counties along the M3, M25 route.
**Directions**
From Somerton Market Place follow Broad Street into North Street and turn right at the mini roundabout and at the T junction turn right onto B3151. Take the first right onto B3153 and follow the road under the railway bridge and continue up the hill. Take the next right onto Kingweston Road and follow the road into Charlton Mackrell. Take the second left onto Station Road and continue under the railway bridge. At the junction, turn left and follow the road into Charlton Adam. Continue around the next couple of tight bends and the property can be found shortly on your right hand side.
**Material Information**
All available property information can be provided upon request from Holland & Odam. For confirmation of mobile phone and broadband coverage, please visit checker.ofcom.org.uk
**Identity Verification**
To ensure full compliance with current legal requirements, all buyers are required to verify their identity and risk status in line with anti-money laundering (AML) regulations before we can formally proceed with the sale. This process includes a series of checks covering identity verification, politically exposed person (PEP) screening, and AML risk assessment for each individual named as a purchaser. In addition, for best practice, we are required to obtain proof of funds and where necessary, to carry out checks on the source of funds being used for the purchase. These checks are mandatory and must be completed regardless of whether the purchase is mortgage-funded, cash, or part of a related transaction. A disbursement of £49 per individual (or £75 per director for limited company purchases) is payable to cover all aspects of this compliance process. This fee represents the full cost of conducting the required checks and verifications. You will receive a secure payment link and full instructions directly from our compliance partner, Guild365, who carry out these checks on our behalf.
Floorplan
To discuss this property call our Somerton branch:
Market your property
with Holland & Odam
Book a market appraisal for your property today. Our virtual options are still available if you prefer.