Share:
Description
- Situated on one of Somerton's favoured developments, due to being easy and flat walking distance to the towns amenities
- The front of the property is south facing and is currently laid to shingle
- A small addition porch has been added over the years to provide a convenient area to remove your shoes before entering the property
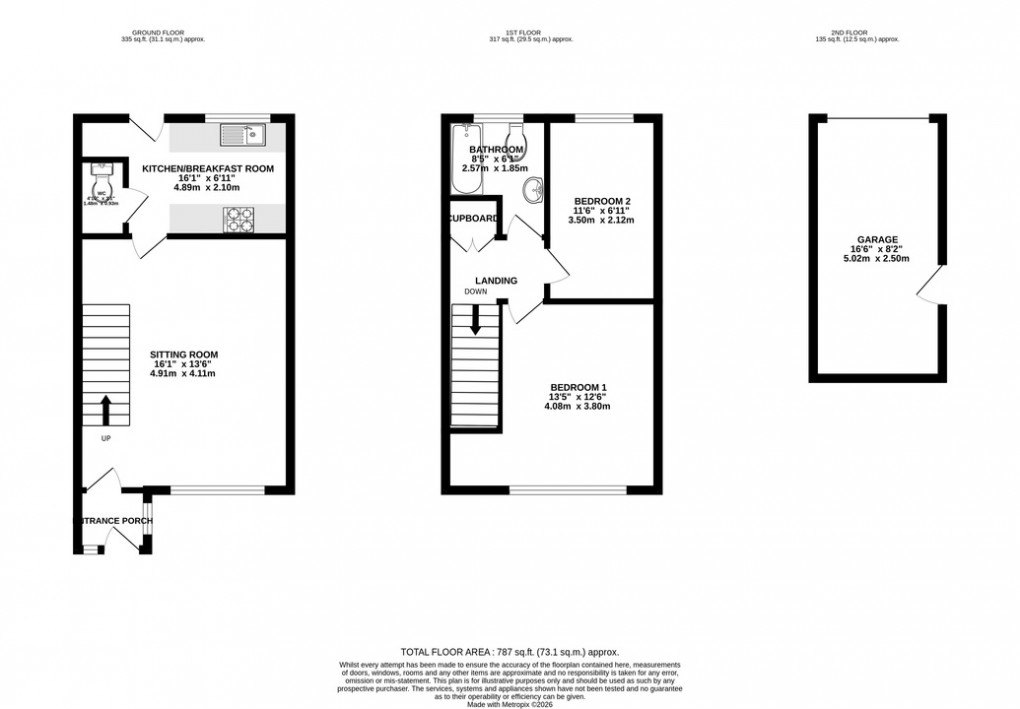
- The living room is bright with open staircase rising to the first floor accommodation.
- The kitchen is well designed to utilise the space
- The first floor accommodation comprises of two bedrooms, and a family bathroom
- Enclosed rear garden with patio area and gate to the rear parking area and garage access via pedestrian and up & over door
The accommodation comprises an entrance porch, comfortable living room, downstairs WC and a kitchen to the ground floor, with two bedrooms and a bathroom on the first floor.
Further benefits include gas central heating, uPVC double glazing and generously sized front and rear gardens, providing excellent outdoor space.
**Location**
Somerton is a picturesque, rural town in the heart of Somerset. There are a good level of amenities within this beautiful Market town including some local, independent shops, Art Galleries, antiques, cafes and several public houses enjoying attractive beer gardens and restaurants. Somerton also offers a library, doctor and dentist surgery, opticians, TSB bank, churches and schools within the town. Further amenities can be found on the outskirts of Somerton within Bancombe Business Park including garages, recycling centre and Edgar Hall which holds a number of events for the locals to enjoy. A more comprehensive range of amenities can be found in Yeovil (south) or the County town of Taunton (west). Somerton is well positioned for travel, close to the A303 and M5 with a well linked bus service and mainline railway stations are located in Castle Cary, Yeovil and Taunton with direct links to Waterloo and Paddington.
**Directions**
From the Market Place, Somerton follow Broad Street into North Street and at the mini roundabout turn left onto Behind Berry (B3513). Take the first right into Pinewood and follow the road, taking the third left into Laburnam Drive. Halfway along there is a large layby on your left hand side. Park here and follow the pedestrian path and the property can be shortly found on your left hand side. Please note this is not the official parking for the property, however the best for viewing purposes.
**Material Information**
All available property information can be provided upon request from Holland & Odam. For confirmation of mobile phone and broadband coverage, please visit checker.ofcom.org.uk
**Identity Verification**
To ensure full compliance with current legal requirements, all buyers are required to verify their identity and risk status in line with anti-money laundering (AML) regulations before we can formally proceed with the sale. This process includes a series of checks covering identity verification, politically exposed person (PEP) screening, and AML risk assessment for each individual named as a purchaser. In addition, for best practice, we are required to obtain proof of funds and where necessary, to carry out checks on the source of funds being used for the purchase. These checks are mandatory and must be completed regardless of whether the purchase is mortgage-funded, cash, or part of a related transaction. A disbursement of £49 per individual (or £75 per director for limited company purchases) is payable to cover all aspects of this compliance process. This fee represents the full cost of conducting the required checks and verifications. You will receive a secure payment link and full instructions directly from our compliance partner, Guild365, who carry out these checks on our behalf.
Floorplan
EPC
To discuss this property call our Somerton branch:
Market your property
with Holland & Odam
Book a market appraisal for your property today. Our virtual options are still available if you prefer.