Share:
Description
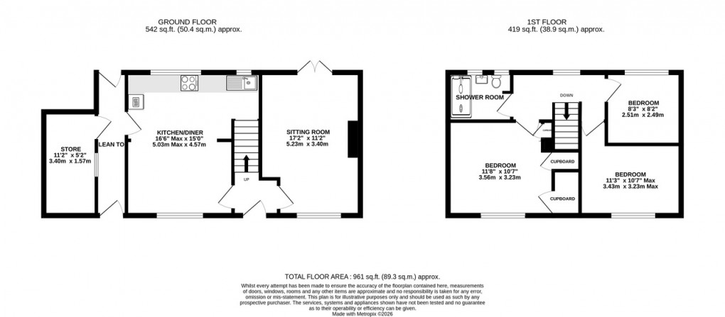
- Generous dual-aspect sitting room featuring a fireplace as a focal point, with French doors providing direct access to the rear garden.
- Stylish modern kitchen/diner fitted with high-gloss wall, base and drawer units, integrated oven and hob, dishwasher and fridge.
- The Light and airy kitchen/diner is of an excellent size, offering ample space for a family dining table and chairs, with access to a covered passageway.
- Affording three bedrooms, including two generously sized doubles, with the principal bedroom benefiting from built-in wardrobe and cupboard space.
- Beautifully presented family shower room featuring a large walk-in shower, wash basin, WC and heated towel rail.
- Covered passageway offering front-to-rear access, with a workshop fitted with wall and base units and plumbing for laundry facilities.
- Private, south-facing rear garden, thoughtfully landscaped for low maintenance, featuring a large patio, areas of lawn, decorative planters with mature shrubs, and a useful garden shed for storage.
- Ample gravelled driveway parking for multiple vehicles, with a mature hedgerow offering a sense of privacy.
**Location**
Portland Road is located on the north western edge of Street adjacent to countryside. Street is a popular mid Somerset town with an attractive choice of shops in the Clarks Village Complex. Street also provides a theatre, health centre, indoor and open air pools, college, primary and secondary schools and a choice of pubs and restaurants. The historic town of Glastonbury is 2 miles, the Cathedral City of Wells 8 miles and the nearest M5 motorway interchange, Junction 23, is 12 miles. Bristol, Bath, Taunton and Yeovil are each within commuting distance.
**Directions**
Proceed along the A39 Street bypass towards the neighbouring village of Walton. Pass through three sets of traffic lights and take a right turn into Houndwood Drove, just before the roundabout and Sainsbury's. Continue along Houndwood Drove following the road around to the left, and proceed until you reach Portland Road. Follow the road for a short distance, passing the turning for woods road and the property will be found on the right hand side easily identified by our for sale board.
**Material Information**
**Identity Verification**
To ensure full compliance with current legal requirements, all buyers are required to verify their identity and risk status in line with anti-money laundering (AML) regulations before we can formally proceed with the sale. This process includes a series of checks covering identity verification, politically exposed person (PEP) screening, and AML risk assessment for each individual named as a purchaser. In addition, for best practice, we are required to obtain proof of funds and where necessary, to carry out checks on the source of funds being used for the purchase. These checks are mandatory and must be completed regardless of whether the purchase is mortgage-funded, cash, or part of a related transaction. A disbursement of £49 per individual (or £75 per director for limited company purchases) is payable to cover all aspects of this compliance process. This fee represents the full cost of conducting the required checks and verifications. You will receive a secure payment link and full instructions directly from our compliance partner, Guild365, who carry out these checks on our behalf.
Floorplan
EPC
To discuss this property call our Street branch:
Market your property
with Holland & Odam
Book a market appraisal for your property today. Our virtual options are still available if you prefer.