Share:
Description
- Located in a desirable retirement development just off the town centre, offering convenience and a peaceful setting.
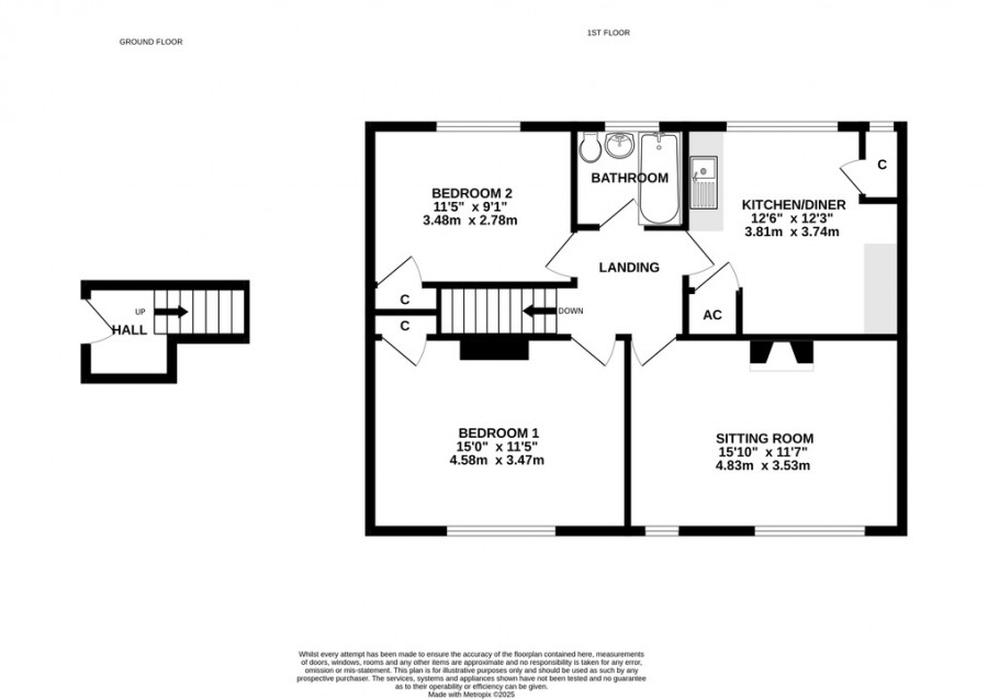
- Two-bedroom semi-detached home with no onward chain, ideal for down sizing or those seeking a quiet, manageable property.
- Spacious sitting/dining room with patio doors opening to a terrace and well-kept communal gardens.
- Kitchen with wall and base units, space for electric cooker, washing machine, and fridge, with a window to the front.
- Two first-floor bedrooms, both with built-in wardrobes; the main bedroom enjoys garden views and additional storage.
- Modern bathroom with panelled bath and mixer shower, wash basin, and WC; ground floor cloakroom adds convenience.
- End-of-cul-de-sac position with front porch, storage, gated side access, and access to lovely shared gardens.
**Location**
Heritage Court is a purpose built complex for the over 55s located in the centre of Glastonbury within easy walking distance of all amenities. Renowned for historic and mythical associations with the famous Tor and Abbey Ruins, Glastonbury is 6 miles from the Cathedral City of Wells and some 2 miles from Street which has more comprehensive facilities including Strode Theatre and the complex of shopping outlets in Clarks Village.
**Directions**
On entering Glastonbury from Street/Bridgwater (A39) at the Wirral Park roundabout (B & Q on the left) take the third exit into Street Road. Continue, passing Morrisons Supermarket on the left, and at the mini-roundabout turn left into Magdalene Street. After approximately 150 metres the entrance to Heritage Court will be found on the left opposite the car park for the Abbey Ruins. Continue to the end of the road where the property can be found on the left hand side.
**Material Information**
All available property information can be provided upon request from Holland & Odam. For confirmation of mobile phone and broadband coverage, please visit checker.ofcom.org.uk
**Identity Verification**
To ensure full compliance with current legal requirements, all buyers are required to verify their identity and risk status in line with anti-money laundering (AML) regulations before we can formally proceed with the sale. This process includes a series of checks covering identity verification, politically exposed person (PEP) screening, and AML risk assessment for each individual named as a purchaser. In addition, for best practice, we are required to obtain proof of funds and where necessary, to carry out checks on the source of funds being used for the purchase. These checks are mandatory and must be completed regardless of whether the purchase is mortgage-funded, cash, or part of a related transaction. A disbursement of £49 per individual (or £75 per director for limited company purchases) is payable to cover all aspects of this compliance process. This fee represents the full cost of conducting the required checks and verifications. You will receive a secure payment link and full instructions directly from our compliance partner, Guild365, who carry out these checks on our behalf.
Floorplan
To discuss this property call our Glastonbury branch:
Market your property
with Holland & Odam
Book a market appraisal for your property today. Our virtual options are still available if you prefer.