Share:
Description
- Attractive natural stone detached family home in a sought-after village setting
- Designed in a traditional barn style with striking stone elevations
- Full roof replacement to the principal dwelling completed February 2026
- Well-proportioned accommodation including two reception rooms
- Spacious kitchen/breakfast room overlooking the garden
- Four generous bedrooms including principal suite with en-suite shower room
- Established stone-walled rear gardens offering privacy and enclosure
- Substantial driveway providing ample off-road parking
- Double garage and generous plot size ideal for family living
Constructed in the 1980s and thoughtfully designed in a traditional barn style, Mountsandel Lodge combines timeless character with well-proportioned family accommodation. The striking local stone elevations and hipped roofline create an impressive first impression, while the interior offers light-filled and versatile living space.
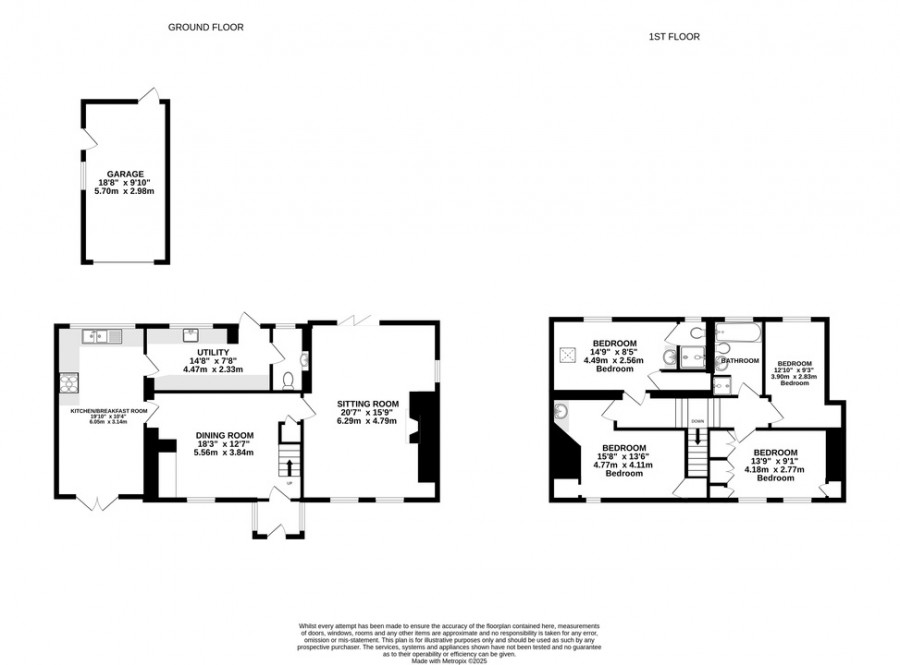
The ground floor is arranged around a welcoming entrance hall, leading to a comfortable sitting room and a separate dining room, ideal for both everyday family life and entertaining. The kitchen/breakfast room provides ample space for informal dining and enjoys views over the garden.
To the first floor, four well-sized bedrooms are served by a family bathroom, with the principal bedroom benefiting from its own en-suite shower room.
Externally, the property occupies a generous plot. A substantial driveway to the front provides ample off road parking and access to the double garage. To the rear, attractive stone-walled gardens offer a private and enclosed outdoor space, ideal for families and summer entertaining.
A wonderful opportunity to acquire a substantial village home with space, character and excellent practicality.
**Location**
Kingsdon is a small historic village nestled in the undulating hills of South Somerset, with far reaching views to the east and south. The village lies half-way between the Roman settlement of Ilchester and the market town of Somerton and retains it old-world charm. There is no through traffic and a wealth of historic cottages and elegant houses of individual character line the quiet streets. Many of the old (and some of the new) houses have been built using blue lias stone quarried from within the village. Kingsdon offers an array of amenities including a community run shop, located in the former school dwelling, 13th Century church, family run thatched pub Kingsdon Inn, village hall and allotments, children's playground and plenty of public footpaths enjoyed by keen hikers and dog owners. The village is home to a varity of clubs and sociaties and holds an annual summer festival for villagers and locals to enjoy on the green. Kingsdon is neighbour to National Trust owned 'Lytes Cary Manor' and well positioned for travel, being close to the A303 and M5 with a well linked bus service and mainline railway stations are located in Castle Cary, Yeovil and Taunton with direct links to Waterloo and Paddington.
**Directions**
From the Market Place in Somerton, head north east towards Broad Street. At the roundabout, take the second exit onto Horse Mill Lane and then turn right onto B3151. Continue on B3151 for 1.8 miles and then turn left onto Kingsdon Hill. Turn left at the bottom onto North Town and keep right at the triangle. Continue straight over the crossroad and the property can be found shortly on your right hand side
**Material Information**
All available property information can be provided upon request from Holland & Odam. For confirmation of mobile phone and broadband coverage, please visit checker.ofcom.org.uk
**Identity Verification**
To ensure full compliance with current legal requirements, all buyers are required to verify their identity and risk status in line with anti-money laundering (AML) regulations before we can formally proceed with the sale. This process includes a series of checks covering identity verification, politically exposed person (PEP) screening, and AML risk assessment for each individual named as a purchaser. In addition, for best practice, we are required to obtain proof of funds and where necessary, to carry out checks on the source of funds being used for the purchase. These checks are mandatory and must be completed regardless of whether the purchase is mortgage-funded, cash, or part of a related transaction. A disbursement of £49 per individual (or £75 per director for limited company purchases) is payable to cover all aspects of this compliance process. This fee represents the full cost of conducting the required checks and verifications. You will receive a secure payment link and full instructions directly from our compliance partner, Guild365, who carry out these checks on our behalf.
Floorplan
To discuss this property call our Somerton branch:
Market your property
with Holland & Odam
Book a market appraisal for your property today. Our virtual options are still available if you prefer.