Share:
Description
- Updated ground floor retirement apartment forming part of Chalice House, a small development of similar properties, conveniently positioned for local amenities
- Recently redecorated throughout with new internal doors and updated electric heating, providing a clean and ready to move into home
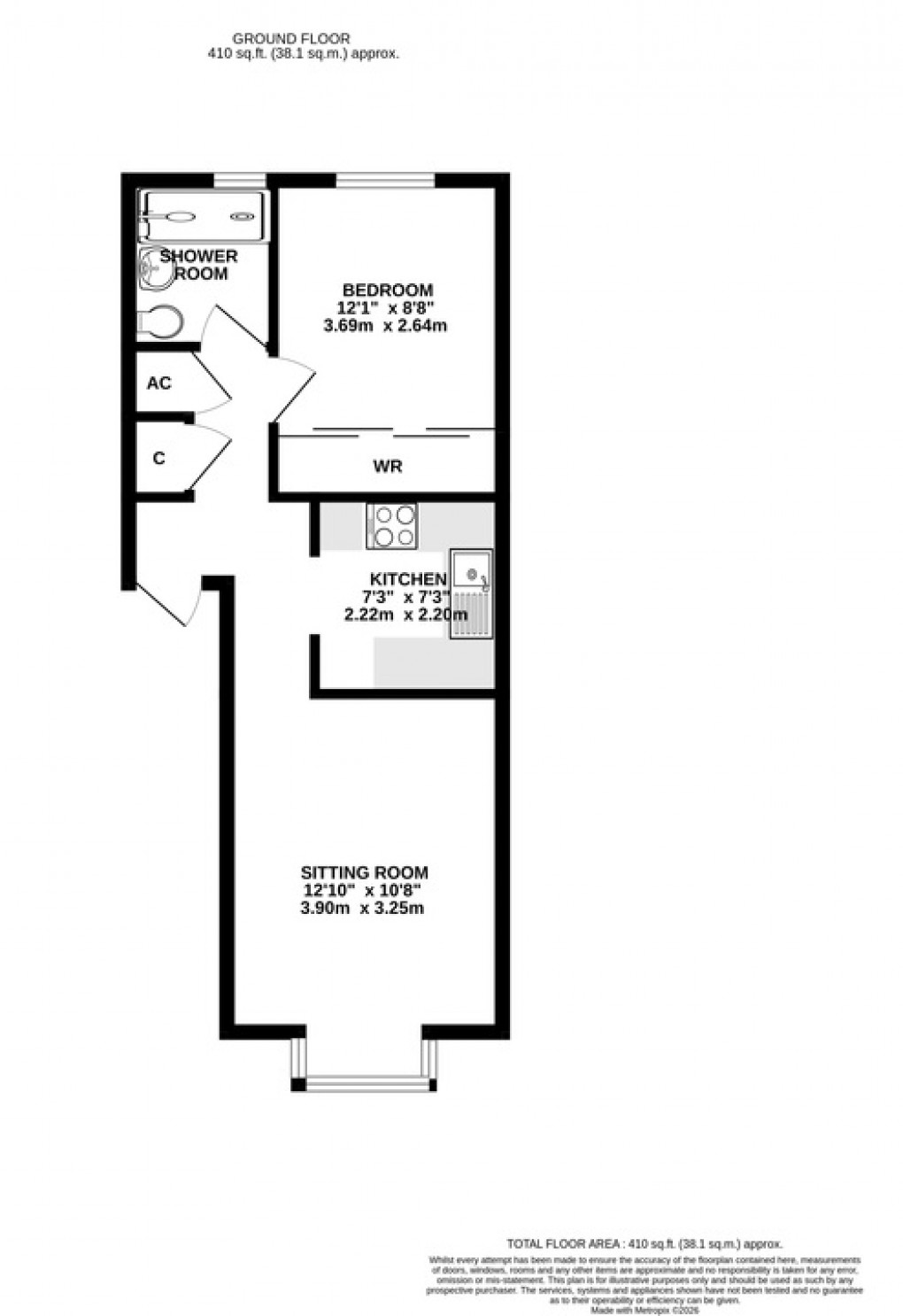
- Sitting room with front facing window and opening through to the kitchen, creating a practical and easy flowing living space
- Kitchen fitted with a range of wall and base units with work surfaces, space for appliances and plumbing for a washing machine
- Double bedroom with built in wardrobe and rear facing window, offering a comfortable and well proportioned sleeping area
- Newly fitted wet room style shower suite comprising walk in shower, wash hand basin and WC, designed for ease of use and modern living
- Communal courtyard to the rear providing shared parking for residents within this established retirement development
**Location**
Within walking distance of the High Street with its excellent range of shopping outlets including Clarks Village. Street also offers a comprehensive range of sporting and recreational facilities including both indoor and open air swimming pools, football, tennis, cricket and Strode Theatre. Millfield School is on the town outskirts whilst the Preparatory School at Edgarley, Glastonbury is some 3 miles. The Cathedral City of Wells is 8 miles whilst the nearest M5 motorway interchange at Dunball (Junction 23) is 12 miles. Bristol, Bath, Taunton and Yeovil are all within commuting distance
**Directions**
From the High Street proceed in a westerly direction passing the Bayliss Centre on the left shortly after which take the second left turing into Goswell Road. At the top of the road bear left into Silver Road where the property will be found on the left hand side.
**Material Information**
**Identity Verification**
To ensure full compliance with current legal requirements, all buyers are required to verify their identity and risk status in line with anti-money laundering (AML) regulations before we can formally proceed with the sale. This process includes a series of checks covering identity verification, politically exposed person (PEP) screening, and AML risk assessment for each individual named as a purchaser. In addition, for best practice, we are required to obtain proof of funds and where necessary, to carry out checks on the source of funds being used for the purchase. These checks are mandatory and must be completed regardless of whether the purchase is mortgage-funded, cash, or part of a related transaction. A disbursement of £49 per individual (or £75 per director for limited company purchases) is payable to cover all aspects of this compliance process. This fee represents the full cost of conducting the required checks and verifications. You will receive a secure payment link and full instructions directly from our compliance partner, Guild365, who carry out these checks on our behalf.
Floorplan
EPC
To discuss this property call our Street branch:
Market your property
with Holland & Odam
Book a market appraisal for your property today. Our virtual options are still available if you prefer.