Share:
Description
- Well presented second floor apartment positioned within easy reach of Street High Street and a wide range of local shops, cafés and amenities.
- Offered for sale with no onward chain, making it an ideal first time purchase or straightforward buy to let investment opportunity.
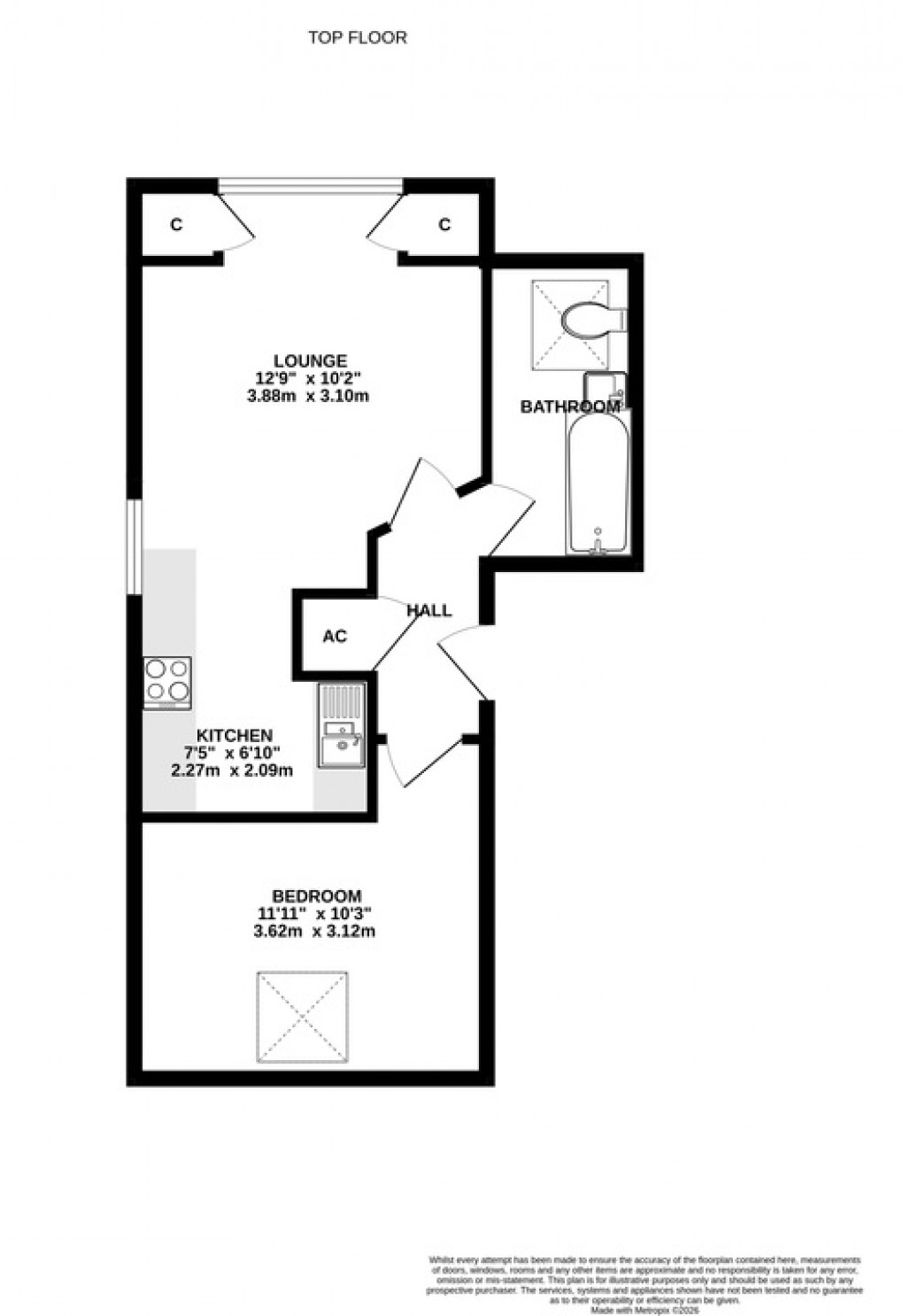
- Bright living room with front facing window, electric heater and opening through to the kitchen area.
- Modern fitted kitchen with a range of wall and base units, integrated oven and hob, together with space and plumbing for a washing machine.
- Double bedroom positioned to the rear of the property enjoying elevated views across Street town.
- Bathroom fitted with a panelled bath with electric shower over, pedestal wash hand basin and close coupled WC.
- Communal parking area to the rear of the building along with shared lawned grounds for residents to enjoy.
**Location**
Vestry Road enjoys a town centre location and links the High Street with Leigh Road. The town centre and Clarks Village are within walking distance and provide an excellent choice of shopping facilities. Street provides Crispin Comprehensive School and Strode College located on the eastern edge with Hindhayes Infants School just around the corner in Leigh Road. Other facilities include Strode Theatre, indoor and open air swimming pools, the Victoria Sports Club and a choice of pubs and eating places.
**Directions**
From the High Street turn into Leigh Road and continue a short distance turning first right into Vestry Road. Milthorne House is found near the end on your right hand side. Continue through the archway where visitor parking is available at the rear.
**Material Information**
All available property information can be provided upon request from Holland & Odam. For confirmation of mobile phone and broadband coverage, please visit checker.ofcom.org.uk
**Identity Verification**
To ensure full compliance with current legal requirements, all buyers are required to verify their identity and risk status in line with anti-money laundering (AML) regulations before we can formally proceed with the sale. This process includes a series of checks covering identity verification, politically exposed person (PEP) screening, and AML risk assessment for each individual named as a purchaser. In addition, for best practice, we are required to obtain proof of funds and where necessary, to carry out checks on the source of funds being used for the purchase. These checks are mandatory and must be completed regardless of whether the purchase is mortgage-funded, cash, or part of a related transaction. A disbursement of £49 per individual (or £75 per director for limited company purchases) is payable to cover all aspects of this compliance process. This fee represents the full cost of conducting the required checks and verifications. You will receive a secure payment link and full instructions directly from our compliance partner, Guild365, who carry out these checks on our behalf.
Floorplan
EPC
To discuss this property call our Street branch:
Market your property
with Holland & Odam
Book a market appraisal for your property today. Our virtual options are still available if you prefer.