Share:
Description
- Beautifully presented accommodation throughout, much improved by our vendors
- Set in a desirable cul-de-sac position within this well regarded mid-Somerset village
- Attractive outlook with far reaching views towards the Mendip Hills beyond rooftops
- Ample off road driveway parking and single integral garage with power and lighting
- Comfortable open-plan ground floor accommodation perfect for modern family living
- Viewing at the earliest opportunity is highly advised to avoid missing out
**Accommodation**
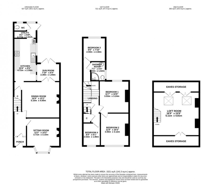
The house is beautifully presented throughout, with its contemporary open-plan accommodation ideal for those looking for comfortable family living. The property is accessed primarily from the front elevation, with bright reception hallway having stairs rising to the first floor and doors leading off to the lounge, kitchen and a stylishly appointed white suite shower room. The sitting room is particularly light and spacious with large window to the front allowing natural light to flood the room and an inset multi-fuel stove featuring an attractive brickwork surround. A wide opening to one end leads through to the dining room, which in turn has open access to the kitchen and sliding patio doors opening onto the garden. The kitchen is fitted with an attractive range of cream shaker style units with solid wood worktop surfaces built over and incorporates fitted appliances. A boot room with utility space adjacent gives access to both the garden and integral garage, complete with power and lighting and an up and over door to the front. From the first floor landing there is loft access and doors leading off to all four bedrooms and family bathroom, in keep with the rest of the immaculately kept accommodation having been fitted with a contemporary full white suite. The bedrooms are well proportioned, two with fitted wardrobes and two with wonderful far reaching views beyond the rooftops towards the Mendip Hill range in the distance.
**Outside**
The house enjoys the benefit of a generous sized family garden at the rear, fully enclosed by timber panelled fencing at the boundaries, making for a child and pet friendly environment. The garden has been predominantly laid to lawn with an area of decking and paved patio providing an ideal seating area to enjoy alfresco dining. A further area of lawned garden sits to the front of the house, with driveway adjacent, giving parking space for two vehicles and access to the garage in front with up and over door.
**Location**
Butleigh is a favoured village situated amidst gently rolling countryside 3 miles from Street and 4 miles from Glastonbury. The historic market town of Glastonbury provides a range of facilities including a Morrisons Supermarket, a choice of pubs and restaurants and St Dunstan's Community School. Millfield Junior School is situated on the edge of the town at Edgarley. Street provides a further choice of shops including the bustling Clarks Village with its range of factory outlets. Street also has a theatre, sixth form college, indoor and open air swimming pools, health centre and a Sainsburys Supermarket. The centres of Wells, Bath, Bristol and Taunton are approximately 10, 29, 31 and 24 miles respectively.
**Directions**
From Street/Glastonbury take the Butleigh Road and continue on through Butleigh Wootton. On entering the village, pass Butleigh Court on the left and take the third turning on the left into Chapel Lane. Continue around the sharp left-hand bend and turn right into Holm Oaks. Follow the road through the development where property will be found in the cul-de-sac on the left hand side.
**Material Information**
All available property information can be provided upon request from Holland & Odam. For confirmation of mobile phone and broadband coverage, please visit checker.ofcom.org.uk
**Identity Verification**
To ensure full compliance with current legal requirements, all buyers are required to verify their identity and risk status in line with anti-money laundering (AML) regulations before we can formally proceed with the sale. This process includes a series of checks covering identity verification, politically exposed person (PEP) screening, and AML risk assessment for each individual named as a purchaser. In addition, for best practice, we are required to obtain proof of funds and where necessary, to carry out checks on the source of funds being used for the purchase. These checks are mandatory and must be completed regardless of whether the purchase is mortgage-funded, cash, or part of a related transaction. A disbursement of £49 per individual (or £75 per director for limited company purchases) is payable to cover all aspects of this compliance process. This fee represents the full cost of conducting the required checks and verifications. You will receive a secure payment link and full instructions directly from our compliance partner, Guild365, who carry out these checks on our behalf.
Floorplan
EPC
To discuss this property call our Street branch:
Market your property
with Holland & Odam
Book a market appraisal for your property today. Our virtual options are still available if you prefer.