Share:
Description
- Detached four bedroom family home offering well proportioned accommodation, now in need of updating and presenting an excellent opportunity to improve and add value
- Sitting room with feature stone fireplace and patio doors opening onto the rear terrace, creating a natural connection to the garden
- Separate dining room with further patio doors, ideal for entertaining or adaptable as a second reception room
- Kitchen/breakfast room fitted with a range of units and integrated appliances, with dual aspect windows providing good natural light
- Four well sized bedrooms, all benefiting from built-in wardrobes, with the principal bedroom enjoying an en suite bathroom
- Family bathroom with modern suite including a large walk-in shower enclosure
- Generous driveway providing ample parking and turning space, leading to a double garage with power and light, along with enclosed rear garden enjoying a good degree of privacy
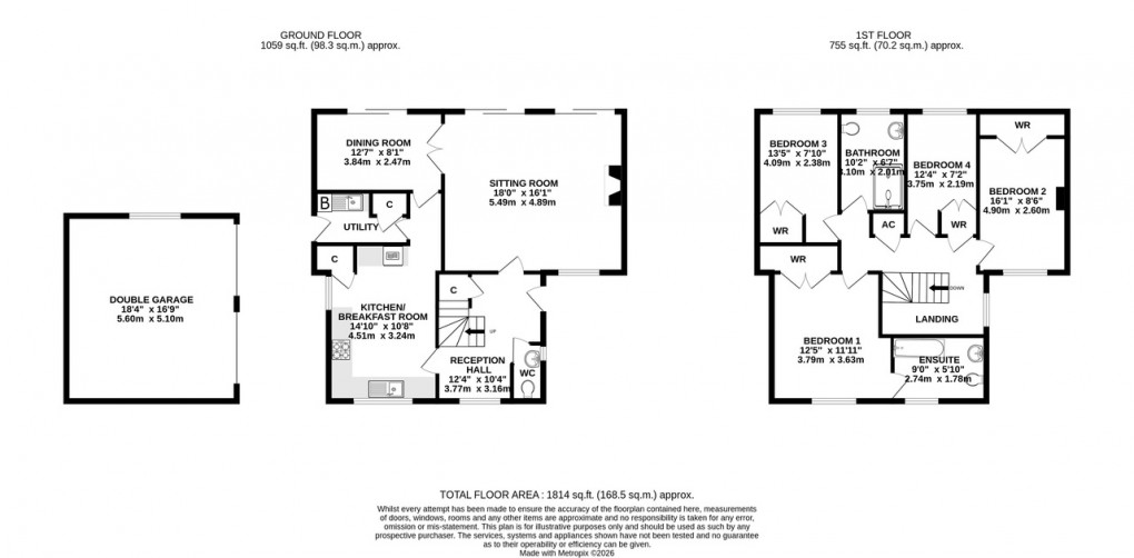
**Accommodation**
The accommodation is well arranged, with the entrance hall providing access to the principal ground floor rooms and stairs rising to the first floor. The sitting room enjoys a front facing aspect and features a stone fireplace with gas fire, plus patio doors opening onto the rear terrace and garden. Double doors to the dining room, which also benefits from patio doors to the garden. The kitchen/breakfast room is fitted with a range of units and integrated appliances, with dual aspect windows, and leads through to the utility room which provides additional storage, appliance space for a washing machine and access to the side of the house. A cloakroom completes the ground floor, situated just off of the entrance hall.
On the first floor there are four well proportioned bedrooms, all benefiting from built-in storage. Bedrooms one and two enjoy front facing aspects with views over rooftops towards Butleigh Moor in the distance, with the principal bedroom also having an en suite bathroom. Bedrooms three and four overlook the rear garden. The family bathroom has a modern suite including a large walk-in shower enclosure.
**Outside**
Outside, the property is approached via a generous driveway providing ample parking and turning space, leading to the double garage with power and light. To the front, a sheltered courtyard area offers additional outside space. The rear garden enjoys a good degree of privacy, with a paved terrace extending across the rear of the house, steps rising to a lawn garden bordered by mature planting. The garden enjoys a sunny aspect through much of the day, particularly in the spring and summer months.
**Location**
The property is situated just a short walk from the High Street with its good range of shops, restaurants, cafes, supermarkets, health centres etc. The historic town of Glastonbury is famous for its Tor and Abbey Ruins and is 6 miles from the Cathedral City of Wells whilst Street, with its more comprehensive range of facilities including both indoor and outdoor swimming pools, Strode Theatre, Strode College and the complex of shopping outlets in Clarks Village, is 2 miles. The nearest M5 motorway interchange at Dunball (Junction 23) is 14 miles whilst Bristol, Bath, Taunton and Yeovil are all within commuting distance.
**Directions**
From our High Street office, proceed down to the market place and bear left towards Magdalene Street. Carry on over the mini roundabout onto Fishers Hill and then at the top, proceed straight on, over into Butleigh Road, whereby Meadowbank can be found along on the left hand side.
**Material Information**
All available property information can be provided upon request from Holland & Odam. For confirmation of mobile phone and broadband coverage, please visit checker.ofcom.org.uk
**Identity Verification**
To ensure full compliance with current legal requirements, all buyers are required to verify their identity and risk status in line with anti-money laundering (AML) regulations before we can formally proceed with the sale. This process includes a series of checks covering identity verification, politically exposed person (PEP) screening, and AML risk assessment for each individual named as a purchaser. In addition, for best practice, we are required to obtain proof of funds and where necessary, to carry out checks on the source of funds being used for the purchase. These checks are mandatory and must be completed regardless of whether the purchase is mortgage-funded, cash, or part of a related transaction. A disbursement of £49 per individual (or £75 per director for limited company purchases) is payable to cover all aspects of this compliance process. This fee represents the full cost of conducting the required checks and verifications. You will receive a secure payment link and full instructions directly from our compliance partner, Guild365, who carry out these checks on our behalf.
Floorplan
EPC
To discuss this property call our Glastonbury branch:
Market your property
with Holland & Odam
Book a market appraisal for your property today. Our virtual options are still available if you prefer.