Share:
Description
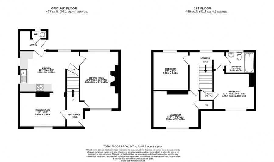
- Spacious light and bright, dual-aspect sitting room with built-in storage, offering a bright and inviting space perfect relaxing or entertaining.
- Stylish modern kitchen with sleek wall, base and drawer units, integrated oven, hob and fridge, complemented by a breakfast bar and ample workspace.
- Well-appointed utility room fitted with wall and base units, space for under-counter appliances, and plumbing for laundry facilities.
- Versatile additional reception room with doors opening to the garden, creating a superb light-filled space that seamlessly blends indoor and outdoor living.
- Affording three generously sized bedrooms, each enjoying a light and airy feel, with two benefitting from fitted wardrobes for convenient storage.
- Stylish shower room featuring a corner shower enclosure, vanity unit with countertop basin and WC, complemented by modern wall and floor tiling.
- Generous and enclosed rear garden with a large patio extending from the rear elevation, area of lawn workshop and shed, providing privacy and low maintenance, perfect for families or keen gardeners.
- Attractive lawned front garden with retaining stone wall, generous driveway for several cars, leading to the garage fitted with power and lighting. Ideal for families and modern living.
**Location**
Main Street is central location within the small and popular village of Walton which adjoins the western edge of Street in mid-Somerset. Local amenities including a Church, highly regarded Primary School, village hall and an excellent eating pub, The Royal Oak. The thriving centre of Street is 1 mile and offers more comprehensive facilities including both indoor and open air swimming pools, Strode Theatre and the complex of factory shopping outlets in Clarks Village. The historic town of Glastonbury is 3 miles and the Cathedral City of Wells 9 miles. The nearest M5 motorway interchange at Dunball, Bridgwater, (Junction 23) is 11 miles, whilst Bristol, Bath, Taunton and Yeovil are all within commuting distance.
**Directions**
From Street, head west on the A39 in the direction of the M5 and Bridgwater. Upon entering the village of Walton follow the road for a short distance, as you pass The Royal Oak pub on your left, the property will be found on the right hand side and easily identified by our for sale board.
**Material Information**
All available property information can be provided upon request from Holland & Odam. For confirmation of mobile phone and broadband coverage, please visit checker.ofcom.org.uk
**Identity Verification**
To ensure full compliance with current legal requirements, all buyers are required to verify their identity and risk status in line with anti-money laundering (AML) regulations before we can formally proceed with the sale. This process includes a series of checks covering identity verification, politically exposed person (PEP) screening, and AML risk assessment for each individual named as a purchaser. In addition, for best practice, we are required to obtain proof of funds and where necessary, to carry out checks on the source of funds being used for the purchase. These checks are mandatory and must be completed regardless of whether the purchase is mortgage-funded, cash, or part of a related transaction. A disbursement of £49 per individual (or £75 per director for limited company purchases) is payable to cover all aspects of this compliance process. This fee represents the full cost of conducting the required checks and verifications. You will receive a secure payment link and full instructions directly from our compliance partner, Guild365, who carry out these checks on our behalf.
Floorplan
EPC
To discuss this property call our Street branch:
Market your property
with Holland & Odam
Book a market appraisal for your property today. Our virtual options are still available if you prefer.