Share:
Description
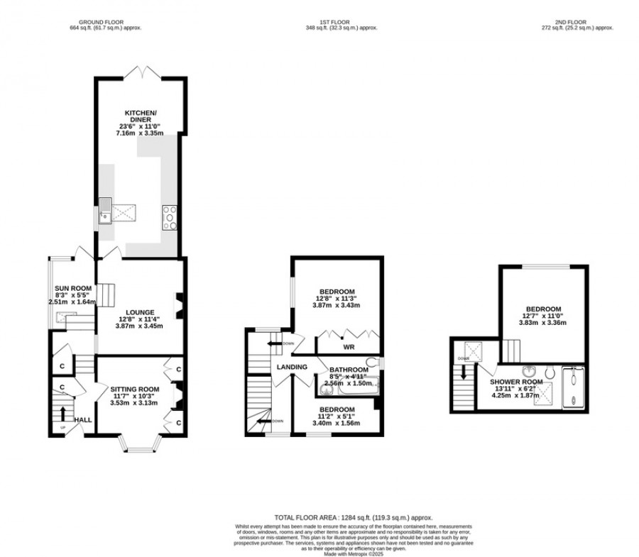
- Enjoying an open-plan living/dining room/kitchen featuring a charming wood-burning stove, bespoke alcove shelving, and a warm, inviting atmosphere ideal for relaxing or entertaining.
- Comprehensive fitted kitchen with a range of wall, base, and drawer units, built-in oven and hob, space for under-counter appliances, and a freestanding fridge/freezer.
- Light and bright additional reception room with access to the utility/WC and French doors opening out to the garden.
- Affording three good-sized bedrooms, with the master enjoying dual windows and a wood-panelled feature wall.
- Neatly presented family bathroom comprising a bath with shower over, wash basin, WC, heated chrome towel rail, and a useful airing cupboard.
- Enclosed rear garden with patio area, lawn, raised flower beds, summer house, and garden shed, plus a side gate providing access to the front of the property.
- Benefitting from a spacious driveway providing off-road parking for two vehicles, with potential to create additional parking if desired.
**Location**
Grange Avenue is situated on the northern side of Street within walking distance of the High Street and Clarks Village with its comprehensive range of shopping facilities and restaurants. Street also offers recreational and sporting facilities including Strode Theatre, both indoor and open air swimming pools, tennis, football, cricket etc. The historic town of Glastonbury is within 2 miles whilst the nearest M5 motorway interchange at Dunball, Bridgwater is 12 miles. Bristol, Bath, Taunton and Yeovil are within commuting distance.
**Directions**
Proceeding along the High Street, Bear Inn on your left hand side. Turn right into Farm Road and continue past Clarks Village until you reach a set of traffic lights. Turn right and then immediately left into Grange Avenue. 56 will be identified a short distance on your left-hand side.
**Material Information**
All available property information can be provided upon request from Holland & Odam. For confirmation of mobile phone and broadband coverage, please visit checker.ofcom.org.uk
Floorplan

EPC

To discuss this property call our Street branch:
Market your property
with Holland & Odam
Book a market appraisal for your property today. Our virtual options are still available if you prefer.