Share:
Description
- Attractive early 1900s period townhouse within walking distance of Glastonbury High Street.
- Spacious and versatile layout with four bedrooms and two reception rooms.
- Sitting and dining rooms each feature fireplaces with inset wood burning stoves.
- Handmade kitchen with wooden work surfaces and space for modern appliances.
- Updated family bathroom with corner shower and fitted vanity unit.
- South-facing rear garden with patio, pergola, lawn, summerhouse and second terrace.
- Off road parking for two vehicles accessed from Fairfield Gardens via private lane.
**Accommodation**
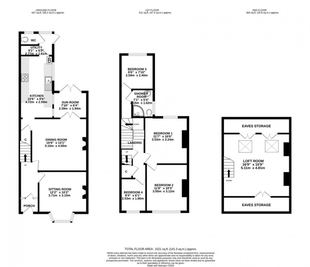
The front door opens into a welcoming vestibule and entrance hall with stairs rising to the first floor. Matching oak glazed doors open into both reception rooms. The sitting room enjoys a bay window to the front and a fireplace housing a wood burning stove. The dining room also features a wood burning stove, useful understair cupboard, glazed doors into the sunroom and an opening through to the kitchen. The kitchen is fitted with a handmade range of wall, base and drawer units with solid wood work surfaces, space for a cooker, washing machine and dishwasher, and a wall-mounted gas central heating boiler. From here, a glazed oak door leads to the rear lobby, which provides space for a tumble dryer, access to the cloakroom with WC and wash hand basin, and a further door opening onto the rear garden.
On the first floor, the landing provides access to four bedrooms, the family bathroom and stairs to the attic room. Bedroom one enjoys a rear aspect overlooking the garden with views towards Wearyall Hill. Bedroom two is a generous double to the front, while bedroom three also benefits from a pleasant rear aspect, and bedroom four is positioned at the front. The family bathroom has been updated with a white suite, including a corner shower enclosure, WC and vanity unit with inset wash basin. The attic room, though converted without formal building regs certification, offers additional flexible space with eaves storage and Velux roof lights.
**Outside**
The rear garden is one of the home’s highlights, accessed via the rear lobby and enjoying a lovely south-facing aspect. A patio extends across the rear elevation, partly covered by a pergola creating a perfect space for outdoor dining. Beyond this, the garden is laid mainly to lawn with a path leading to a second patio and summerhouse at the foot. A secure gate opens to the rear parking area, where there is off road parking for two vehicles accessed via a private lane from Fairfield Gardens.
**Location**
The property is situated in Benedict Street and is within a level walk of the town centre which offers a good range of supermarkets, shops, cafes, restaurants, health centres and public houses. Glastonbury is famous for its Tor and Abbey Ruins and is 6 miles from the Cathedral City of Wells. More comprehensive facilities can be found in Street, 2 miles distant, where Clarks Village offers a wide range of shopping outlets, there are both indoor and open air swimming pools, Strode Theatre and Strode College. Access to the M5 motorway can be gained at Junction 23 some 14 miles.
**Directions**
On entering Glastonbury from Street/Bridgwater (A39) at the Wirral Park roundabout (B & Q on the left) take the third exit into Street Road. Continue, passing Morrisons Supermarket on the left and at the mini-roundabout turn left into Magdalene Street. Continue and after approximately 200 metres turn left into Benedict Street. Continue along Benedict Street, passing the turning for Fairfield Gardens, where the property can be found on the left hand side.
**Material Information**
All available property information can be provided upon request from Holland & Odam. For confirmation of mobile phone and broadband coverage, please visit checker.ofcom.org.uk
**Identity Verification**
To ensure full compliance with current legal requirements, all buyers are required to verify their identity and risk status in line with anti-money laundering (AML) regulations before we can formally proceed with the sale. This process includes a series of checks covering identity verification, politically exposed person (PEP) screening, and AML risk assessment for each individual named as a purchaser. In addition, for best practice, we are required to obtain proof of funds and where necessary, to carry out checks on the source of funds being used for the purchase. These checks are mandatory and must be completed regardless of whether the purchase is mortgage-funded, cash, or part of a related transaction. A disbursement of £49 per individual (or £75 per director for limited company purchases) is payable to cover all aspects of this compliance process. This fee represents the full cost of conducting the required checks and verifications. You will receive a secure payment link and full instructions directly from our compliance partner, Guild365, who carry out these checks on our behalf.
Floorplan
EPC
To discuss this property call our Glastonbury branch:
Market your property
with Holland & Odam
Book a market appraisal for your property today. Our virtual options are still available if you prefer.