Share:
Description
- Elevated position enjoying panoramic south and west facing views across the town, Somerset Levels and towards Burrow Mump, with landmarks including Wearyall Hill and Glastonbury Abbey.
- Flexible accommodation arranged over two principal levels, offering four bedrooms, two bath or shower rooms and versatile living spaces suited to family occupation or multi-generational living.
- Spacious sitting room with sliding patio doors opening onto a substantial balcony, perfectly positioned to capture afternoon and evening sunshine along with uninterrupted far-reaching views.
- Modern kitchen and dining area finished with travertine flooring and fitted with a range of wall and base units, integrated Bosch oven and hob, and direct connection to the garden room.
- Useful utility room with plumbing for washing machine and tumble dryer, additional storage and housing for the hot water cylinder, providing practical separation from the main kitchen space.
- Detached garage with electric up and over door, power/light supplied, together with driveway parking for several vehicles, approached from Hexton Road for convenient vehicular access.
- Terraced and well-established gardens incorporating patios for alfresco dining, fruit trees, vegetable beds, lawned areas, measuring approx.0.25 acres, enjoying privacy and views across Glastonbury.
Gardens, terraces and mature planting create a peaceful setting just moments from the town centre.
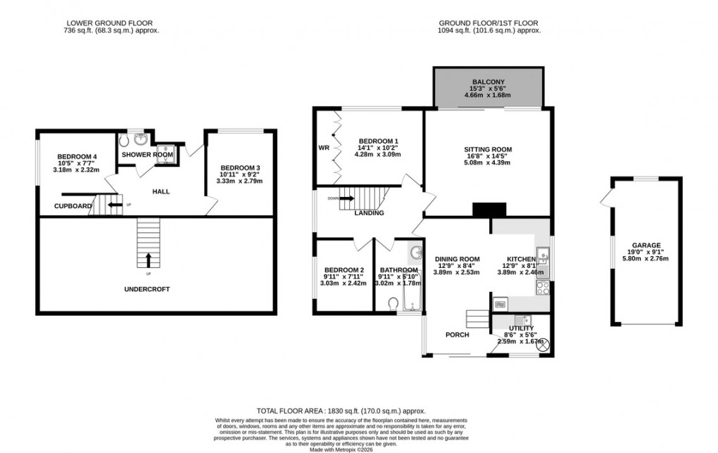
**Accommodation**
Commonly approached from the rear driveway, steps descend to the garden room where patio doors open into the home. This light-filled space leads directly into the kitchen and dining area, all laid with 'Travertine' tiling for continuity and flow. The kitchen comprises a modern range of wall and base units with integrated Bosch electric oven and hob, together with under-counter space for appliances. From here, the views stretch across Glastonbury and the Somerset Levels as far as Burrow Mump. A useful utility room sits to one side with plumbing for a washing machine and tumble dryer, additional storage and the hot water cylinder.
From the dining area a door leads to the landing, where painted floors extend into the sitting room and two of the bedrooms. The sitting room is a particular highlight, featuring sliding doors opening onto a generous balcony that captures sweeping south-westerly views across the town, taking in Wearyall Hill, Glastonbury Abbey and Butleigh Monument. A fireplace, currently sealed, offers potential for reinstatement with a woodburning stove. The principal bedroom benefits from built-in wardrobes and shares the same striking outlook, while the second bedroom, also ideal as a study, enjoys an easterly aspect. The family bathroom is fitted with a white suite including panel bath with shower over, vanity basin unit and WC, complemented by 'Travertine' tiling.
The lower ground floor provides two further bedrooms and a shower room, offering excellent flexibility for guests, teenagers or workspace. Both bedrooms enjoy natural light, one with a south-facing window overlooking the town and the other with an easterly aspect and useful under-stairs storage. A fully tiled shower room with enclosure, vanity basin and WC completes the level.
**Outside**
Outside, the property is approached from Hexton Road where a driveway provides parking for several vehicles and leads to a detached garage with electric up and over door, power/light supplied. Steps descend through a series of terraces that immediately showcase the elevated position and far-reaching south and west facing views across Glastonbury, taking in Wearyall Hill, the Abbey ruins and stretching towards the Somerset Levels and Burrow Mump. A paved terrace spans the rear of the house, ideal for outdoor dining and entertaining, opening onto further patio areas designed to capture the afternoon and evening sun. The gardens combine lawn with established borders, fruit trees and raised vegetable beds, creating colour, privacy and a productive element, while steps to the side connect to the front garden and formal access from Rowley Road. In total the property stands in grounds measuring approximately 0.25 acres.
**Location**
The property is in an elevated setting approximately one quarter of a mile from the High Street with its good range of shops, restaurants, health centres, public houses etc. The historic town of Glastonbury is famous for its Tor and Abbey Ruins and is some 6 miles from the Cathedral City of Wells. Street is 2 miles and offers more comprehensive facilities including Strode College, Strode Theatre, both indoor and outdoor swimming pools and the complex of shopping outlets in Clarks Village. Access to the M5 (Junction 23 - Dunball) is 14 miles whilst Bristol, Bath, Taunton and Yeovil are all within commuting distance.
**Directions**
From the town centre proceed up the High Street, passing St John's Church on the left, and at the top of the hill turn left into Wells Road. Continue for approximately 200 yards and turn right into Leg of Mutton Road. Proceed up the Hill and then turn right into Monington Road and then right again into Hexton Road where the rear access to the property can be found along on the right hand side.
**Material Information**
All available property information can be provided upon request from Holland & Odam. For confirmation of mobile phone and broadband coverage, please visit checker.ofcom.org.uk
**Identity Verification**
To ensure full compliance with current legal requirements, all buyers are required to verify their identity and risk status in line with anti-money laundering (AML) regulations before we can formally proceed with the sale. This process includes a series of checks covering identity verification, politically exposed person (PEP) screening, and AML risk assessment for each individual named as a purchaser. In addition, for best practice, we are required to obtain proof of funds and where necessary, to carry out checks on the source of funds being used for the purchase. These checks are mandatory and must be completed regardless of whether the purchase is mortgage-funded, cash, or part of a related transaction. A disbursement of £49 per individual (or £75 per director for limited company purchases) is payable to cover all aspects of this compliance process. This fee represents the full cost of conducting the required checks and verifications. You will receive a secure payment link and full instructions directly from our compliance partner, Guild365, who carry out these checks on our behalf.
Floorplan
EPC
To discuss this property call our Glastonbury branch:
Market your property
with Holland & Odam
Book a market appraisal for your property today. Our virtual options are still available if you prefer.