Share:
Description
- The main roof was stripped, re-felted and battened in 2018 with the flat roof extension having a new EPDM room just two years ago.
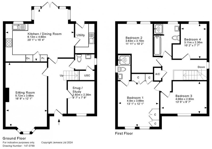
- Spacious kitchen / dining room which can easily accommodate a large family dining table and chairs
- Large sitting room with a lovely bay window overlooking the front garden.
- Upstairs there are two generous double bedrooms and a smaller single bedroom.
- A downstairs single storey extension comprises two further rooms. These have been used as bedrooms but could easily be used as an office while one is presently set up as a second reception room.
- Sun room with patio doors leading out
- Lean to with access to the rear of the property
- Downstairs cloakroom
- Useful outbuilding and ample parking for several cars on a gravel driveway.
- The garden is a combination of lawn, patio and raised beds along with some fruit trees
**Location**
Wells is the smallest city in England and offers a vibrant high street with a variety of independent shops and restaurants as well as a twice weekly market and a choice of supermarkets including Waitrose. Amenities include a leisure centre, independent cinema and a theatre. Bristol and Bath lie c.22 miles to the north and north-east respectively with mainline train stations to London at Castle Cary (c.11 miles) as well as Bristol and Bath. Bristol International Airport is c.15 miles to the north-west. Of particular note is the variety of well-regarded schools in both the state and private sectors in Wells and the surrounding area.
**Directions**
From Wells city centre follow signs for the B3139 The Horringtons and proceed through The Liberty. At the Fountain Inn bear left into St Thomas Street. Continue to the top of the hill turning left into North Road just after passing St Thomas' church. Take the second turning right into Lewmond Avenue and the property can be found on the right
**Material Information**
All available property information can be provided upon request from Holland & Odam. For confirmation of mobile phone and broadband coverage, please visit checker.ofcom.org.uk
**Identity Verification**
To ensure full compliance with current legal requirements, all buyers are required to verify their identity and risk status in line with anti-money laundering (AML) regulations before we can formally proceed with the sale. This process includes a series of checks covering identity verification, politically exposed person (PEP) screening, and AML risk assessment for each individual named as a purchaser. In addition, for best practice, we are required to obtain proof of funds and where necessary, to carry out checks on the source of funds being used for the purchase. These checks are mandatory and must be completed regardless of whether the purchase is mortgage-funded, cash, or part of a related transaction. A disbursement of £49 per individual (or £75 per director for limited company purchases) is payable to cover all aspects of this compliance process. This fee represents the full cost of conducting the required checks and verifications. You will receive a secure payment link and full instructions directly from our compliance partner, Guild365, who carry out these checks on our behalf.
Floorplan
EPC
To discuss this property call our Wells branch:
Market your property
with Holland & Odam
Book a market appraisal for your property today. Our virtual options are still available if you prefer.