Share:
Description
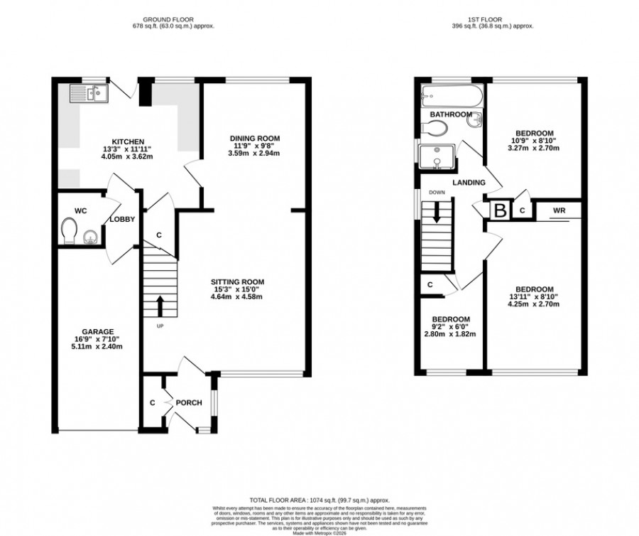
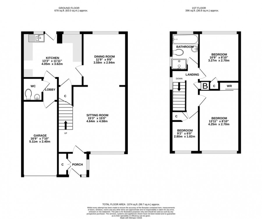
- The property benefits from a welcoming entrance hall with under-stairs cupboard and additional storage, along with a convenient ground floor wet room off the kitchen.
- Enjoying a spacious sitting room filled with natural light from a large window, centred around a charming wood-burning stove, creating a warm and inviting atmosphere.
- Stylish, modern kitchen/diner fitted with a range of high-gloss wall, base and drawer units, complemented by granite worktops, an integrated oven, and space for under-counter appliances.
- Affording three bright and airy bedrooms, including two well-proportioned doubles, with the principal bedroom enjoying fantastic countryside views.
- A well-appointed family bathroom comprising a bath, separate shower enclosure, wash basin with storage beneath, WC, heated towel rail, and housing the airing cupboard.
- Fantastic-sized, south-facing garden, mainly laid to lawn and filled with a host of established plants, offering privacy, with a potting shed and a summer house benefiting from power and lighting.
- Benefitting from driveway parking to the front of a good-sized workshop, fitted with a barn-style door and equipped with power and lighting.
**Location**
Moorlinch is a popular rural village situated on the southern slopes of the Polden Hills, overlooking part of the Somerset Levels. The village benefits from a garage/body repair shop, a parish church, and The Ring O'Bells public house. The village of Ashcott is only 2.5 miles away and offers a choice of pubs and a primary school. Additional primary schools can be found in Catcott (2.5 miles) and High Ham (7 miles). The thriving town of Street (6 miles), famous as the home of Clarks Shoes and the renowned Millfield School, provides a wide range of shops including Clarks Village shopping centre and a Sainsbury's supermarket. Moorlinch offers convenient access to the A39 and A361, and is just 7 miles from Junction 23 of the M5. The regional centres of Taunton, Exeter, and Bristol are 21, 56, and 35 miles away respectively, with Bristol International Airport located 29 miles from the village.
**Directions**
From Street proceed along the A39 towards Bridgwater passing through the villages of Walton and Ashcott. After travelling for approximately 5 miles take the left hand turning signposted to Moorlinch. Continue down the hill into the village, the property will be found on the right hand side just after a left hand bend.
**Material Information**
All available property information can be provided upon request from Holland & Odam. For confirmation of mobile phone and broadband coverage, please visit checker.ofcom.org.uk
**Identity Verification**
To ensure full compliance with current legal requirements, all buyers are required to verify their identity and risk status in line with anti-money laundering (AML) regulations before we can formally proceed with the sale. This process includes a series of checks covering identity verification, politically exposed person (PEP) screening, and AML risk assessment for each individual named as a purchaser. In addition, for best practice, we are required to obtain proof of funds and where necessary, to carry out checks on the source of funds being used for the purchase. These checks are mandatory and must be completed regardless of whether the purchase is mortgage-funded, cash, or part of a related transaction. A disbursement of £49 per individual (or £75 per director for limited company purchases) is payable to cover all aspects of this compliance process. This fee represents the full cost of conducting the required checks and verifications. You will receive a secure payment link and full instructions directly from our compliance partner, Guild365, who carry out these checks on our behalf.
Floorplan
EPC
To discuss this property call our Street branch:
Market your property
with Holland & Odam
Book a market appraisal for your property today. Our virtual options are still available if you prefer.