Share:
Description
- Set within a well-regarded village, this modern home built in 2019 retains approximately 4 years of its NHBC warranty, offering peace of mind for future owners.
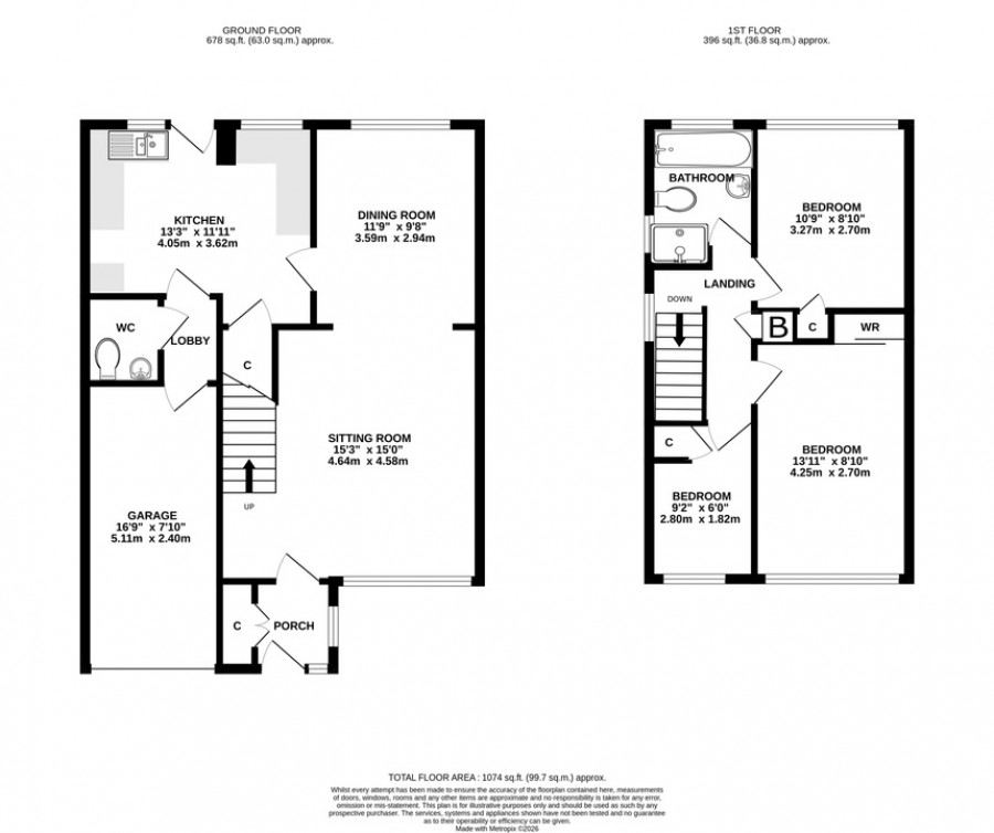
- Bright and spacious living room with a large opening to the kitchen/diner, allowing easy flow but keeping the rooms defined.
- Generous kitchen/diner with ample space for a family-sized table and chairs, French doors opening to the garden, creating a light and bright social space, with access to the ground floor WC.
- Well-appointed kitchen fitted with wall, base and drawer units, built-in oven and hob, integrated dishwasher, and space for washing machine and freestanding fridge/freezer.
- Affording three bedrooms; two of which would be considered well proportioned doubles with one benefiting from built in cupboard space.
- Serviced by the family bathroom comprising bath with shower over, wash basin, WC and heated chrome towel rail.
- Low-maintenance, south-facing paved garden with powered summer house, ideal for seating or storage, plus side gate access for convenience.
- Benefiting from two allocated off-road parking spaces located behind the property.
**Location**
The delightful village of Ashcott (population c.1186) sits part way along the Polden ridge, having wonderful rural views of the Somerset Levels and its various tributaries, all situated some 5 miles south-west of Glastonbury. At its heart is the historic Church of All Saints, an early 15th century building, forming part of a group of six churches known as the Polden Wheel. Ashcott is particularly well known locally for its superb village community and benefits from a highly regarded Primary School, sports playing fields, pub at the village centre and active village hall. The village also offers good and convenient access to other local towns/employment centres, such as Taunton (18 miles), Bridgwater 10 miles), Wells (11 miles) Bristol (31 miles), Bath (31 miles) and Exeter (55 miles). The M5 motorway J23 (9 miles) and the A303 Podimore Junction (12 miles). Bristol International Airport is 23 miles and Castle Cary railway station (London Paddington) 15miles.
**Directions**
From Street take the A39 towards Bridgwater passing through the village of Walton and into Ashcott. Shortly after passing the Ashcott Inn on your left hand side, turn right at the triangular green, continue straight ahead onto The Batch. The property will be found immediately on your right hand side and easily identified by our For Sale board.
**Material Information**
All available property information can be provided upon request from Holland & Odam. For confirmation of mobile phone and broadband coverage, please visit checker.ofcom.org.uk
**Identity Verification**
To ensure full compliance with current legal requirements, all buyers are required to verify their identity and risk status in line with anti-money laundering (AML) regulations before we can formally proceed with the sale. This process includes a series of checks covering identity verification, politically exposed person (PEP) screening, and AML risk assessment for each individual named as a purchaser. In addition, for best practice, we are required to obtain proof of funds and where necessary, to carry out checks on the source of funds being used for the purchase. These checks are mandatory and must be completed regardless of whether the purchase is mortgage-funded, cash, or part of a related transaction. A disbursement of £49 per individual (or £75 per director for limited company purchases) is payable to cover all aspects of this compliance process. This fee represents the full cost of conducting the required checks and verifications. You will receive a secure payment link and full instructions directly from our compliance partner, Guild365, who carry out these checks on our behalf.
Floorplan
EPC
To discuss this property call our Street branch:
Market your property
with Holland & Odam
Book a market appraisal for your property today. Our virtual options are still available if you prefer.