Share:
Description
- Natural stone semi-detached home in the heart of Somerton
- Spacious kitchen/diner ideal for family living and entertaining
- Comfortable living room with plenty of natural light
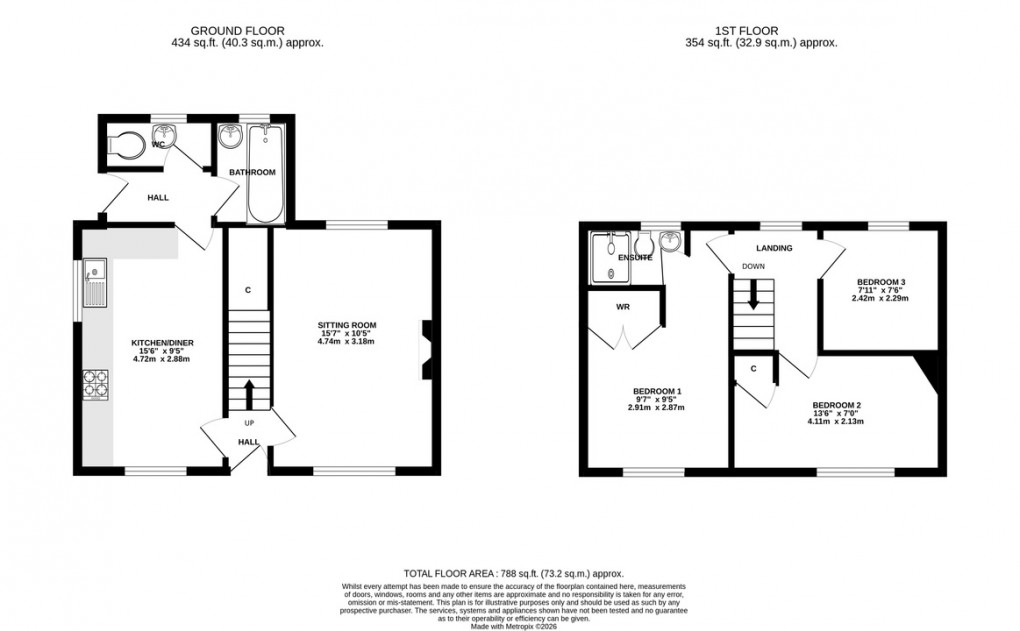
- Ground floor WC and separate family bathroom
- Three bedrooms including a master bedroom with en-suite shower room
- Large gravelled driveway providing ample off-road parking
- Generous enclosed west-facing rear garden, perfect for families and entertaining with greenhouse and storage sheds
- Modern gas combi-boiler, double glazing throughout and solar panels
This attractive natural stone semi-detached home is ideally positioned in the heart of Somerton, within easy walking distance of the town’s amenities.
The accommodation is well laid out and suited to modern family living. On the ground floor, the property offers a spacious kitchen/diner, a comfortable living room, downstairs WC and a family bathroom.
To the first floor, there is a master bedroom with en-suite shower room, along with two further bedrooms, making this an ideal home for families, couples or those working from home.
Externally, the property benefits from a large gravelled driveway providing ample off-road parking. To the rear is a substantial enclosed west-facing garden, perfect for family life and entertaining, enjoying afternoon and evening sun.
Further features include gas central heating, double glazing, and solar panels owned outright by the seller, offering improved energy efficiency and reduced running costs.
**Location**
Somerton is a picturesque, rural town in the heart of Somerset. There are a good level of amenities within this beautiful Market town including some local, independent shops, Art Galleries, antiques, cafes and several public houses enjoying attractive beer gardens and restaurants. Somerton also offers a library, doctor and dentist surgery, opticians, TSB bank, churches and schools within the town. Further amenities can be found on the outskirts of Somerton within Bancombe Business Park including garages, recycling centre and Edgar Hall which holds a number of events for the locals to enjoy. A more comprehensive range of amenities can be found in Yeovil (south) or the County town of Taunton (west). Somerton is well positioned for travel, close to the A303 and M5 with a well linked bus service and mainline railway stations are located in Castle Cary, Yeovil and Taunton with direct links to Waterloo and Paddington.
**Directions**
**Material Information**
All available property information can be provided upon request from Holland & Odam. For confirmation of mobile phone and broadband coverage, please visit checker.ofcom.org.uk
**Identity Verification**
To ensure full compliance with current legal requirements, all buyers are required to verify their identity and risk status in line with anti-money laundering (AML) regulations before we can formally proceed with the sale. This process includes a series of checks covering identity verification, politically exposed person (PEP) screening, and AML risk assessment for each individual named as a purchaser. In addition, for best practice, we are required to obtain proof of funds and where necessary, to carry out checks on the source of funds being used for the purchase. These checks are mandatory and must be completed regardless of whether the purchase is mortgage-funded, cash, or part of a related transaction. A disbursement of £49 per individual (or £75 per director for limited company purchases) is payable to cover all aspects of this compliance process. This fee represents the full cost of conducting the required checks and verifications. You will receive a secure payment link and full instructions directly from our compliance partner, Guild365, who carry out these checks on our behalf.
Floorplan
EPC
To discuss this property call our Somerton branch:
Market your property
with Holland & Odam
Book a market appraisal for your property today. Our virtual options are still available if you prefer.