Share:
Description
- Neatly presented and well-maintained, making it an ideal purchase for first-time buyers or investors.
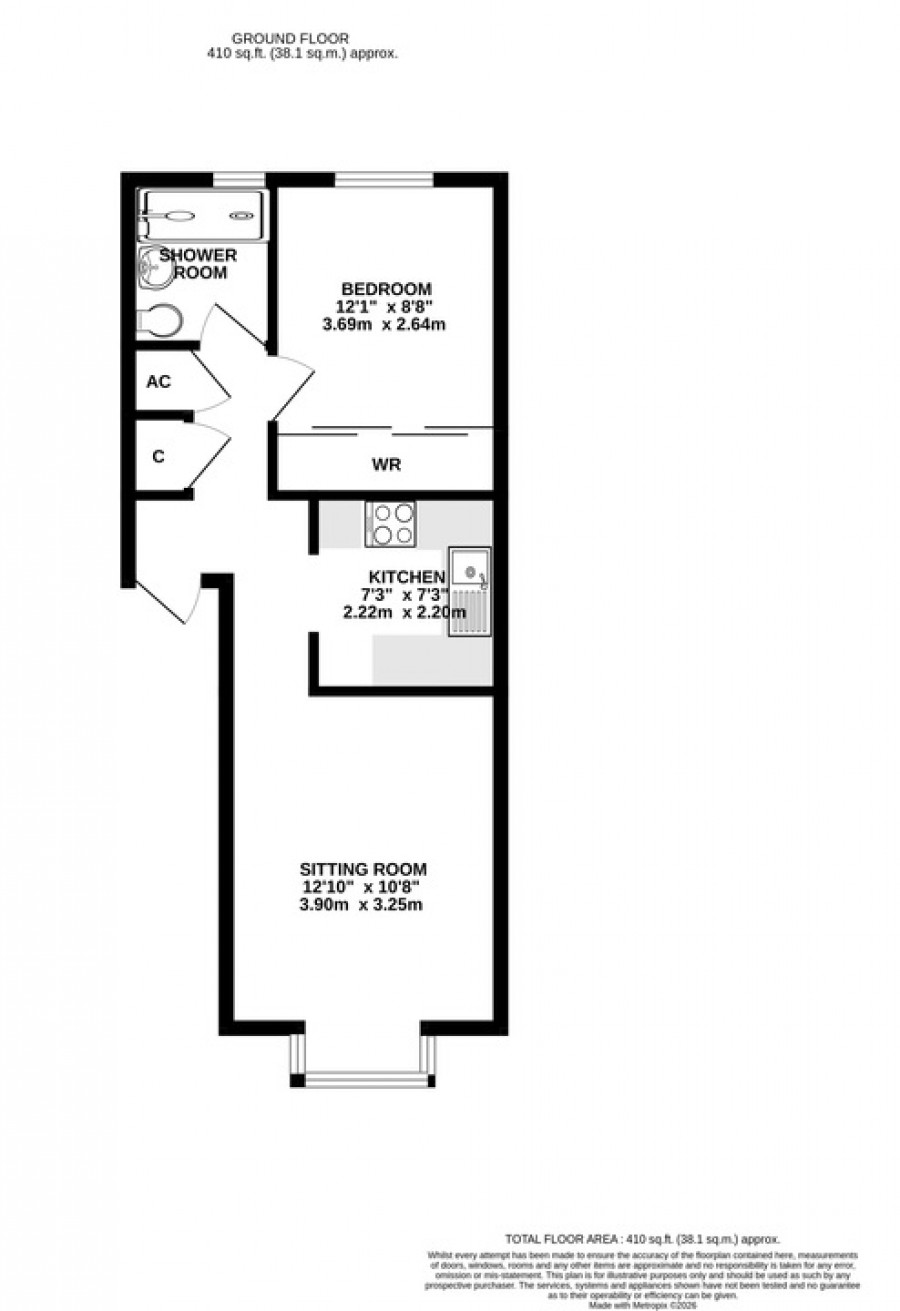
- Bright and spacious living room with a large bay window allowing ample natural light and offering direct access outside.
- The kitchen has been fitted with wall, base and drawer units, cooker and has space for undercounter appliances.
- Affording a well proportioned double bedroom with providing ample space for freestanding furniture.
- Served by a neatly presented family bathroom featuring a bath with shower over and wash basin, with a separate WC and basin located to the rear of the property.
- Enjoying the advantage of two designated off-road parking spaces for added ease and practicality.
**Location**
The property is conveniently placed within walking distance from town amenities, bus stop, Millfield School, Crispin School and Strode College. The busy High Street is also within walking distance and together with Clarks Village provides an attractive shopping environment. Street also offers indoor and open air swimming pools, a theatre, health centre, sports club and a choice of pubs and restaurants. The historic town of Glastonbury is within 2 miles and the beautiful Cathedral City of Wells is 9 miles. The M5 junction 23 is 13 miles and the cities of Bristol and Bath are 33 miles.
**Directions**
Follow the High Street in an easterly direction, Bear Hotel on the right hand side. At a mini roundabout take the first exit into Glaston Road. Continue along passing the turning for Grange Road, and just after the bus stop turn left where the property will be found on your right hand side.
**Material Information**
All available property information can be provided upon request from Holland & Odam. For confirmation of mobile phone and broadband coverage, please visit checker.ofcom.org.uk
**Identity Verification**
To ensure full compliance with current legal requirements, all buyers are required to verify their identity and risk status in line with anti-money laundering (AML) regulations before we can formally proceed with the sale. This process includes a series of checks covering identity verification, politically exposed person (PEP) screening, and AML risk assessment for each individual named as a purchaser. In addition, for best practice, we are required to obtain proof of funds and where necessary, to carry out checks on the source of funds being used for the purchase. These checks are mandatory and must be completed regardless of whether the purchase is mortgage-funded, cash, or part of a related transaction. A disbursement of £49 per individual (or £75 per director for limited company purchases) is payable to cover all aspects of this compliance process. This fee represents the full cost of conducting the required checks and verifications. You will receive a secure payment link and full instructions directly from our compliance partner, Guild365, who carry out these checks on our behalf.
Floorplan
EPC
To discuss this property call our Street branch:
Market your property
with Holland & Odam
Book a market appraisal for your property today. Our virtual options are still available if you prefer.