Share:
Description
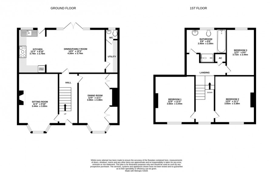
- Generous sitting room to the front with inset electric fire
- Smart kitchen which has been updated with integrated dishwasher, five burner gas hob, double oven, fridge freezer and washing machine
- Extremely spacious dining area which leads into the family room where there is ample space for large furniture. A roof lantern lets plenty of natural light in. This really is a sociable space
- From the kitchen there is access into the integral garage
- Upstairs there are three bedrooms with bedroom one having a built-in wardrobe, bedroom two having the airing cupboard and bedroom three is a single room with a storage cupboard
- The garden has a real feeling of open space and has been carefully landscaped. It is divided into a paved area of seating and an area of artificial grass all separated by weathered railway sleepers
**Location**
Wells is the smallest city in England and offers a vibrant high street with a variety of independent shops and restaurants as well as a twice weekly market and a choice of supermarkets including Waitrose. Amenities include a leisure centre, independent cinema and a theatre. Bristol and Bath lie c.22 miles to the north and north-east respectively with mainline train stations to London at Castle Cary (c.11 miles) as well as Bristol and Bath. Bristol International Airport is c.15 miles to the north-west. Of particular note is the variety of well-regarded schools in both the state and private sectors in Wells and the surrounding area.
**Directions**
From Wells city centre follow signs for Glastonbury A39. Pass Tinknells Country Shop and take the turning right into Jocelyn Drive. Take the third turning on the right into Keward Avenue. Then take the third right into Spring Rise. Bear left and the property will be found in the left hand corner
**Material Information**
All available property information can be provided upon request from Holland & Odam. For confirmation of mobile phone and broadband coverage, please visit checker.ofcom.org.uk
**Identity Verification**
To ensure full compliance with current legal requirements, all buyers are required to verify their identity and risk status in line with anti-money laundering (AML) regulations before we can formally proceed with the sale. This process includes a series of checks covering identity verification, politically exposed person (PEP) screening, and AML risk assessment for each individual named as a purchaser. In addition, for best practice, we are required to obtain proof of funds and where necessary, to carry out checks on the source of funds being used for the purchase. These checks are mandatory and must be completed regardless of whether the purchase is mortgage-funded, cash, or part of a related transaction. A disbursement of £49 per individual (or £75 per director for limited company purchases) is payable to cover all aspects of this compliance process. This fee represents the full cost of conducting the required checks and verifications. You will receive a secure payment link and full instructions directly from our compliance partner, Guild365, who carry out these checks on our behalf.
Floorplan
EPC
To discuss this property call our Wells branch:
Market your property
with Holland & Odam
Book a market appraisal for your property today. Our virtual options are still available if you prefer.