Share:
Description
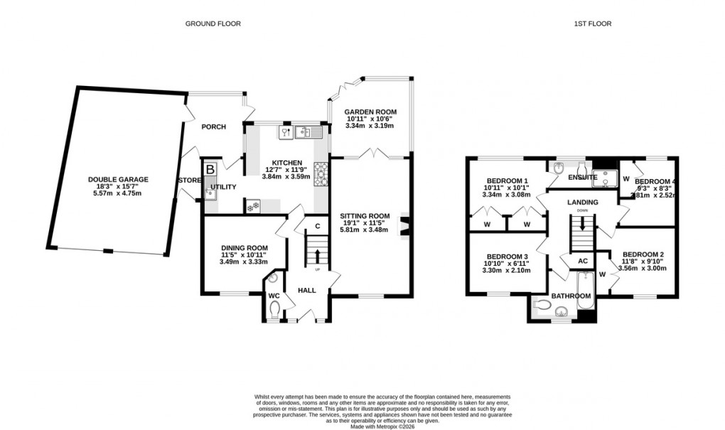
- Attractive four bedroom detached family home offering well balanced accommodation with two reception rooms, conservatory and a useful garden room adjoining the garage.
- Updated kitchen fitted with a comprehensive range of wall, base and drawer units with quartz work surfaces and space for a range cooker and integrated appliances.
- Separate utility room with space and plumbing for washing machine and tumble dryer.
- Four well proportioned bedrooms arranged on the first floor, including a principal bedroom with built in wardrobes and en suite shower room.
- Modernised family bathroom fitted with a panelled bath with shower over, wash hand basin and WC.
- Driveway parking leading to a double garage with electric car charging point.
- Generous rear garden with shaped lawn and patio seating areas positioned to enjoy sunlight throughout the day during the warmer months.
**Accommodation**
The front entrance door opens into the reception hall where stairs rise to the first floor landing. From here, doors lead to the principal ground floor rooms including the cloakroom. The sitting room enjoys a window to the front together with a tiled fireplace forming the focal point of the room, while glazed doors open through into the conservatory. The dining room is accessed through double doors from the hall and has a front facing window, creating a pleasant and versatile second reception space.
The kitchen has been thoughtfully updated and fitted with an extensive range of wall, base and drawer units with quartz work surfaces over. There is space for a gas or electric range cooker together with an integrated fridge freezer and dishwasher. Off the kitchen is the utility room with space and plumbing for a washing machine and tumble dryer, and a door opening into the garden room adjoining the garage. On the first floor landing, doors lead to four well proportioned bedrooms together with the family bathroom. Bedrooms one and four overlook the rear garden, with the principal bedroom also benefiting from built in wardrobes and an en suite shower room. Bedrooms two and three are positioned to the front, with bedroom two also including a built in wardrobe. The family bathroom has been updated with a suite comprising a panelled bath with shower over, wash hand basin and WC.
**Outside**
Outside, the property is approached via a driveway, with electric car charging point, providing parking for several vehicles and leading to the double garage. Between the house and garage is a useful covered area with outside tap and access into the rear garden, along with doors into the garden room ,garage and utility room. The rear garden is particularly well proportioned and attractively arranged with shaped lawn, patio, sun deck and seating areas positioned around the garden to enjoy the sunlight throughout the day, especially during the spring and summer months.
**Location**
The property is situated on the popular Millstream Development towards the south western outskirts of the town, yet being within walking distance of Morrisons and Tesco supermarkets and the centre of this historic town. Glastonbury is famous for its Tor and Abbey Ruins and has a good range of shops, bank, cafes, Inns, schools and two health centres. The thriving centre of Street is some two miles and offers a more comprehensive range of shopping, sporting and recreational facilities including Clarks Village, complex of factory shopping outlets, both indoor and outdoor swimming pools and Strode Theatre. The Cathedral City of Wells is some 6 miles whilst the nearest M5 motorway interchange at Dunball, Bridgwater is approximately 14 miles. Bristol, Bath, Taunton and Yeovil are each within an hour's drive.
**Directions**
On approaching Glastonbury from Street/Bridgwater at the relief road roundabout (B & Q on the left), take the second exit onto the by-pass. Take the first turning on the right into Ranger Road and at the junction bear left into Boundary Way and proceed for approximately three hundred and fifty yards where the property will be identified on the right-hand side by our 'For Sale' board.
**Material Information**
All available property information can be provided upon request from Holland & Odam. For confirmation of mobile phone and broadband coverage, please visit checker.ofcom.org.uk
**Identity Verification**
To ensure full compliance with current legal requirements, all buyers are required to verify their identity and risk status in line with anti-money laundering (AML) regulations before we can formally proceed with the sale. This process includes a series of checks covering identity verification, politically exposed person (PEP) screening, and AML risk assessment for each individual named as a purchaser. In addition, for best practice, we are required to obtain proof of funds and where necessary, to carry out checks on the source of funds being used for the purchase. These checks are mandatory and must be completed regardless of whether the purchase is mortgage-funded, cash, or part of a related transaction. A disbursement of £49 per individual (or £75 per director for limited company purchases) is payable to cover all aspects of this compliance process. This fee represents the full cost of conducting the required checks and verifications. You will receive a secure payment link and full instructions directly from our compliance partner, Guild365, who carry out these checks on our behalf.
Floorplan
EPC
To discuss this property call our Glastonbury branch:
Market your property
with Holland & Odam
Book a market appraisal for your property today. Our virtual options are still available if you prefer.