Share:
Description
- Situated in the quiet, desirable village of Meare, offering a peaceful setting while remaining well connected to nearby towns and everyday amenities.
- Immaculately presented semi-detached home with a bright, well-proportioned layout designed for comfortable modern living and easy day-to-day practicality.
- Stylish newly fitted shaker-style kitchen/diner with integrated appliances, and French doors opening directly onto the rear garden.
- Spacious sitting room providing a welcoming place to relax, with plenty of natural light and double doors leading through to the kitchen and dining area.
- Three well-sized bedrooms including a generous main bedroom with its own en-suite shower room, plus a contemporary family bathroom serving the others.
- Useful built-in storage throughout, including a clever under-stairs pull-out shoe drawer in the hallway to keep the entrance tidy and clutter free.
- Private, fully enclosed rear garden designed for low maintenance, featuring patio seating, lawned areas, a garden shed and established planting.
- Off-street driveway parking for multiple vehicles, with gated side access leading directly into the rear garden.
**Accommodation**
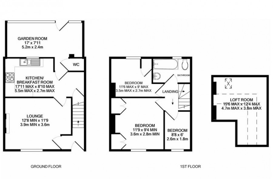
The front door opens into a reception hall, where stairs rise to the first floor. To one side is a stylish cloakroom, while additional doors lead to the kitchen/dining room and the sitting room. A particularly useful under-stairs pull-out shoe drawer provides discreet and practical storage. The sitting room is light and airy and enjoys a front-facing aspect with double doors opening into the kitchen/dining room beyond.
The kitchen/dining room is a real feature of the home, fitted with a newly installed shaker-style range of wall, base and drawer units, together with integrated appliances including an electric oven and hob, fridge/freezer and dishwasher. There is ample space for a dining table, making this a true hub of the home, while French doors open directly onto the rear garden.
On the first floor, the landing provides access to three well-sized bedrooms and the family bathroom. Bedroom one is a spacious double with a front-facing window, built-in storage and a modern en-suite shower room.
Bedrooms two and three both enjoy rear-facing aspects, with bedroom two benefitting from fitted wardrobes and generous double accommodation, while bedroom three offers a comfortable single bedroom ideal as a child’s room, guest room or home office.
The family bathroom is fitted with a modern suite comprising a panelled bath with shower over, wash hand basin and WC.
**Outside**
To the front of the property, a private driveway provides off-road parking. A gated side entrance leads into the fully enclosed rear garden, which is bordered by timber fencing and designed for ease of maintenance. The garden offers a pleasant mix of patio and lawn, along with established planting and a garden shed, creating an ideal space for relaxing, gardening or entertaining outdoors.
**Location**
Meare is a rural village set on the picturesque Somerset Levels, 3 miles to the west of Glastonbury. The village provides a primary school, parish church and farm shop. The historic town of Glastonbury offers a range of shopping facilities, St Dunstan's Community School and Millfield Preparatory School in Edgarley. Street is within 4 miles and provides a further choice of shopping facilities, Strode College and Strode Theatre. The M5 (junction 22) is within 12 miles, Bristol International Airport 22 miles and the nearest main line rail link to London Paddington is at Castle Cary, 19 miles.
**Directions**
On entering Glastonbury from Street/Bridgwater on the A39, at the main roundabout (B & Q on the left) take the second exit onto the bypass. Proceed straight ahead at the first roundabout and at the next roundabout take the first exit signposted to Meare/Wedmore. Continue into the village of Meare where The Levels will be found on the left hand side just before the Ashcott Road turning.
**Material Information**
**Identity Verification**
To ensure full compliance with current legal requirements, all buyers are required to verify their identity and risk status in line with anti-money laundering (AML) regulations before we can formally proceed with the sale. This process includes a series of checks covering identity verification, politically exposed person (PEP) screening, and AML risk assessment for each individual named as a purchaser. In addition, for best practice, we are required to obtain proof of funds and where necessary, to carry out checks on the source of funds being used for the purchase. These checks are mandatory and must be completed regardless of whether the purchase is mortgage-funded, cash, or part of a related transaction. A disbursement of £49 per individual (or £75 per director for limited company purchases) is payable to cover all aspects of this compliance process. This fee represents the full cost of conducting the required checks and verifications. You will receive a secure payment link and full instructions directly from our compliance partner, Guild365, who carry out these checks on our behalf.
Floorplan
EPC
To discuss this property call our Glastonbury branch:
Market your property
with Holland & Odam
Book a market appraisal for your property today. Our virtual options are still available if you prefer.