Share:
Description
- Convenient location tucked away within a quiet side street, just a short, level walk from the High Street, local amenities and schools
- Well presented accommodation including three bedrooms, a family bathroom and a versatile loft room accessed via ladder
- Comfortable sitting room to the front, complemented by a spacious kitchen/breakfast room with room for dining and everyday living
- Garden room to the rear providing additional reception space, enjoying views over the garden and direct access outside
- West facing rear garden offering a good degree of privacy, with lawn, patio and mature planting creating a pleasant outdoor setting
- • Garage and off-road parking located to the rear, together with the added benefit of a newly replaced roof to the main house in 2025
**Accommodation**
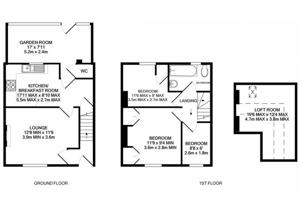
The front door opens into the entrance hall with stairs rising to the first floor and a door into the sitting room. This is a comfortable reception space with a front facing window and feature fireplace. To the rear of the property is a spacious kitchen/breakfast room fitted with a range of units, offering space for appliances and a breakfast table, with a useful cloakroom positioned off. From here, the accommodation flows into the garden room, providing additional reception space with views over and access to the rear garden.
On the first floor, there are three bedrooms and the family bathroom leading off the landing. Bedrooms one and two are both good doubles, each benefiting from built-in storage, while the third bedroom offers a practical single or study. A loft ladder provides access to a useful loft room, which is currently utilised as additional space and offers flexibility depending on a purchaser’s needs.
**Outside**
The property is approached from a quiet side street, with access to off-road parking and a single garage located to the rear. The west facing garden is a real feature, enjoying a good degree of privacy and being enclosed by a variety of mature trees and shrubs. A patio area adjoins the rear of the house, with the remainder laid to lawn and a pathway leading to the rear, creating a pleasant and usable outdoor space throughout the day.
**Location**
The property is conveniently situated being within level walking distance of the High Street with its good range of shops, banks, restaurants, cafes, health centres, public houses and supermarkets. The historic town of Glastonbury is famous for its Tor and Abbey Ruins and lies some 6 miles south of the Cathedral City of Wells. Street is 2 miles and offers a wider range of amenities including Strode College, Strode Theatre and the complex of shopping outlets in Clarks Village. Access to the M5 motorway can be gained at Junction 23, (Dunball) some 14 miles distant, whilst Bristol, Bath and Yeovil are all within an hour's drive.
**Directions**
From the town centre proceed up the High Street and shortly after passing St John's Church on the left, turn left into The Archers Way. Continue to the far end and on reaching the 'T' junction with Manor House Road where Bowyers Close is almost immediately opposite and the property will be found on the left.
**Material Information**
All available property information can be provided upon request from Holland & Odam. For confirmation of mobile phone and broadband coverage, please visit checker.ofcom.org.uk
**Identity Verification**
To ensure full compliance with current legal requirements, all buyers are required to verify their identity and risk status in line with anti-money laundering (AML) regulations before we can formally proceed with the sale. This process includes a series of checks covering identity verification, politically exposed person (PEP) screening, and AML risk assessment for each individual named as a purchaser. In addition, for best practice, we are required to obtain proof of funds and where necessary, to carry out checks on the source of funds being used for the purchase. These checks are mandatory and must be completed regardless of whether the purchase is mortgage-funded, cash, or part of a related transaction. A disbursement of £49 per individual (or £75 per director for limited company purchases) is payable to cover all aspects of this compliance process. This fee represents the full cost of conducting the required checks and verifications. You will receive a secure payment link and full instructions directly from our compliance partner, Guild365, who carry out these checks on our behalf.
Floorplan
EPC
To discuss this property call our Glastonbury branch:
Market your property
with Holland & Odam
Book a market appraisal for your property today. Our virtual options are still available if you prefer.