Share:
Description
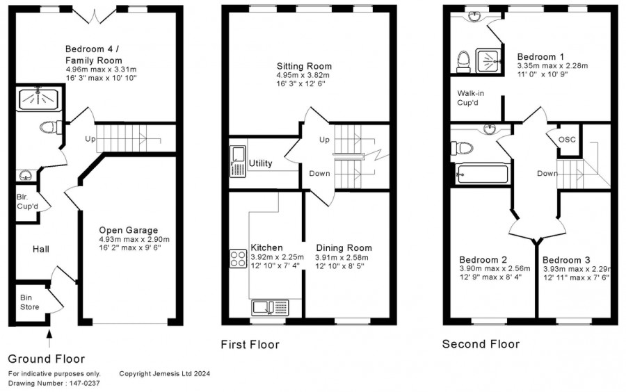
- Entrance hall with ground floor cloakroom and laundry cupboard
- Well equipped kitchen (gas hob, electric oven, integrated dishwasher and fridge freezer) with open plan living room off overlooking the rear garden
- Study/snug/playroom
- First floor sitting room or bedroom
- Master bedroom with en suite shower room
- Two further second floor bedrooms (both doubles) and a family bathroom
- Single vehicle garage with power and light and c.13m (42') of driveway
- Low maintenance, landscaped garden to the rear enjoying a westerly aspect and with a side gate
- Within walking distance of the city centre and a number of popular schools
**Location**
Wells is the smallest city in England and offers a vibrant high street with a variety of independent shops and restaurants as well as a twice weekly market and a choice of supermarkets including Waitrose. Amenities include a leisure centre, independent cinema and a theatre. Bristol and Bath lie c.22 miles to the north and north-east respectively with mainline train stations to London at Castle Cary (c.11 miles) as well as Bristol and Bath. Bristol International Airport is c.15 miles to the north-west. Of particular note is the variety of well-regarded schools in both the state and private sectors in Wells and the surrounding area.
**Directions**
From the relief road follow signs for Wookey Hole via Wookey Hole Road. Pass the turning on the right into Ash Lane and the turning on the left into Goodymore Avenue. Take the second of the two turnings on the left signposted Penleigh Road and the property can be found on the right hand side. A for sale board is displayed. What3Words ref ///quantity.minder.limits
**Material Information**
All available property information can be provided upon request from Holland & Odam. For confirmation of mobile phone and broadband coverage, please visit checker.ofcom.org.uk
**Identity Verification**
To ensure full compliance with current legal requirements, all buyers are required to verify their identity and risk status in line with anti-money laundering (AML) regulations before we can formally proceed with the sale. This process includes a series of checks covering identity verification, politically exposed person (PEP) screening, and AML risk assessment for each individual named as a purchaser. In addition, for best practice, we are required to obtain proof of funds and where necessary, to carry out checks on the source of funds being used for the purchase. These checks are mandatory and must be completed regardless of whether the purchase is mortgage-funded, cash, or part of a related transaction. A disbursement of £49 per individual (or £75 per director for limited company purchases) is payable to cover all aspects of this compliance process. This fee represents the full cost of conducting the required checks and verifications. You will receive a secure payment link and full instructions directly from our compliance partner, Guild365, who carry out these checks on our behalf.
Floorplan
EPC
To discuss this property call our Wells branch:
Market your property
with Holland & Odam
Book a market appraisal for your property today. Our virtual options are still available if you prefer.