Share:
Description
- Set within a quiet residential area, the property offers attractive kerb appeal with scope to extend, subject to the necessary planning permissions and consents.
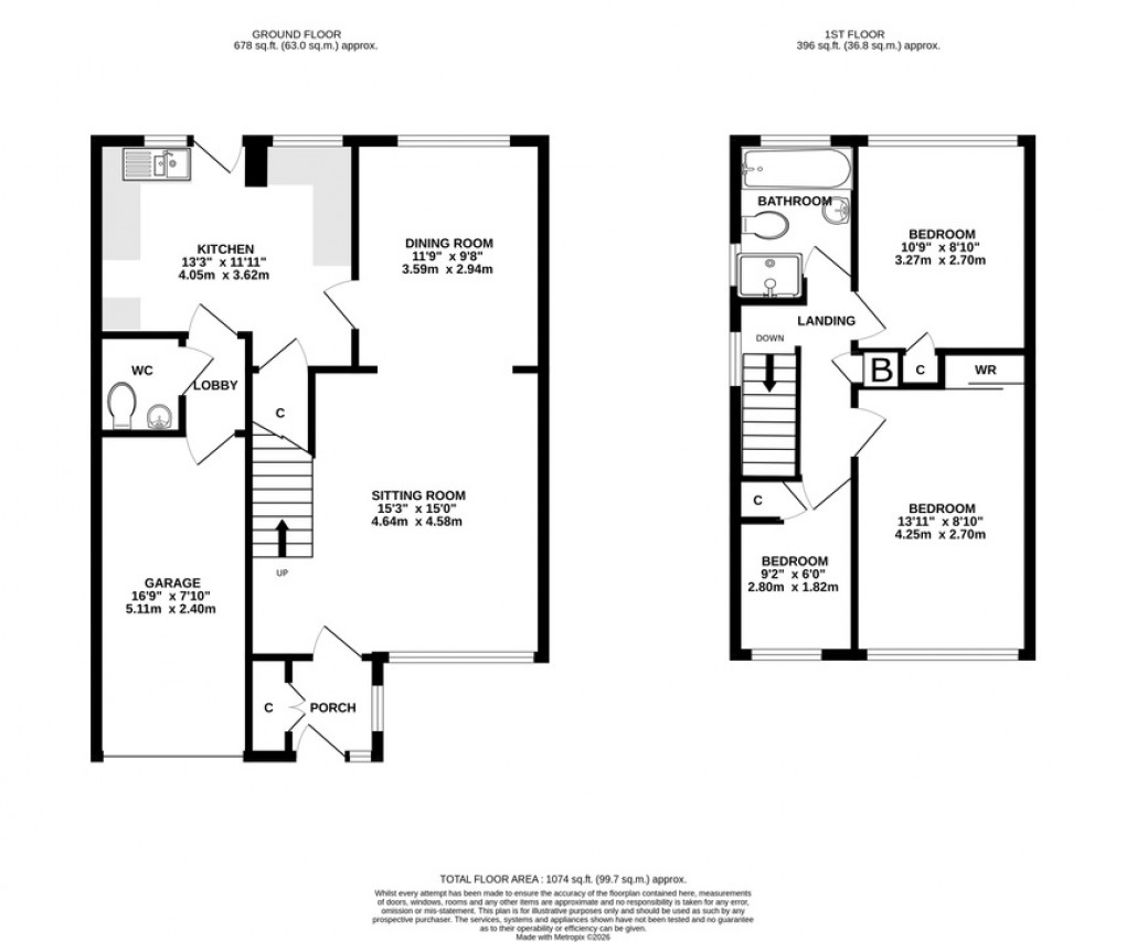
- Offering a welcoming entrance porch with built-in storage for coats and shoes, a convenient ground floor cloakroom, and internal access through to the garage.
- An impressive, bright and airy sitting room, generously proportioned and flooded with natural light via a large front-facing window.
- A well-proportioned dining room offering ample space for a family-sized table and chairs, enjoying pleasant views over the rear garden.
- The Kitchen has been fitted with a comprehensive range of wall, base and drawer units, offering space for freestanding and under-counter appliances and enjoying direct access to the rear garden.
- Affording three bedrooms, two of which would be considered well-proportioned, all benefiting from built-in wardrobe or cupboard space.
- A neatly presented family bathroom fitted with a white suite comprising a bath, separate shower enclosure, wash basin, WC and heated towel rail.
- Enclosed rear garden featuring a generous patio, an area of lawn bordered by shrub-filled beds, and a garden shed providing useful storage.
- To the front is an area laid to lawn with ample driveway parking for multiple vehicles, leading to the garage fitted with an up-and-over door, power and lighting.
**Location**
Puriton is a well regarded village situated on the western end of the beautiful Polden Hills, popular for its walks and typical Somerset scenery. The village enjoys an active community and good range of facilities including a Post Office, Shop, Village Hall, Butchers, Hairdressers, Nursery, Preschool, Church and Primary School. A popular commuter village with easily accessible transport links including the M5 J23 just a few minutes' drive and train station in Bridgwater just 5 miles. Nearby market towns of Taunton and Bridgwater and the thriving village Street offer excellent employment opportunities and amenities.
**Directions**
From Street, proceed west on the A39 towards Bridgwater. After approximately ten miles you will arrive at the village of Bawdrip. At the traffic lights turn left, signposted M5, proceed up and over the hill. At the roundabout take the 3rd exit onto enterprise way and then left onto Hillside road, continue along and take a right at the junction of Woolavington Road. Follow the road and take the 3rd right into Puriton Park, continue along passing the turning for Elm Lea Close. As the road bears around to the left, the property will be found after a short distance, also on the left hand side and will be easily identified by our For Sale board.
**Material Information**
All available property information can be provided upon request from Holland & Odam. For confirmation of mobile phone and broadband coverage, please visit checker.ofcom.org.uk
**Identity Verification**
To ensure full compliance with current legal requirements, all buyers are required to verify their identity and risk status in line with anti-money laundering (AML) regulations before we can formally proceed with the sale. This process includes a series of checks covering identity verification, politically exposed person (PEP) screening, and AML risk assessment for each individual named as a purchaser. In addition, for best practice, we are required to obtain proof of funds and where necessary, to carry out checks on the source of funds being used for the purchase. These checks are mandatory and must be completed regardless of whether the purchase is mortgage-funded, cash, or part of a related transaction. A disbursement of £49 per individual (or £75 per director for limited company purchases) is payable to cover all aspects of this compliance process. This fee represents the full cost of conducting the required checks and verifications. You will receive a secure payment link and full instructions directly from our compliance partner, Guild365, who carry out these checks on our behalf.
Floorplan
EPC
To discuss this property call our Street branch:
Market your property
with Holland & Odam
Book a market appraisal for your property today. Our virtual options are still available if you prefer.