Share:
Description
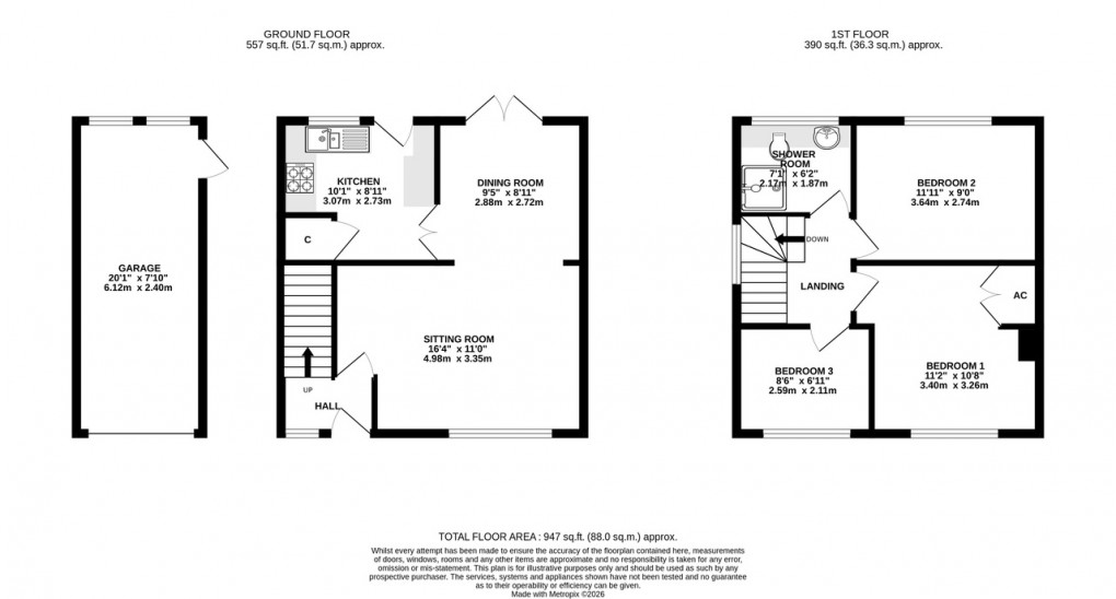
- Entrance porch with stairs to the first floor
- Sitting room with feature gas "Living Flame" fireplace
- Opening into a dining area with access to the rear garden
- Kitchen with understairs cupboard and door to the rear garden with a range of fitted units
- Three bedrooms
- Former bathroom now re-fitted as a shower room
- Double glazed windows and gas fired central heating
- Driveway and detached garage
- Garden to the front and rear with the back garden having a patio and greenhouse. Rear garden extending to 45' x 22' (13.7m x 6.7m)
- No onward chain.
**Location**
Set within easy walking distance of a popular primary school and a well stocked convenience store this property enjoys a quiet position within a residential cul de sac. Wells is the smallest city in England and offers a vibrant high street with a variety of independent shops and restaurants as well as a twice weekly market and a choice of supermarkets including Waitrose. Amenities include a leisure centre, independent cinema and a theatre. Bristol and Bath lie c.22 miles to the north and north-east respectively with mainline train stations to London at Castle Cary (c.11 miles) as well as Bristol and Bath. Bristol International Airport is c.15 miles to the north-west. Of particular note is the variety of well-regarded schools in both the state and private sectors in Wells and the surrounding area.
**Directions**
From Wells city centre follow signs for Glastonbury A39 until reaching the Sherston roundabout. Take the third exit onto Strawberry Way and at the traffic lights turn left into Burcott Road by the Fire Station. Proceed along the road passing the shops on your left hand side and take the next turning on the right into Tuddington Gardens. The property can be found on the left hand side as the road strats to bend to the right. A for sale board is displayed.
**Material Information**
All available property information can be provided upon request from Holland & Odam. For confirmation of mobile phone and broadband coverage, please visit checker.ofcom.org.uk
**Identity Verification**
To ensure full compliance with current legal requirements, all buyers are required to verify their identity and risk status in line with anti-money laundering (AML) regulations before we can formally proceed with the sale. This process includes a series of checks covering identity verification, politically exposed person (PEP) screening, and AML risk assessment for each individual named as a purchaser. In addition, for best practice, we are required to obtain proof of funds and where necessary, to carry out checks on the source of funds being used for the purchase. These checks are mandatory and must be completed regardless of whether the purchase is mortgage-funded, cash, or part of a related transaction. A disbursement of £49 per individual (or £75 per director for limited company purchases) is payable to cover all aspects of this compliance process. This fee represents the full cost of conducting the required checks and verifications. You will receive a secure payment link and full instructions directly from our compliance partner, Guild365, who carry out these checks on our behalf.
Floorplan
EPC
To discuss this property call our Wells branch:
Market your property
with Holland & Odam
Book a market appraisal for your property today. Our virtual options are still available if you prefer.